€ 290.000
  • Quadrilocale
  • 114 mq
  • 2 bagni

Appartamento in Vendita a Roma

PIANO TERRA CON GIARDINO - VIA CASSIA 1856
Proponiamo in vendita un appartamento al Piano Terra con giardino, situato in Via Cassia 1856, nel quadrante nord di Roma, all’interno di un contesto residenziale tranquillo e riservato.
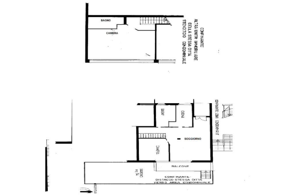
L’immobile, edificato negli anni ’70, si sviluppa su due livelli – Piano Terra e Piano Seminterrato – per una distribuzione degli spazi funzionale e versatile. La presenza del giardino fronte e retro rappresenta un valore aggiunto, offrendo spazi esterni vivibili e una piacevole continuità tra interno ed esterno. L’appartamento è da ristrutturare, con ampie possibilità di personalizzazione.
Dall’ingresso si accede a un ampio salone, ambiente centrale della casa, con uscita diretta sul giardino. La cucina è abitabile e separata, anch’essa con accesso al giardino, soluzione che garantisce praticità e funzionalità nella gestione degli spazi. Sempre al Piano Terra si sviluppa la zona notte principale, composta da una camera matrimoniale ben proporzionata e da un bagno finestrato.
Una scala interna conduce al Piano Seminterrato, dove troviamo un grande ambiente di circa 40 mq, facilmente suddivisibile in due camere matrimoniali da 20 mq ciascuna, soluzione ideale per chi necessita di ulteriori stanze o desidera creare uno spazio indipendente per ospiti o familiari. Sullo stesso livello è presente un bagno privato.
Completa la proprietà un posto auto di pertinenza.
La posizione e la distribuzione su due livelli, unite alla presenza del giardino fronte/retro, rendono questa soluzione particolarmente interessante per chi è alla ricerca di spazi interni ed esterni ben integrati, in un contesto riservato e ben collegato.
La posizione centrale consente di raggiungere comodamente a piedi tutti i principali servizi, rendendo l’immobile una soluzione ideale per chi desidera comfort,in un contesto riservato e ben servito.
Si precisa che nell’annuncio sono presenti anche immagini realizzate con l’intelligenza artificiale, inserite a scopo illustrativo per offrire un’idea di come potrebbe essere valorizzata e trasformata.

LEGGI TUTTO

CONDIVIDI SUI SOCIAL

DATI PRINCIPALI

Riferimento
636016
Contratto
Vendita
Tipologia
Appartamento
Superficie
114 mq
Locali
4
Camere da letto
3
Cucina
Abitabile
Bagni
2
Piano
Piano terra
Totale piani
2
Box/Posto auto
Singolo

CARATTERISTICHE

Ascensore

COSTI

Prezzo
€ 290.000,00
Spese condominiali
€ 90,00 / mese

EFFICIENZA ENERGETICA

Stato
Abitabile
Anno costruzione
1976
Riscaldamento
Autonomo
Classe energetica
G
IPE
351,00 kWh/m²a

A+

A

B

C

D

E

F

351,00 kWh/m²a | Classe energetica G

G

MAPPA

ANNUNCI SIMILI

VENDITA 19
€ 180.000
Appartamento in Vendita a Roma (Roma)
  • Quadrilocale
  • 121 mq
  • 2 bagni
VENDITA 19
€ 180.000
Appartamento in Vendita a Roma (Roma)
  • Quadrilocale
  • 121 mq
  • 2 bagni
VENDITA 15
€ 200.000
Appartamento in Vendita a Roma, Frazione La Storta
  • Quadrilocale
  • 120 mq
  • 2 bagni
VENDITA 14
€ 169.000
Appartamento in Vendita a Roma, Frazione La Storta
  • Quadrilocale
  • 80 mq
  • 2 bagni
VENDITA 11
€ 395.000
Appartamento in Vendita a Roma (Roma)
  • Più di 5 locali
  • 151 mq
  • 2 bagni
VENDITA 20
€ 270.000
Appartamento in Vendita a Roma, Zona Olgiata
  • Quadrilocale
  • 117 mq
  • 2 bagni