• Quadrilocale
  • 80 mq
  • 2 bagni

Appartamento in Vendita a Roma

CONCLUSA PROCEDURA PER TRASFORMAZIONE IN DIRITTO DI PROPRIETA’
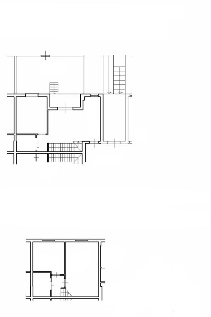
All’interno di un riservato contesto residenziale, proponiamo in vendita, raffinata soluzione abitativa disposta su due livelli, caratterizzata da ambienti versatili e piacevoli spazi esterni.
L’ingresso al piano terra conduce alla luminosa zona living con angolo cottura,camera da letto e bagno. Il valore aggiunto è rappresentato dal comodo giardino di proprietà, accessibile sia dal soggiorno sia dalla camera da letto, perfetto per vivere momenti di relax in totale privacy.
Il piano seminterrato ospita due ampie stanze e un locale lavanderia, con la concreta possibilità di un utilizzo versatile degli spazi, adattando gli stessi alle proprie esigenze abitative.
Completa la Proprietà un ampio box di 20 mq
L'immobile è libero da subito.

LEGGI TUTTO

CONDIVIDI SUI SOCIAL

DATI PRINCIPALI

Riferimento
631292
Contratto
Vendita
Tipologia
Appartamento
Superficie
80 mq
Locali
4
Camere da letto
3
Cucina
Angolo cottura
Bagni
2
Piano
Piano terra
Totale piani
3
Box/Posto auto
Singolo

CARATTERISTICHE

Ascensore

COSTI

Prezzo
€ 209.000,00
Spese condominiali
€ 70,00 / mese

EFFICIENZA ENERGETICA

Stato
Abitabile
Anno costruzione
2005
Riscaldamento
Autonomo
Classe energetica
F
IPE
204,94 kWh/m²a

A+

A

B

C

D

E

204,94 kWh/m²a | Classe energetica F

F

G

MAPPA

ANNUNCI SIMILI

VENDITA 20
€ 265.000
Appartamento in Vendita a Roma, Zona Settecamini
  • Quadrilocale
  • 120 mq
  • 2 bagni
VENDITA 20
€ 159.000
Appartamento in Vendita a Roma, Frazione Case Rosse
  • Quadrilocale
  • 85 mq
  • 2 bagni
VENDITA 11
€ 225.000
Appartamento in Vendita a Roma, Frazione Case Rosse
  • Più di 5 locali
  • 230 mq
  • 2 bagni