QUADRILOCALE DI NUOVA COSTRUZIONE VENDITA

Via Dosolo - Roma, Frazione Morena
€ 330.000
  • Quadrilocale
  • 91 mq
  • 2 bagni

Appartamento in Vendita a Roma

QUADRILOCALE CON CUCINA IN VENDITA
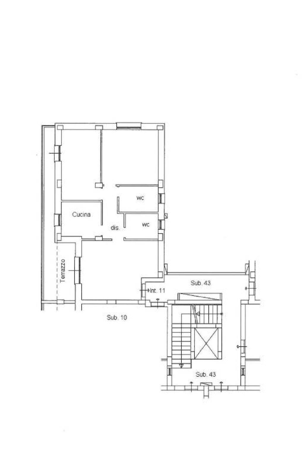
QUADRILOCALE NUOVA COSTRUZIONE QUADRILOCALE NUOVA COSTRUZIONE CENTRONI IMMOBILSERVICE di Ciampino propone in vendita appartamenti signorili in complesso a Roma zona Centroni, in Via Dosolo 23, a due passi da tutti i servizi pubblici e commerciali. L'appartamento in annuncio è posto al piano primo (ma disponibile anche al piano terra con giardino), libero su 2 lati, ed è internamente composto di: soggiorno, cucina , camera matrimoniale, cameretta , due bagni finestrati, terrazzo vivibile davanti la zona giorno. Completa la proprietà un posto auto al piano terra. Disponibilità anche quadrilocali, tre camere e attici. La costruzione sarà realizzata nel rispetto dei più moderni sistemi di sostenibilità e con impianti di ultima generazione, posizionando l'APE degli appartamenti nella categoria energetica “A4”. Se volete maggiori informazioni o fissare un appuntamento contattare il numero 0688919979 - 3200503603 , E-mail : info@gruppoimmobilservice.it Costruzione ultimata.

LEGGI TUTTO

CONDIVIDI SUI SOCIAL

DATI PRINCIPALI

Riferimento
629803
Contratto
Vendita
Tipologia
Appartamento
Superficie
91 mq
Locali
4
Camere da letto
2
Cucina
Abitabile
Bagni
2
Piano
1 °
Totale piani
4
Box/Posto auto
Singolo

CARATTERISTICHE

Ascensore

COSTI

Prezzo
€ 330.000,00

EFFICIENZA ENERGETICA

Stato
Nuovo/In costruzione
Anno costruzione
2025
Riscaldamento
Centralizzato
Climatizzazione
Predisposizione
Classe energetica
A4
IPE
351,00 kWh/m²a
351,00 kWh/m²a | Classe energetica A4

A4

A3

A2

A1

B

C

D

E

F

G

MAPPA

ANNUNCI SIMILI

VENDITA 20
€ 319.000
Appartamento in Vendita a Roma, Frazione Morena
  • Quadrilocale
  • 118 mq
  • 2 bagni
VENDITA 20
€ 320.000
Appartamento in Vendita a Roma (Roma)
  • Quadrilocale
  • 103 mq
  • 2 bagni
VENDITA 7
€ 369.000
Appartamento in Vendita a Roma, Frazione Morena
  • Quadrilocale
  • 125 mq
  • 2 bagni
VENDITA 20
€ 269.000
Appartamento in Vendita a Roma, Frazione Morena
  • Quadrilocale
  • 114 mq
  • 2 bagni
VENDITA 12
€ 239.000
Appartamento in Vendita a Roma (Roma)
  • Quadrilocale
  • 88 mq
  • 1 bagno
VENDITA 20
€ 235.000
Appartamento in Vendita a Roma, Frazione Morena
  • Quadrilocale
  • 126 mq
  • 1 bagno