QUADRILOCALE CON BALCONE PERIMETRALE VENDITA

Vicolo di Casalotti - Roma, Zona Casalotti
€ 209.000
  • Quadrilocale
  • 110 mq
  • 1 bagno

Appartamento in Vendita a Roma

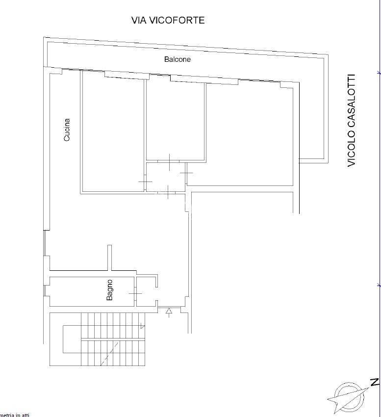
Rif: M209 - Proponiamo in vendita un quadrilocale in zona Casalotti, situato al terzo piano di una palazzina SENZA ASCENSORE. L’appartamento ha una superficie di circa 110 mq ed è caratterizzato da spazi ampi e ben distribuiti. L’ingresso si apre sul soggiorno, affiancato da una cucina separata. La zona notte è composta da tre camere da letto e da un bagno finestrato con pratico antibagno, ideale per ricavare una comoda zona lavanderia.
Completa la proprietà un balcone perimetrale, accessibile sia dalla cucina sia da due delle camere da letto, che garantisce una piacevole continuità tra gli ambienti interni ed esterni. L’immobile si presenta internamente in buone condizioni ed è dotato di infissi in PVC con doppio vetro e inferriate e riscaldamento autonomo. La presenza esclusiva di tramezzi offre inoltre un’ottima possibilità di personalizzazione degli spazi interni in base alle proprie esigenze.
La posizione è particolarmente comoda, trovandosi in prossimità di tutti i principali servizi, rendendo questa soluzione ideale per famiglie o per chi desidera vivere in un contesto ben collegato e funzionale.

LEGGI TUTTO

CONDIVIDI SUI SOCIAL

DATI PRINCIPALI

Riferimento
640093
Contratto
Vendita
Tipologia
Appartamento
Superficie
110 mq
Locali
4
Camere da letto
3
Bagni
1
Piano
3 °
Totale piani
3

CARATTERISTICHE

Ascensore

COSTI

Prezzo
€ 209.000,00
Spese condominiali
€ 55,00 / mese

EFFICIENZA ENERGETICA

Stato
Abitabile
Anno costruzione
1990
Riscaldamento
Autonomo
Classe energetica
F
IPE
175,00 kWh/m²a

A+

A

B

C

D

E

175,00 kWh/m²a | Classe energetica F

F

G

MAPPA

ANNUNCI SIMILI

VENDITA 20
€ 299.000
Appartamento in Vendita a Roma, Zona Casalotti
  • Quadrilocale
  • 150 mq
  • 2 bagni
VENDITA 11
€ 185.000
Appartamento in Vendita a Roma, Zona Casalotti
  • Quadrilocale
  • 80 mq
  • 1 bagno
VENDITA 20
€ 309.000
Appartamento in Vendita a Roma, Zona Casalotti
  • Quadrilocale
  • 110 mq
  • 2 bagni
VENDITA 20
€ 229.000
Appartamento in Vendita a Roma, Zona Casalotti
  • Quadrilocale
  • 130 mq
  • 2 bagni
VENDITA 15
€ 259.000
Appartamento in Vendita a Roma, Zona Casalotti
  • Quadrilocale
  • 90 mq
  • 3 bagni
VENDITA 20
€ 299.000
Appartamento in Vendita a Roma, Zona Casalotti
  • Quadrilocale
  • 130 mq
  • 2 bagni