Prestigioso Appartamento in Piazza del Viminale VENDITA

Via del Viminale - Roma (Roma)
€ 800.000
  • Bilocale
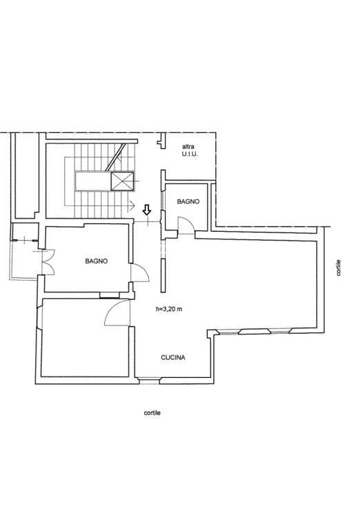
  • 85 mq
  • 2 bagni

Appartamento in Vendita a Roma

Nel cuore pulsante di Roma, in un palazzo storico di grande fascino, proponiamo in vendita un esclusivo attico all’ultimo piano, affacciato sui tetti della città eterna.

Completamente ristrutturato con finiture di pregio, questo raffinato appartamento offre un’atmosfera unica, combinando eleganza e comfort in un ambiente luminoso e silenzioso. La zona living si apre su un ampio salone con cucina a vista, creando uno spazio arioso e accogliente, perfetto per chi ama la convivialità. La camera da letto, intima e sofisticata, è servita da due bagni, di cui uno è una vera e propria sala da bagno, pensata per il massimo relax. Un delizioso balconcino aggiunge un tocco di charme, regalando un angolo privato dove godersi la magia dei tetti romani.
Attualmente già avviato come locazione turistica
con ottimi incassi dimostrabili, rappresenta un’opportunità ideale sia per chi desidera una residenza di prestigio, sia per chi cerca un investimento sicuro e altamente redditizio nel cuore della Capitale.

LEGGI TUTTO

CONDIVIDI SUI SOCIAL

DATI PRINCIPALI

Riferimento
628064
Contratto
Vendita
Tipologia
Appartamento
Superficie
85 mq
Locali
2
Camere da letto
1
Cucina
A vista
Bagni
2
Piano
6 °
Totale piani
6

CARATTERISTICHE

Ascensore

COSTI

Prezzo
€ 800.000,00

EFFICIENZA ENERGETICA

Stato
Ristrutturato
Riscaldamento
Autonomo
Climatizzazione
Si
Classe energetica
G
IPE
175,00 kWh/m²a

A+

A

B

C

D

E

F

175,00 kWh/m²a | Classe energetica G

G

MAPPA

ANNUNCI SIMILI

VENDITA 14
€ 350.000
Appartamento in Vendita a Roma (Roma)
  • Bilocale
  • 49 mq
  • 1 bagno
VENDITA 20
€ 890.000
Appartamento in Vendita a Roma (Roma)
  • Più di 5 locali
  • 180 mq
  • 2 bagni
VENDITA 20
€ 420.000
Appartamento in Vendita a Roma (Roma)
  • Bilocale
  • 63 mq
  • 1 bagno
VENDITA 7
€ 900.000
Appartamento in Vendita a Roma (Roma)
  • Più di 5 locali
  • 190 mq
  • 4 bagni
VENDITA 17
€ 890.000
Appartamento in Vendita a Roma (Roma)
  • Quadrilocale
  • 122 mq
  • 2 bagni
VENDITA 8
€ 290.000
Appartamento in Vendita a Roma (Roma)
  • Bilocale
  • 65 mq
  • 1 bagno
VENDITA 20
€ 290.000
Appartamento in Vendita a Roma (Roma)
  • Bilocale
  • 32 mq
  • 1 bagno
VENDITA 12
€ 315.000
Appartamento in Vendita a Roma (Roma)
  • Bilocale
  • 51 mq
  • 1 bagno
VENDITA 17
€ 680.000
Appartamento in Vendita a Roma (Roma)
  • Più di 5 locali
  • 145 mq
  • 1 bagno
VENDITA 20
€ 699.000
Appartamento in Vendita a Roma (Roma)
  • Trilocale
  • 105 mq
  • 1 bagno