Prati Piazza Mazzini Via Sabotino 31 VENDITA

Via Sabotino 31 - Roma (Roma)
€ 590.000
  • Più di 5 locali
  • 138 mq
  • 1 bagno

Appartamento in Vendita a Roma

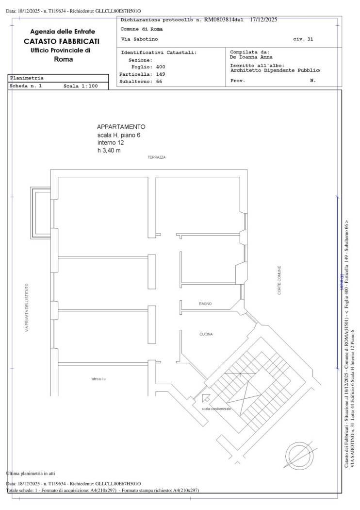
CI AFFIDI IL SUO IMMOBILE SENZA PAGARE LA PROVVIGIONE. Prati Piazza Mazzini Via Sabotino 31 Appartamento piano 6 di circa 140 mq composto da salone con balcone tre camere da letto, cameretta, cucina abitabile e bagno. Immobile libero Asta offerta minima € 593.400.Altro Prati Piazza Mazzini Via Fulcieri Paolucci de Calboli n°8 la strada che unisce via Sabotino a Via Oslavia, appartamento di circa 136 mq posto al quinto piano con affaccio su due lati paralleli, composto da salone cucina abitabile due camere matrimoniali, cameretta bagno e ripostiglio. Immobile libero da subito . asta offerta minima € 605.200 Per info. Marco Dickmann 339/1980066 392/1626575 06/79786066 IMMOBILE VISITABILE E MUTUABILE. PER INFO MARCO DICKMANN 06/79786066 339/1980066 392/1626575. GUARDI TUTTI I NOSTRI ANNNUNCI USANDO QUESTO LINK: https://www.immobiliare.it/agenzie-immobiliari/93358/balduina-immobiliare-roma/?pag=1&sortBy=prezzo&sortDir=desc rif 18 05- 20 05

LEGGI TUTTO

CONDIVIDI SUI SOCIAL

DATI PRINCIPALI

Riferimento
641698
Contratto
Vendita
Tipologia
Appartamento
Superficie
138 mq
Locali
Più di 5
Camere da letto
4
Cucina
Abitabile
Bagni
1
Piano
6 °
Totale piani
7

CARATTERISTICHE

Ascensore

COSTI

Prezzo
€ 590.000,00
Spese condominiali
€ 1,00 / mese

EFFICIENZA ENERGETICA

Stato
Da ristrutturare
Riscaldamento
Centralizzato
Climatizzazione
Si
Classe energetica
G
IPE
175,00 kWh/m²a

A+

A

B

C

D

E

F

175,00 kWh/m²a | Classe energetica G

G

MAPPA

ANNUNCI SIMILI

VENDITA 20
€ 2.000.000
Appartamento in Vendita a Roma (Roma)
  • Più di 5 locali
  • 270 mq
  • 4 bagni
VENDITA 4
€ 360.000
Appartamento in Vendita a Roma (Roma)
  • Più di 5 locali
  • 160 mq
  • 2 bagni
VENDITA 20
€ 739.000
Appartamento in Vendita a Roma (Roma)
  • Più di 5 locali
  • 141 mq
  • 1 bagno
VENDITA 20
€ 995.000
Appartamento in Vendita a Roma (Roma)
  • Più di 5 locali
  • 220 mq
  • 3 bagni
VENDITA 5
€ 1.160.000
Appartamento in Vendita a Roma (Roma)
  • Più di 5 locali
  • 160 mq
  • 2 bagni
VENDITA 9
€ 598.000
Appartamento in Vendita a Roma (Roma)
  • Più di 5 locali
  • 168 mq
  • 1 bagno
VENDITA 20
€ 1.380.000
Appartamento in Vendita a Roma, Zona Prati
  • Più di 5 locali
  • 189 mq
  • 4 bagni