PRATI - LUNGOTEVERE DEI MELLINI - UFFICIO PIANO ALTO VENDITA

Lungotevere dei Mellini 44 - Roma, Zona Prati
€ 995.000
  • Quadrilocale
  • 130 mq
  • 2 bagni

Appartamento in Vendita a Roma

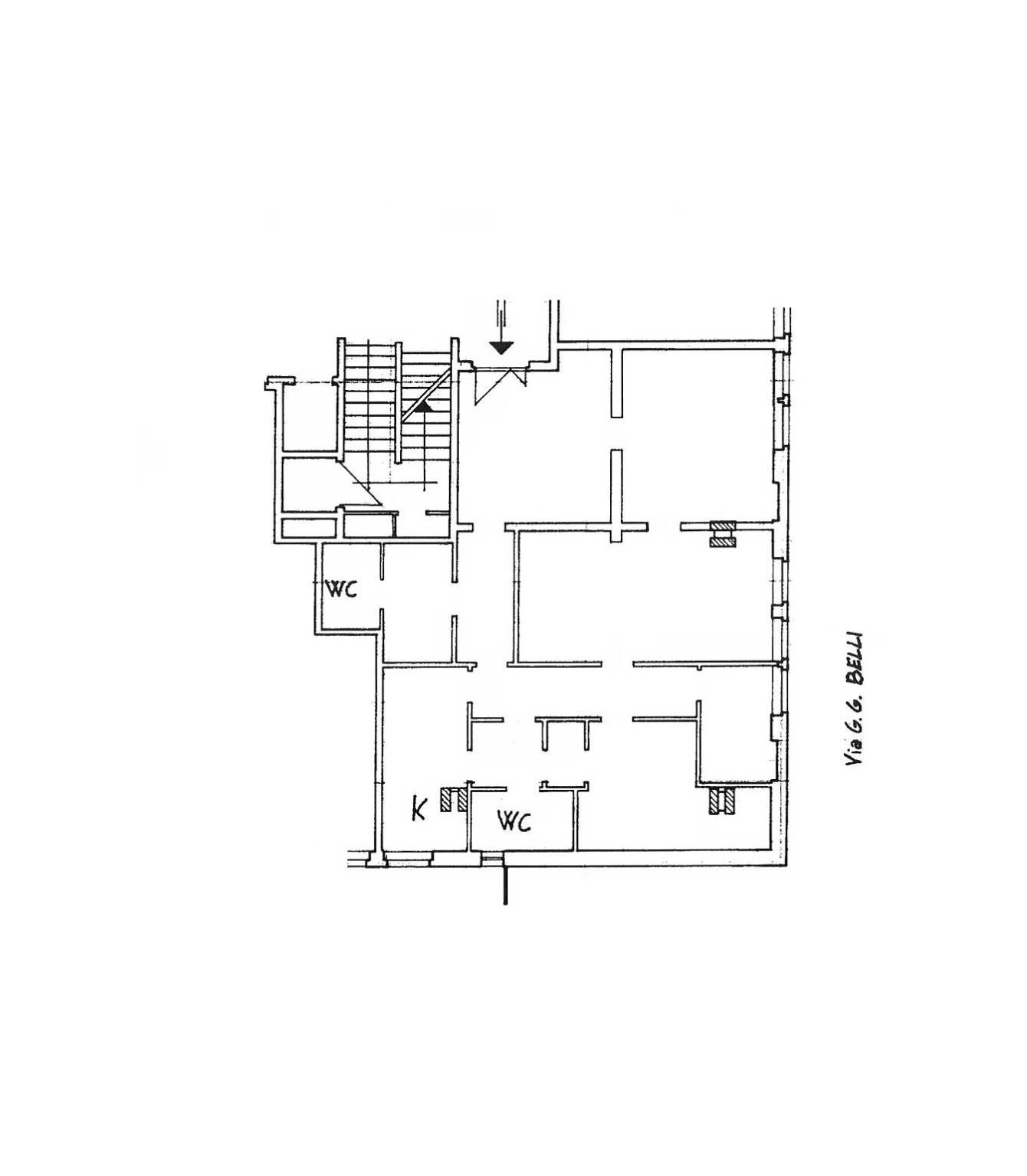
UFFICIO A/10 DI 130 MQ – PRATI, ROMA
Ampio, funzionale e pronto all’uso in palazzina con portierato
Nel cuore del prestigioso quartiere Prati, proponiamo in vendita/affitto un ufficio accatastato A/10 di 130 mq, situato al terzo piano di una elegante palazzina anni ’60 con ascensore e servizio di portierato giornaliero.
L’immobile si presenta da ristrutturare ed è così composto:
Ingresso con area segreteria/reception
Ampia sala d’attesa per clienti e pazienti
Un ampio studio principale e due stanze operative, ideali per professionisti o team di lavoro
Laboratorio dedicato (utilizzabile anche come archivio o ambiente tecnico)
Vari disimpegni e ripostigli funzionali per archiviazione e gestione spazi
Due bagni
L’ufficio è particolarmente adatto per studi medici, legali, professionali o sedi di rappresentanza.
Ottima posizione, ben collegata dai mezzi pubblici (Metro A Lepanto) e a due passi da tribunali, uffici pubblici e attività commerciali.

LEGGI TUTTO

CONDIVIDI SUI SOCIAL

DATI PRINCIPALI

Riferimento
630396
Contratto
Vendita
Tipologia
Appartamento
Superficie
130 mq
Locali
4
Camere da letto
3
Cucina
Abitabile
Bagni
2
Piano
3 °
Totale piani
5

CARATTERISTICHE

Ascensore

COSTI

Prezzo
€ 995.000,00
Spese condominiali
€ 150,00 / mese

EFFICIENZA ENERGETICA

Stato
Da ristrutturare
Anno costruzione
1961
Riscaldamento
Centralizzato
Climatizzazione
Si
Classe energetica
G
IPE
175,00 kWh/m²a

A+

A

B

C

D

E

F

175,00 kWh/m²a | Classe energetica G

G

MAPPA

ANNUNCI SIMILI

VENDITA 12
€ 1.550.000
Appartamento in Vendita a Roma, Zona Prati
  • Più di 5 locali
  • 170 mq
  • 2 bagni
VENDITA 9
€ 1.700.000
Appartamento in Vendita a Roma, Zona Prati
  • Più di 5 locali
  • 200 mq
  • 3 bagni
VENDITA 20
€ 1.390.000
Appartamento in Vendita a Roma, Zona Prati
  • Più di 5 locali
  • 183 mq
  • 2 bagni
VENDITA 20
€ 799.000
Appartamento in Vendita a Roma, Zona Prati
  • Più di 5 locali
  • 136 mq
  • 1 bagno
VENDITA 20
€ 1.190.000
Appartamento in Vendita a Roma (Roma)
  • Più di 5 locali
  • 110 mq
  • 4 bagni
VENDITA
€ 800.000
Appartamento in Vendita a Roma, Zona Prati
  • Quadrilocale
  • 130 mq
  • 2 bagni
VENDITA 20
€ 1.450.000
Appartamento in Vendita a Roma (Roma)
  • Più di 5 locali
  • 120 mq
  • 4 bagni
VENDITA 20
€ 680.000
Appartamento in Vendita a Roma, Zona Prati
  • Quadrilocale
  • 115 mq
  • 4 bagni
VENDITA 11
€ 1.380.000
Appartamento in Vendita a Roma, Zona Prati
  • Più di 5 locali
  • 227 mq
  • 4 bagni