Prati Germanico mq. 90 ingresso indipendente VENDITA

Via Germanico - Roma, Zona Prati
€ 385.000
  • Bilocale
  • 90 mq
  • 2 bagni

Appartamento in Vendita a Roma

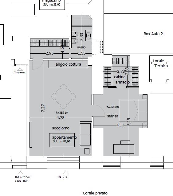
Prati e più precisamente via Germanico altezza via Silla, proponiamo la vendita di un appartamento con ingresso indipendente, di circa 90 mq. composto da soggiorno all'americana con con angolo cottura, un'ampia camera da letto con cabina armadio e bagno, zona armadio ed altro bagno. Possibilità posto auto esterno a parte. L'APPARTAMENTO VIENE VENDUTO A RUSTICO, CON TUTTE LE RIFINITURE DA ULTIMARE. Le informazioni riportate non hanno alcun contenuto contrattuale. Le dimensioni in termini di volumetrie e metri quadri commerciali sono puramente indicative. I dati riguardanti le informazioni commerciali relative alle inserzioni pubblicate provengono direttamente all'agenzia immobiliare dai relativi incarichi di mediazione. La Berdini Immobiliare S.r.l. declina ogni responsabilità per la presenza di eventuali indicazioni erronee. Berdini immobiliare è l'agenzia che da più di trent'anni è a servizio dei suoi clienti nella vendita, nell'acquisto e nella locazione di immobili. Proponiamo un servizio efficiente, all'insegna di un'etica professionale consolidata negli anni, dedicata a tutti i nostri clienti più esigenti, nei quartieri storici e più prestigiosi della capitale. Contattateci anche per consulenze gratuite e senza impegno per il vostro immobile, con fiducia. Berdini immobiliare Iscrizione al ruolo degli agenti di affari in mediazione società N. 2403 Amministratore unico Dr. Roberto Berdini N.0350 - 1. Sito internet www.berdiniimmobiliare.com

LEGGI TUTTO

CONDIVIDI SUI SOCIAL

DATI PRINCIPALI

Riferimento
631710
Contratto
Vendita
Tipologia
Appartamento
Superficie
90 mq
Locali
2
Camere da letto
1
Cucina
Angolo cottura
Bagni
2
Piano
Seminterrato
Totale piani
5

CARATTERISTICHE

Ascensore

COSTI

Prezzo
€ 385.000,00

EFFICIENZA ENERGETICA

Stato
Nuovo/In costruzione
Anno costruzione
2024
Riscaldamento
Autonomo
Climatizzazione
Predisposizione
Classe energetica
G
IPE
175,00 kWh/m²a

A+

A

B

C

D

E

F

175,00 kWh/m²a | Classe energetica G

G

MAPPA

ANNUNCI SIMILI

VENDITA 6
€ 690.000
Appartamento in Vendita a Roma, Zona Prati
  • Quadrilocale
  • 130 mq
  • 1 bagno
VENDITA 20
€ 699.000
Appartamento in Vendita a Roma, Zona Prati
  • Più di 5 locali
  • 168 mq
  • 1 bagno
VENDITA 20
€ 750.000
Appartamento in Vendita a Roma, Zona Prati
  • Trilocale
  • 80 mq
  • 2 bagni
VENDITA 20
€ 890.000
Appartamento in Vendita a Roma, Zona Prati
  • Trilocale
  • 150 mq
  • 1 bagno
VENDITA 20
€ 1.100.000
Appartamento in Vendita a Roma, Zona Prati
  • Trilocale
  • 108 mq
  • 2 bagni
VENDITA 20
€ 890.000
Appartamento in Vendita a Roma, Zona Prati
  • Quadrilocale
  • 114 mq
  • 2 bagni
VENDITA 18
€ 575.000
Appartamento in Vendita a Roma, Zona Prati
  • Trilocale
  • 125 mq
  • 1 bagno
VENDITA 20
€ 450.000
Appartamento in Vendita a Roma, Zona Prati
  • Bilocale
  • 69 mq
  • 2 bagni