PRATI AFFITTO TRANSITORIO GRAZIOSO BILOCALE AFFITTO

Viale delle Milizie 34 - Roma (Roma)
€ 2.100 mensili
  • Bilocale
  • 70 mq
  • 2 bagni

Appartamento in Affitto a Roma

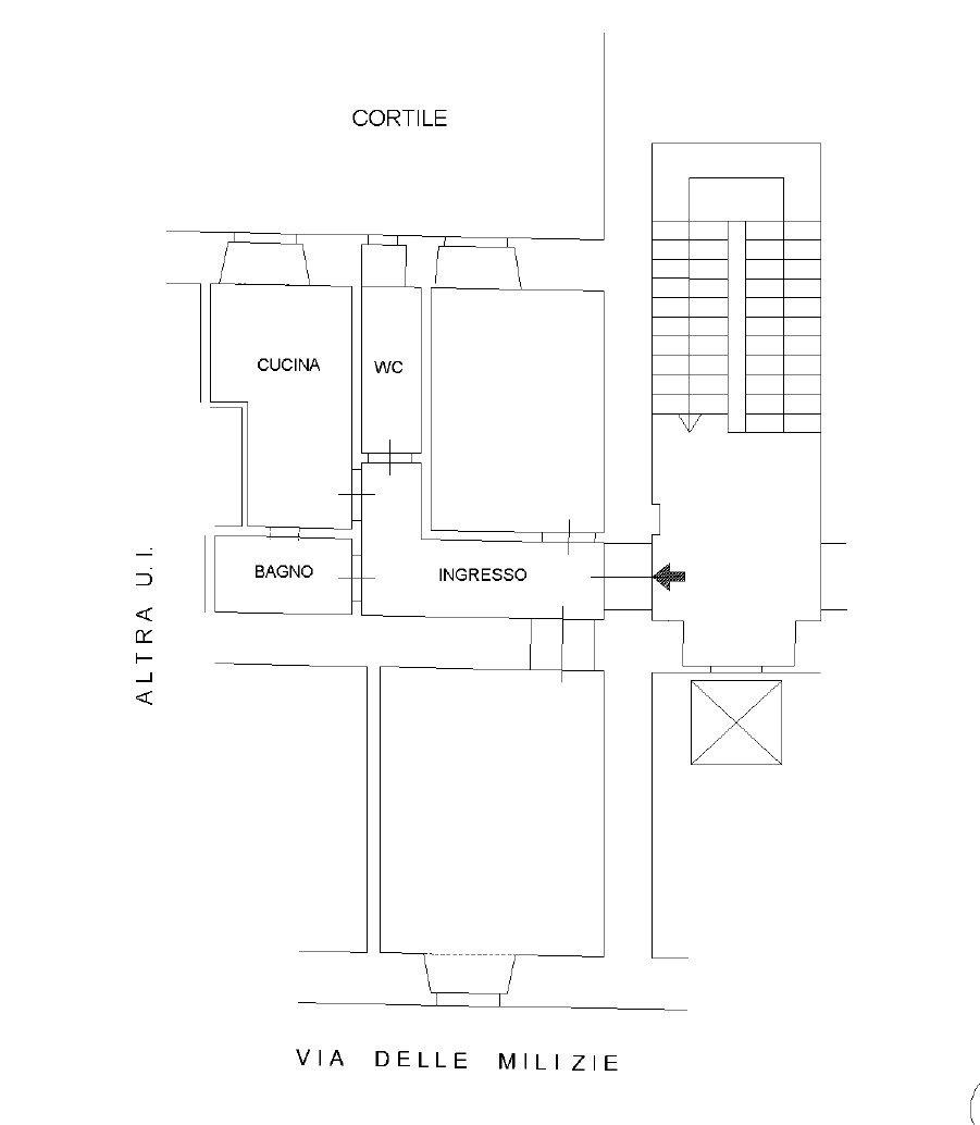
PRATI-VIA DELLE MILIZIE: in zona centrale e signorile, ottimamente servita e ben collegata (Metro Linea A Ottaviano e Lepanto nelle immediate vicinanze), proponiamo la locazione di un luminoso appartamento completamente arredato sito al 3 piano con ascensore di un elegante palazzo d'epoca inizio '900 con servizio di portierato full-time.
L'immobile è composto da ingresso, ampio soggiorno con divano letto, camera matrimoniale, disimpegno, cucina semi-abitabile completamente attrezzata e doppi servizi.
L'appartamento verrà consegnato arredato ed accessoriato di tutti gli elettrodomestici: lavatrice, lavastoviglie, forno, forno a microonde
Riscaldamento autonomo e climatizzatori.
CONTRATTO TRANSITORIO MAX 18 MESI con documentazione che attesti la transitorietà. A referenziati, lavoratori-studenti.
DISPONIBILE DAL 1 AGOSTO 2026.
Canone richiesto 2.100 Euro mensili oltre spese condominiali, utenze di luce e gas, wi-fi, tari a parte Euro 400/mensili.
Per info Marta cell 3341901617 oppure vieni a visitare il nostro sito www.giadaimmobiliare.com

LEGGI TUTTO

CONDIVIDI SUI SOCIAL

DATI PRINCIPALI

Riferimento
642406
Contratto
Affitto
Tipologia
Appartamento
Superficie
70 mq
Locali
2
Camere da letto
1
Cucina
Abitabile
Bagni
2
Piano
3 °
Totale piani
6

CARATTERISTICHE

Ascensore

COSTI

Canone
Affitto € 2.100,00 al mese
Tipo locazione
Transitorio

EFFICIENZA ENERGETICA

Stato
Ristrutturato
Anno costruzione
1900
Riscaldamento
Autonomo
Climatizzazione
Si
Classe energetica
G
IPE
175,00 kWh/m²a

A+

A

B

C

D

E

F

175,00 kWh/m²a | Classe energetica G

G

MAPPA

ANNUNCI SIMILI

AFFITTO 9
€ 1.350 mensili
Appartamento in Affitto a Roma, Zona Prati
  • Trilocale
  • 100 mq
  • 1 bagno
AFFITTO 20
€ 1.550 mensili
Appartamento in Affitto a Roma, Zona Prati
  • Trilocale
  • 100 mq
  • 1 bagno
AFFITTO 15
€ 2.900 mensili
Appartamento in Affitto a Roma, Zona Prati
  • Più di 5 locali
  • 115 mq
  • 2 bagni
AFFITTO 20
€ 1.750 mensili
Appartamento in Affitto a Roma (Roma)
  • Bilocale
  • 60 mq
  • 1 bagno
AFFITTO 20
€ 8.000 mensili
Appartamento in Affitto a Roma, Zona Prati
  • Quadrilocale
  • 130 mq
  • 2 bagni
AFFITTO 2
€ 3.900 mensili
Appartamento in Affitto a Roma (Roma)
  • Più di 5 locali
  • 200 mq
  • 1 bagno