PIGNETO VILLINI – VIA DI VILLA SERVENTI VENDITA

Via di Villa Serventi - Roma, Zona Pigneto
€ 260.000
  • Trilocale
  • 65 mq
  • 1 bagno

Appartamento in Vendita a Roma

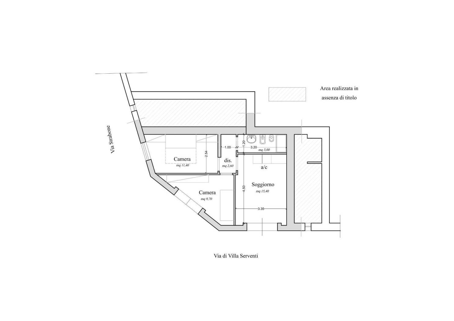
Pigneto – Via di Villa Serventi | ristrutturato con ingresso indipendente Nel cuore autentico del Pigneto, a pochi passi da servizi, locali e collegamenti, proponiamo un interessante immobile di 65 mq con ingresso indipendente ,soggiorno con angolo cottura , 2 camere da letto e bagno , attualmente in ristrutturazione completa interna ed esterna . L’unità, oggi accatastata C/1, verrà consegnata con cambio di destinazione d’uso ad abitativo, ideale come prima casa, pied-à-terre o investimento a reddito. ✨ Caratteristiche principali: Superficie: 65 mq Ristrutturazione totale con finiture moderne Riscaldamento a pompa di calore Ingresso indipendente Edificio storico anni ’50 Consegna prevista entro circa 120 giorni dall’accettazione della proposta L’appartamento sarà consegnato chiavi in mano, pronto da vivere, con spazi studiati per garantire comfort e funzionalità. � I rendering pubblicati sono a scopo illustrativo e mostrano un possibile risultato finale e le foto dopo il rendering sono delle costruzioni limitrofe per mostrare la gradevolezza della zona . � Soluzione rara nella zona, perfetta per chi cerca un immobile nuovo in un contesto dinamico e in continua crescita. � Contattaci subito per maggiori informazioni, planimetrie e per fissare un appuntamento: opportunità come questa al Pigneto sono sempre più difficili da trovare.

LEGGI TUTTO

CONDIVIDI SUI SOCIAL

DATI PRINCIPALI

Riferimento
640349
Contratto
Vendita
Tipologia
Appartamento
Superficie
65 mq
Locali
3
Camere da letto
2
Cucina
Angolo cottura
Bagni
1
Piano
Piano terra
Totale piani
1

CARATTERISTICHE

Ascensore

COSTI

Prezzo
€ 260.000,00

EFFICIENZA ENERGETICA

Stato
Da ristrutturare
Anno costruzione
1950
Riscaldamento
Autonomo
Classe energetica
G
IPE
175,00 kWh/m²a

A+

A

B

C

D

E

F

175,00 kWh/m²a | Classe energetica G

G

MAPPA

ANNUNCI SIMILI

VENDITA 20
€ 195.000
Appartamento in Vendita a Roma, Zona Pigneto
  • Trilocale
  • 75 mq
  • 1 bagno
VENDITA 20
€ 385.000
Appartamento in Vendita a Roma, Zona Pigneto
  • Quadrilocale
  • 130 mq
  • 2 bagni
VENDITA 11
€ 475.000
Appartamento in Vendita a Roma (Roma)
  • Trilocale
  • 91 mq
  • 2 bagni
VENDITA 11
€ 475.000
Appartamento in Vendita a Roma (Roma)
  • Trilocale
  • 100 mq
  • 1 bagno