Piazza Irnerio adiacenze VENDITA

Piazza Irnerio - Roma, Zona Baldo degli Ubaldi
€ 269.000
  • Bilocale
  • 52 mq
  • 2 bagni

Appartamento in Vendita a Roma

Nel cuore del quartiere Aurelio, proponiamo la vendita di un appartamento posto al primo alto di un palazzo signorile con ascensore e servizio di portineria.
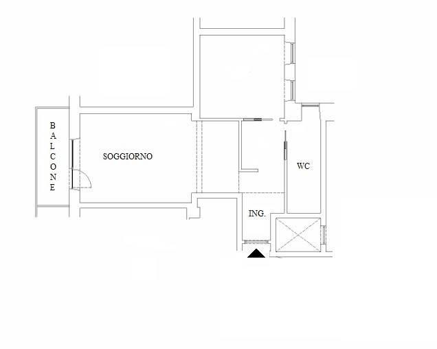
L’immobile si presenta finemente ed interamente ristrutturato ed è composto da ingresso, soggiorno, cucina a vista, servizi e balcone.
L’appartamento è dotato di porta blindata, infissi in vetro camera e pvc, serramenti in alluminio, illuminazione a led e faretti, pavimentazione in marmo di carrara, impianto canalizzato di condizionamento aria caldo/freddo.
Soluzione ideale per coloro che amano vivere in una zona ben servita in prossimità di esercizi commerciali, varie fermate bus e Metro (Baldo degli Ubaldi a soli 350mt).
A rendere ancora più apprezzata e molto ambita l'ubicazione, è anche l'adiacenza a Villa Doria Pamphilj e Villa Carpegna, due splendidi parchi, polmoni verdi nel cuore della Capitale. Ottimo anche ad uso investimento.

Le informazioni riportate nelle inserzioni pubblicate provengono all’agenzia immobiliare direttamente dai relativi incarichi di mediazione, non hanno alcun contenuto contrattuale e le metrature commerciali sono puramente indicative.
La Benecase Spa declina ogni responsabilità per eventuali indicazioni erronee.

LEGGI TUTTO

CONDIVIDI SUI SOCIAL

DATI PRINCIPALI

Riferimento
639819
Contratto
Vendita
Tipologia
Appartamento
Superficie
52 mq
Locali
2
Camere da letto
1
Cucina
Angolo cottura
Bagni
2
Piano
1 °
Totale piani
5

CARATTERISTICHE

Ascensore

COSTI

Prezzo
€ 269.000,00
Spese condominiali
€ 50,00 / mese

EFFICIENZA ENERGETICA

Stato
Ristrutturato
Anno costruzione
1960
Riscaldamento
Centralizzato
Climatizzazione
Si
Classe energetica
D
IPE
175,00 kWh/m²a

A+

A

B

C

175,00 kWh/m²a | Classe energetica D

D

E

F

G

MAPPA

ANNUNCI SIMILI

VENDITA
€ 320.000
Appartamento in Vendita a Roma (Roma)
  • Trilocale
  • 78 mq
  • 1 bagno
VENDITA
€ 460.000
Appartamento in Vendita a Roma, Zona Baldo degli Ubaldi
  • Quadrilocale
  • 110 mq
  • 2 bagni
VENDITA 20
€ 469.000
Appartamento in Vendita a Roma, Zona Baldo degli Ubaldi
  • Quadrilocale
  • 125 mq
  • 2 bagni