Piazza Bologna – Piano Terra – Ampia metratura con doppia de VENDITA

Via Carlo Bartolomeo Piazza 30 - Roma, Zona Bologna
€ 649.000
  • Trilocale
  • 140 mq
  • 1 bagno

Appartamento in Vendita a Roma

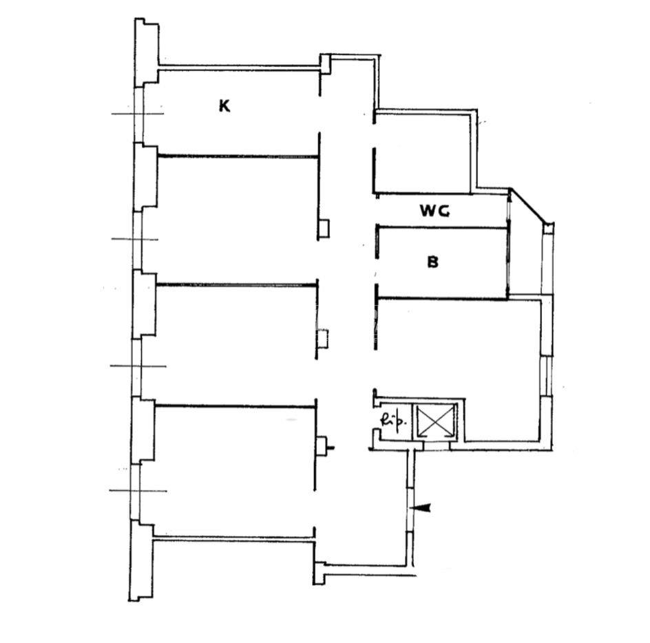
Rif: 0064900 - In una delle zone più richieste e strategiche di Piazza Bologna, all’interno di una palazzina in contesto signorile, proponiamo in vendita un appartamento sito al piano terra, attualmente adibito a studio professionale ma catastalmente A/2 (civile abitazione).
L’immobile si compone di un ingresso, cinque ampie stanze operative, un ripostiglio, due ulteriori ambienti attualmente utilizzati come magazzino e un bagno di generose dimensioni con accesso diretto al balcone.
La distribuzione interna, regolare e ben organizzata, rende la proprietà estremamente versatile: l’appartamento si presta infatti ad una facile trasformazione in un comodo trilocale oppure in un funzionale quadrilocale con doppi servizi, valorizzando al meglio gli spazi e la luminosità.
Soluzione ideale sia per chi desidera mantenere l’utilizzo professionale (studio medico, tecnico, legale o coworking), sia per chi è alla ricerca di un’abitazione principale in una zona centrale, ben collegata e ricca di servizi, università e attività commerciali.
Ottima opportunità di investimento in una delle aree più dinamiche e richieste del quartiere.

LEGGI TUTTO

CONDIVIDI SUI SOCIAL

DATI PRINCIPALI

Riferimento
628980
Contratto
Vendita
Tipologia
Appartamento
Superficie
140 mq
Locali
3
Camere da letto
2
Bagni
1
Piano
Piano terra
Totale piani
5

CARATTERISTICHE

Ascensore

COSTI

Prezzo
€ 649.000,00
Spese condominiali
€ 100,00 / mese

EFFICIENZA ENERGETICA

Stato
Da ristrutturare
Anno costruzione
1950
Riscaldamento
Centralizzato
Climatizzazione
Si
Classe energetica
G
IPE
175,00 kWh/m²a

A+

A

B

C

D

E

F

175,00 kWh/m²a | Classe energetica G

G

MAPPA

ANNUNCI SIMILI

VENDITA 20
€ 819.000
Appartamento in Vendita a Roma, Zona Bologna
  • Più di 5 locali
  • 200 mq
  • 2 bagni
VENDITA 20
€ 890.000
Appartamento in Vendita a Roma, Zona Bologna
  • Quadrilocale
  • 138 mq
  • 2 bagni
VENDITA 20
€ 710.000
Appartamento in Vendita a Roma, Zona Bologna
  • Più di 5 locali
  • 143 mq
  • 2 bagni
VENDITA 20
Trattativa Riservata
Appartamento in Vendita a Roma, Zona Bologna
  • Più di 5 locali
  • 260 mq
  • 2 bagni
VENDITA 10
€ 505.000
Appartamento in Vendita a Roma, Zona Bologna
  • Quadrilocale
  • 95 mq
  • 1 bagno