PIANO ALTO CON ASCENSORE - GRANDE TRILOCALE CON 2 BALCONI VENDITA

Viale Fratelli Rosselli, 28 - Genzano di Roma (Roma)
€ 185.000
  • Trilocale
  • 104 mq
  • 1 bagno

Appartamento in Vendita a Genzano di Roma

Genzano di Roma - Centro, Via Fratelli Rosselli

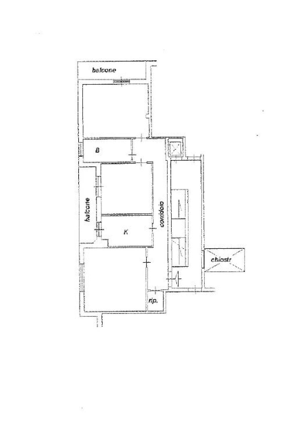
In posizione centralissima, a due passi dal corso principale del paese e dall'Olmata, proponiamo in vendita un grande trilocale con due balconi, con possibilità di ricavare una terza camera da letto ed un secondo servizio.

L'appartamento, di circa 104 mq, si trova al terzo piano di una palazzina con ascensore ed in ottime condizioni ed è composto da:
- ingresso
- salone
- cucina abitabile
- due camere matrimoniali
- servizio con finestra
- due ampi balconi

L'immobile è in buone condizioni, ha portone blindato e riscaldamento autonomo. Possibilità di parcheggio all'interno dell'area condominiale.

€ 185.000

CONTATTACI PER FISSARE UN APPUNTAMENTO!
www.immobilcenter.it
Corso Matteotti n. 125 - Albano Laziale
Via Plauzio n. 6 - Roma
Raffaella Lavagnini 338.2321122 0681150220

LEGGI TUTTO

CONDIVIDI SUI SOCIAL

DATI PRINCIPALI

Riferimento
639049
Contratto
Vendita
Tipologia
Appartamento
Superficie
104 mq
Locali
3
Camere da letto
2
Cucina
Abitabile
Bagni
1
Piano
3 °
Totale piani
5

CARATTERISTICHE

Ascensore

COSTI

Prezzo
€ 185.000,00
Spese condominiali
€ 45,00 / mese

EFFICIENZA ENERGETICA

Stato
Abitabile
Anno costruzione
1976
Riscaldamento
Autonomo
Classe energetica
G
IPE
185,00 kWh/m²a

A+

A

B

C

D

E

F

185,00 kWh/m²a | Classe energetica G

G

MAPPA

ANNUNCI SIMILI