Parioli Via Civinini 61 appartamento 190 mq VENDITA

Via Filippo Civinini 61 - Roma (Roma)
€ 900.000
  • Più di 5 locali
  • 191 mq
  • 2 bagni

Appartamento in Vendita a Roma

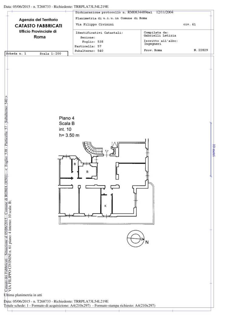
CI AFFIDI IL SUO IMMOBILE SENZA PAGARE LA PROVVIGIONE. Parioli Via Civinini 61 Appartamento sito al piano quarto (intermedio con ascensore), int. 10, composto da 9 vani. L'unità immobiliare è composta da un ampio ingresso, corridoio, soggiorno doppio, anti-cucina e cucina, 4 camere, due bagni e un ripostiglio. Cantina posta al piano primo sottostrada (S1), int. 7, con accesso da due vani scala secondari che collegano il piano terra all’interrato e corridoio comune del fabbricato. Sup. mq catastali 191 e mq catastali 5. Libero. asta offerta minima € 904.900.Per info. Marco Dickmann 339/1980066 392/1626575 06/79786066 IMMOBILE VISITABILE E MUTUABILE. PER INFO MARCO DICKMANN 06/79786066 339/1980066 392/1626575. GUARDI TUTTI I NOSTRI ANNNUNCI USANDO QUESTO LINK: https://www.immobiliare.it/agenzie-immobiliari/93358/balduina-immobiliare-roma/?pag=1&sortBy=prezzo&sortDir=desc rif. 15 05

LEGGI TUTTO

CONDIVIDI SUI SOCIAL

DATI PRINCIPALI

Riferimento
641654
Contratto
Vendita
Tipologia
Appartamento
Superficie
191 mq
Locali
Più di 5
Camere da letto
4
Cucina
Abitabile
Bagni
2
Piano
4 °
Totale piani
5

CARATTERISTICHE

Ascensore

COSTI

Prezzo
€ 900.000,00
Spese condominiali
€ 1,00 / mese

EFFICIENZA ENERGETICA

Stato
Da ristrutturare
Riscaldamento
Centralizzato
Climatizzazione
Si
Classe energetica
G
IPE
175,00 kWh/m²a

A+

A

B

C

D

E

F

175,00 kWh/m²a | Classe energetica G

G

MAPPA

ANNUNCI SIMILI

VENDITA
€ 1.500.000
Appartamento in Vendita a Roma (Roma)
  • Più di 5 locali
  • 250 mq
  • 3 bagni
VENDITA 20
€ 1.180.000
Appartamento in Vendita a Roma (Roma)
  • Più di 5 locali
  • 250 mq
  • 3 bagni
VENDITA 20
Trattativa Riservata
Appartamento in Vendita a Roma (Roma)
  • Più di 5 locali
  • 400 mq
  • 3 bagni
VENDITA 5
€ 5.500.000
Appartamento in Vendita a Roma (Roma)
  • Più di 5 locali
  • 521 mq
  • 4 bagni
VENDITA 20
€ 800.000
Appartamento in Vendita a Roma (Roma)
  • Più di 5 locali
  • 120 mq
  • 2 bagni
VENDITA 20
€ 1.300.000
Appartamento in Vendita a Roma (Roma)
  • Più di 5 locali
  • 180 mq
  • 3 bagni
VENDITA 20
€ 1.470.000
Appartamento in Vendita a Roma (Roma)
  • Più di 5 locali
  • 257 mq
  • 3 bagni
VENDITA 19
€ 450.000
Appartamento in Vendita a Roma (Roma)
  • Più di 5 locali
  • 62 mq
  • 1 bagno
VENDITA 20
€ 4.800.000
Appartamento in Vendita a Roma (Roma)
  • Più di 5 locali
  • 629 mq
  • 4 bagni