Parioli splendido bilocale arredato AFFITTO

Via Antonio Pollaiolo 2 - Roma, Zona Parioli
€ 1.495 mensili
  • Bilocale
  • 60 mq
  • 1 bagno

Appartamento in Affitto a Roma

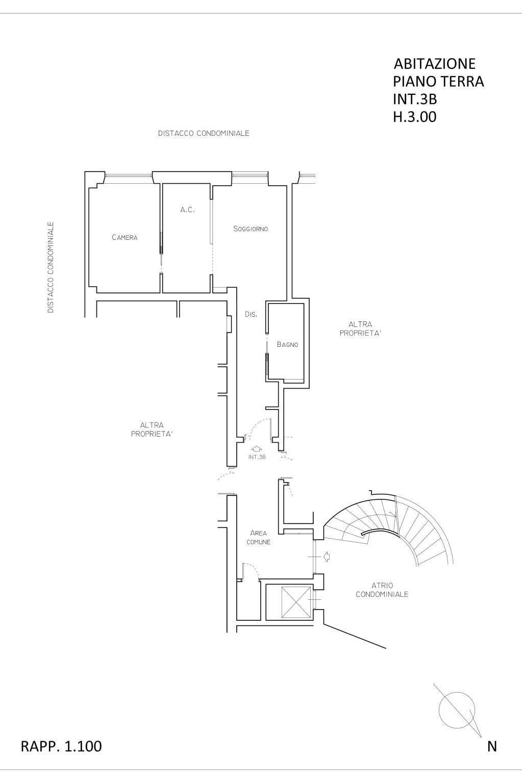
Nel distretto dei Monti Parioli ed esattamente in Via Antonio Pollaiolo, presentiamo un elegante bilocale di circa mq. 60, ubicato in un edificio degli anni 50 dotato di servizio di portineria, posto al piano rialzato alto, ma con affaccio a tutti gli effetti da piano primo.L'esposizione è in pieno sud con affacci gradevoli in verdi distacchi tra palazzi. L'immobile risulta essere composto da un ingresso, un soggiorno con cucina a vista, una area lavanderia, una camera da letto, un bagno, il tutto rifinito con materiali di pregio e parquet. L' immobile è inoltre dotato di aria condizionata, wifii, riscaldamento centralizzato, mentre la produzione di acqua calda proviene dalla caldaia condominiale. L'ubicazione dell'immobile è ottima, infatti dista solo 10 minuti a piedi dalla stazione Euclide, (la metro leggera della capitale) e dai mezzi di superficie quali il bus n. 52, con le fermate nella vicine via di S. Valentino e via Ximenes. Facilmente raggiungibili: il polmone verde di villa Glori e il polo culturale del Parco della Musica. Innumerevoli sono i servizi e i negozi delle più famose griffe. E' RICHIESTA FIDEIUSSIONE BANCARIA -Finavib Realestate Vendite ed Affitti Immobiliari - VALUTAZIONI GRATUITE ANCHE GIORNI FESTIVI Tel. : 3396128548 Ricerchiamo appartamenti in VENDITA E IN LOCAZIONE per la nostra selezionata Clientela, nelle zone: Trieste, Nomentano, Bologna, Centro storico.

LEGGI TUTTO

CONDIVIDI SUI SOCIAL

DATI PRINCIPALI

Riferimento
630291
Contratto
Affitto
Tipologia
Appartamento
Superficie
60 mq
Locali
2
Camere da letto
1
Cucina
Abitabile
Bagni
1
Piano
Piano rialzato
Totale piani
4

CARATTERISTICHE

Ascensore

COSTI

Canone
Affitto € 1.495,00 al mese
Tipo locazione
Libero
Spese condominiali
€ 100,00 / mese, non incluse nel canone

EFFICIENZA ENERGETICA

Stato
Ristrutturato
Anno costruzione
1950
Riscaldamento
Centralizzato
Climatizzazione
Si
Classe energetica
F
IPE
175,00 kWh/m²a

A+

A

B

C

D

E

175,00 kWh/m²a | Classe energetica F

F

G

MAPPA

ANNUNCI SIMILI

AFFITTO 20
€ 2.250 mensili
Appartamento in Affitto a Roma (Roma)
  • Quadrilocale
  • 128 mq
  • 2 bagni
AFFITTO 20
€ 4.200 mensili
Appartamento in Affitto a Roma (Roma)
  • Più di 5 locali
  • 219 mq
  • 4 bagni
AFFITTO 20
€ 3.500 mensili
Appartamento in Affitto a Roma (Roma)
  • Più di 5 locali
  • 205 mq
  • 3 bagni