PALOMBARA S.: Appartamento piano seminterrato con cantina. VENDITA

Via degli ulivi 6 - Palombara Sabina (Roma)
€ 69.000
  • Più di 5 locali
  • 101 mq
  • 1 bagno

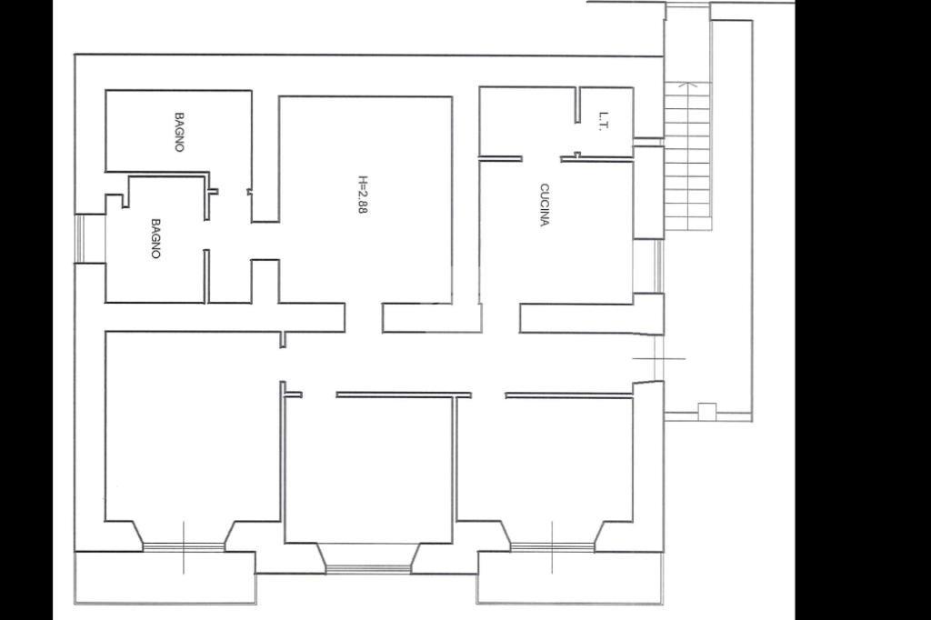
Appartamento in Vendita a Palombara Sabina

Se stai cercando una casa spaziosa, comoda e funzionale, a due passi dal centro ma in un contesto tranquillo,questa è la soluzione perfetta per te.

Nel comune di Palombara Sabina, in Via degli Ulivi, a pochi metri dal Municipio e dai principali servizi,proponiamo in vendita un quadrilocale di 101 mq con ingresso indipendente, situato al piano seminterrato diuna piccola palazzina degli anni ’70 composta da soli quattro appartamenti. L’immobile presenta una distribuzione interna tipica dell’epoca, con ambienti ampi e ben distinti: un doppiodisimpegno separa la zona giorno dalla zona notte. La zona notte è composta da tre camere matrimonialiluminose, mentre la zona giorno include sala da pranzo, cucina con piccola dispensa e due bagni, uno condoccia e uno con vasca.
Completano la proprietà due balconi, accessibili da due delle camere matrimoniali, dai quali si gode unpiacevole affaccio sulla campagna circostante. Dal punto di vista tecnico l’abitazione dispone di acqua e fognatura dirette, riscaldamento a metano epavimenti in marmittoni.

Gli infissi sono in vetro singolo con persiane in legno. L’immobile necessita dilavori di ristrutturazione, offrendo così la possibilità di personalizzare gli spazi secondo i propri gusti ed esigenze. Il valore aggiunto? L’ampia metratura, la tripla esposizione che garantisce luminosità e la posizione centrale,che permette di raggiungere comodamente a piedi servizi, uffici e attività commerciali.

Ottimi i collegamenti grazie alle linee Cotral per Roma e per la stazione ferroviaria di Pianabella di Montelibretti; Guidonia Montecelio e Tivoli distano circa 20 km.Una soluzione ideale per famiglie o per chi desidera ampi spazi in una zona centrale e ben collegata.

LEGGI TUTTO

CONDIVIDI SUI SOCIAL

DATI PRINCIPALI

Riferimento
640436
Contratto
Vendita
Tipologia
Appartamento
Superficie
101 mq
Locali
5
Camere da letto
3
Cucina
Angolo cottura
Bagni
1
Piano
Seminterrato
Totale piani
3

CARATTERISTICHE

Ascensore

COSTI

Prezzo
€ 69.000,00

EFFICIENZA ENERGETICA

Stato
Da ristrutturare
Anno costruzione
1965
Riscaldamento
Autonomo
Classe energetica
G
IPE
576,57 kWh/m²a

A+

A

B

C

D

E

F

576,57 kWh/m²a | Classe energetica G

G

MAPPA

ANNUNCI SIMILI

VENDITA 16
€ 158.000
Appartamento in Vendita a Marcellina (Roma)
  • Più di 5 locali
  • 149 mq
  • 2 bagni
VENDITA 17
€ 53.000
Appartamento in Vendita a Moricone (Roma)
  • Più di 5 locali
  • 140 mq
  • 2 bagni
VENDITA 17
€ 53.000
Appartamento in Vendita a Moricone (Roma)
  • Più di 5 locali
  • 140 mq
  • 2 bagni