PALESTRINA: APPARTAMENTO DUPLEX RISTRUTTURATO CON BOX AUTO VENDITA

VIA GABRIELE D'ANNUNZIO - Palestrina (Roma)
€ 165.000
  • Trilocale
  • 90 mq
  • 1 bagno

Appartamento in Vendita a Palestrina

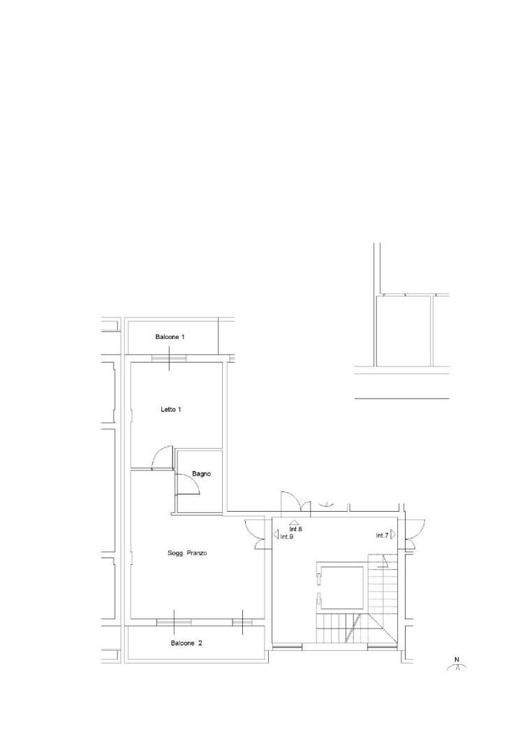
Mediazionecasa propone in vendita, nel Comune di Palestrina, e precisamente in via Gabriele d’Annunzio, all’interno di un edificio in corso di riqualificazione e dotato di ascensore, proponiamo in vendita un appartamento duplex di 90 mq, posto al piano terzo e quarto, recentemente ristrutturato e pronto per essere abitato.
L'immobile si distingue per la sua ottima organizzazione degli spazi interni e per la notevole luminosità, grazie alla doppia esposizione e alla presenza di ampie superfici finestrate.
L’ingresso si apre su un ampio e accogliente salone, servito da una portafinestra che conduce al primo balcone, dove è stata predisposta una comoda zona lavanderia. A seguire, troviamo un ampio angolo cottura, perfetto per chi ama vivere gli spazi della casa con funzionalità e comfort.
La zona notte è ben disimpegnata e comprende una camera da letto matrimoniale, dotata di balcone privato e un bagno fornito di box doccia. L’immobile sarà completato con la realizzazione di una scala per poter accedere al piano sovrastante, dove troviamo un unico ambiente mansardato, spazio funzionale da adibire a magazzino, studio o eventualmente seconda camera da letto.
Completa la proprietà un box auto privato, elemento di valore aggiunto per comodità e sicurezza.
La posizione dell'immobile è strategica: nel raggio di pochi km si trovano tutti i principali servizi offerti dal Comune di Palestrina, tra cui scuole, supermercati, trasporti pubblici e strutture sanitarie.
Un’ottima soluzione abitativa per famiglie, giovani coppie o come investimento di qualità, in un contesto in fase di valorizzazione.

LEGGI TUTTO

CONDIVIDI SUI SOCIAL

DATI PRINCIPALI

Riferimento
637322
Contratto
Vendita
Tipologia
Appartamento
Superficie
90 mq
Locali
3
Camere da letto
2
Cucina
Abitabile
Bagni
1
Piano
1 °
Totale piani
3
Box/Posto auto
Singolo

CARATTERISTICHE

Ascensore

COSTI

Prezzo
€ 165.000,00
Spese condominiali
€ 35,00 / mese

EFFICIENZA ENERGETICA

Stato
Ristrutturato
Anno costruzione
2007
Riscaldamento
Autonomo
Classe energetica
G
IPE
175,00 kWh/m²a

A+

A

B

C

D

E

F

175,00 kWh/m²a | Classe energetica G

G

MAPPA

ANNUNCI SIMILI