Ottimo anche uso investimento VENDITA

Viale Leonardo da Vinci 224 - Roma, Zona San Paolo
€ 410.000
  • Trilocale
  • 90 mq
  • 1 bagno

Appartamento in Vendita a Roma

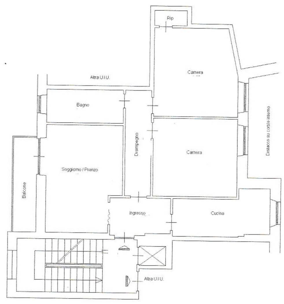
Casamania Immobiliare propone uno splendido appartamento all'ultimo piano situato nel cuore del quartiere San Paolo. Con una superficie di 90 mq, e con un' ottima esposizione (est/ovest) l'immobile è molto luminoso, ed è composto, da un'accogliente cucina abitabile, un soggiorno con balcone, due ampie camere matrimoniali, un ripostiglio e un bagno con finestra. Completa la proprietà una soffitta con balcone, un terrazzo condominiale e la proprietà pro-quota degli spazi condominiali indivisi.
Il complesso signorile, dotato di servizio di portineria, garantisce un'ottima praticità quotidiana avendo anche un altro accesso da via G. Chiabrera. La posizione strategica permette di raggiungere la metropolitana in pochi minuti a piedi, rendendolo ideale anche per chi non vuole usare la macchina. La vicinanza all'università e a numerose attività commerciali rendono questo immobile ottimale anche per un investimento.
Contattaci per maggiori informazioni e per prenotare una visita!

LEGGI TUTTO

CONDIVIDI SUI SOCIAL

DATI PRINCIPALI

Riferimento
636775
Contratto
Vendita
Tipologia
Appartamento
Superficie
90 mq
Locali
3
Camere da letto
2
Cucina
Abitabile
Bagni
1
Piano
7
Totale piani
8

CARATTERISTICHE

Ascensore

COSTI

Prezzo
€ 410.000,00
Spese condominiali
€ 112,00 / mese

EFFICIENZA ENERGETICA

Stato
Abitabile
Anno costruzione
1960
Riscaldamento
Centralizzato
Climatizzazione
Si
Classe energetica
E
IPE
81,41 kWh/m²a

A+

A

B

C

D

81,41 kWh/m²a | Classe energetica E

E

F

G

MAPPA

ANNUNCI SIMILI

VENDITA 20
€ 445.000
Appartamento in Vendita a Roma, Zona San Paolo
  • Trilocale
  • 90 mq
  • 1 bagno
VENDITA 20
€ 315.000
Appartamento in Vendita a Roma, Zona San Paolo
  • Quadrilocale
  • 125 mq
  • 2 bagni