NUOVO bilocale ready to live VENDITA

Piazza Acilia 4 - Roma (Roma)
€ 355.000
  • Bilocale
  • 51 mq
  • 1 bagno

Appartamento in Vendita a Roma

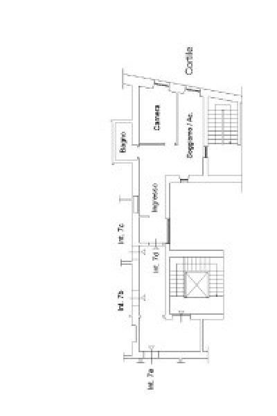
**Appartamento BILOCALE Ristrutturato in Vendita a Roma** Scopri questo splendido appartamento bilocale, completamente ristrutturato e pronto per essere abitato. Con una superficie di circa 51 mq, situato al primo piano di una palazzina con ascensore, questo immobile è stato rinnovato con finiture di alta qualità, completate a dicembre 2025. L'ingresso accogliente conduce a una luminosa sala con angolo cottura, una camera da letto elegante e un bagno raffinato, perfetto per chi cerca comfort e stile. La cantina di 8 mq inclusa offre ulteriore spazio per riporre i tuoi effetti personali. La posizione è ideale, a pochi passi dalla facoltà di Giurisprudenza della LUISS e con accesso rapido al parco di Villa Ada, un'oasi di verde nel cuore della città. Inoltre, la vicinanza alle fermate della metro B Libia e Sant'Agnese/Annibaliano rende questo appartamento perfetto per chi desidera muoversi facilmente in città. Il quartiere è ben servito, con tutti i servizi di prima e seconda necessità a portata di mano. L'immobile è adatto anche per persone con mobilità ridotta, grazie all'accesso facilitato. Non perdere l'opportunità di vivere in un contesto moderno e funzionale, con aria condizionata e riscaldamento a gas naturale. Contattaci per maggiori informazioni e prenota una visita!

LEGGI TUTTO

CONDIVIDI SUI SOCIAL

DATI PRINCIPALI

Riferimento
637892
Contratto
Vendita
Tipologia
Appartamento
Superficie
51 mq
Locali
2
Camere da letto
1
Cucina
Angolo cottura
Bagni
1
Piano
1 °
Totale piani
5

CARATTERISTICHE

Ascensore

COSTI

Prezzo
€ 355.000,00
Spese condominiali
€ 50,00 / mese

EFFICIENZA ENERGETICA

Stato
Nuovo/In costruzione
Anno costruzione
1940
Riscaldamento
Centralizzato
Climatizzazione
Predisposizione
Classe energetica
E
IPE
175,00 kWh/m²a

A+

A

B

C

D

175,00 kWh/m²a | Classe energetica E

E

F

G

MAPPA

ANNUNCI SIMILI

VENDITA 8
€ 380.000
Appartamento in Vendita a Roma (Roma)
  • Bilocale
  • 51 mq
  • 1 bagno
VENDITA 17
€ 355.000
Appartamento in Vendita a Roma (Roma)
  • Bilocale
  • 51 mq
  • 1 bagno
VENDITA 16
€ 355.000
Appartamento in Vendita a Roma (Roma)
  • Bilocale
  • 51 mq
  • 1 bagno
VENDITA 16
€ 355.000
Appartamento in Vendita a Roma (Roma)
  • Bilocale
  • 51 mq
  • 1 bagno
VENDITA 12
€ 355.000
Appartamento in Vendita a Roma (Roma)
  • Bilocale
  • 51 mq
  • 1 bagno
VENDITA 11
€ 365.000
Appartamento in Vendita a Roma (Roma)
  • Bilocale
  • 51 mq
  • 1 bagno
VENDITA 14
€ 490.000
Appartamento in Vendita a Roma (Roma)
  • Bilocale
  • 97 mq
  • 1 bagno