NUDA PROPRIETA' - TRILOCALE CON BALCONI VENDITA

Viale Palmiro Togliatti - Roma (Roma)
€ 185.000
  • Trilocale
  • 100 mq
  • 1 bagno

Appartamento in Vendita a Roma

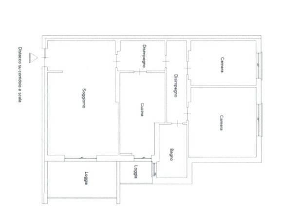
NUDA PROPRIETA' - COLLI ANIENE - VIALE PALMIRO TOGLIATTI - La Fiore Real Estate propone la vendita della NUDA PROPRIETA' (90 anni) di un trilocale in buono stato, sito all' 8° piano di una palazzina dotata di doppio ascensore. L'appartamento è composto da ampio soggiorno con balcone vivibile, cucina abitabile trasformabile in un'eventuale terza camera con balcone, due camere da letto e un bagno finestrato. L'immobile è un'ottima soluzione ad uso investimento. La zona è immersa nel verde e ricca di ogni servizio, ben collegata al Centro Storico dalla Linea "Metro B" con le Stazioni di "Ponte Mammolo" e "Santa Maria del Soccorso". Per informazioni e sopralluoghi chiamare il numero 0681152795 oppure scrivere una mail a info@fiorerealestate.it.

In ambito residenziale, la Fiore Real Estate è in grado di far fronte alle richieste dei clienti più esigenti, anche nel caso di messa a reddito degli immobili, offrendo consulenze e opportunità di investimento.

Fiore Real Estate: Via Sicilia 154 - 00187 Roma

LEGGI TUTTO

CONDIVIDI SUI SOCIAL

DATI PRINCIPALI

Riferimento
638648
Contratto
Vendita
Tipologia
Appartamento
Superficie
100 mq
Locali
3
Camere da letto
2
Cucina
Abitabile
Bagni
1
Piano
Più di 7 piani
Totale piani
14

CARATTERISTICHE

Ascensore

COSTI

Prezzo
€ 185.000,00
Spese condominiali
€ 80,00 / mese

EFFICIENZA ENERGETICA

Stato
Abitabile
Anno costruzione
1980
Riscaldamento
Centralizzato
Classe energetica
G
IPE
180,00 kWh/m²a

A+

A

B

C

D

E

F

180,00 kWh/m²a | Classe energetica G

G

MAPPA

ANNUNCI SIMILI

VENDITA 20
€ 289.000
Appartamento in Vendita a Roma (Roma)
  • Trilocale
  • 96 mq
  • 2 bagni
VENDITA 20
€ 189.000
Appartamento in Vendita a Roma (Roma)
  • Trilocale
  • 100 mq
  • 2 bagni
VENDITA 20
€ 260.000
Appartamento in Vendita a Roma (Roma)
  • Trilocale
  • 93 mq
  • 1 bagno
VENDITA 16
€ 285.000
Appartamento in Vendita a Roma (Roma)
  • Quadrilocale
  • 131 mq
  • 2 bagni
VENDITA 20
€ 225.000
Appartamento in Vendita a Roma (Roma)
  • Trilocale
  • 103 mq
  • 2 bagni
VENDITA 6
€ 269.000
Appartamento in Vendita a Roma (Roma)
  • Trilocale
  • 96 mq
  • 2 bagni
VENDITA 20
€ 285.000
Appartamento in Vendita a Roma (Roma)
  • Trilocale
  • 96 mq
  • 2 bagni
VENDITA 20
€ 270.000
Appartamento in Vendita a Roma (Roma)
  • Trilocale
  • 95 mq
  • 2 bagni
VENDITA 18
€ 319.000
Appartamento in Vendita a Roma (Roma)
  • Trilocale
  • 95 mq
  • 2 bagni