NUDA PROPRIETA' Signorile Casa con Terrazza e parquet VENDITA

Via Latina 69 - Roma, Zona Appio Latino
€ 350.000
  • Più di 5 locali
  • 131 mq
  • 2 bagni

Appartamento in Vendita a Roma

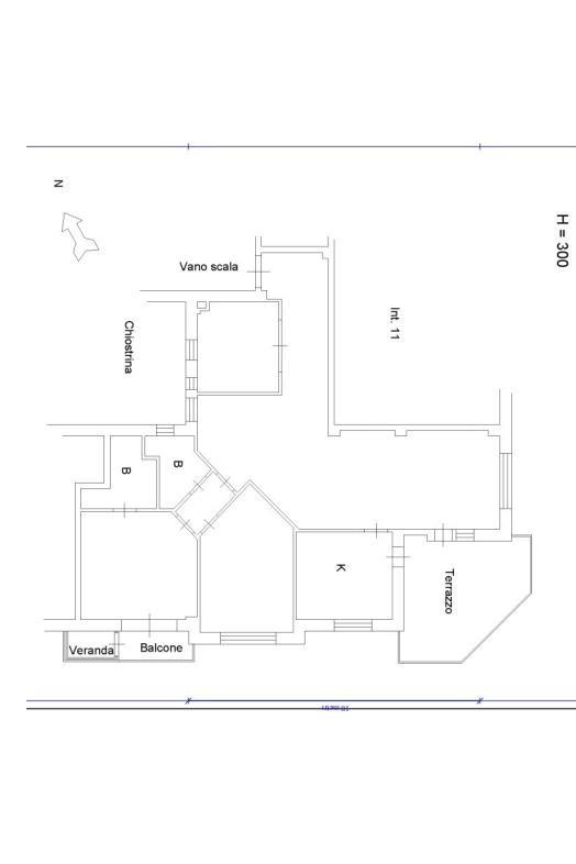
Pregevole NUDA PROPRIETA' USUFRUTTUARIA 68 ANNI Nel cuore del quartiere Appio-Latino, presentiamo un raffinato appartamento di ampia metratura, dotato di terrazza e soffitta di pertinenza, risultato di una totale ristrutturazione eseguita secondo un progetto architettonico che ha coinvolto ogni aspetto della casa, creando un ambiente armonioso, contemporaneo e funzionale. L’appartamento si distingue per un’atmosfera calda e sofisticata, grazie anche alla presenza di un parquet in rovere in tutti gli ambienti, che dona continuità e un tocco di prestigio agli spazi. E' posto al piano II di una signorile palazzina in cortina in ottimo stato di manutenzione, con ascensore e servizio di portierato.

Zona giorno: ampi spazi ed eleganza
Il living di circa 40 mq è il cuore pulsante della casa, un ambiente imponente e centrale che accoglie: una zona pranzo perfetta per ricevere ospiti e organizzare cene conviviali; una zona salotto adiacente la terrazza, arricchita da una splendida parete con libreria a tutt'altezza artigianale in legno naturale e muratura, perfetta per gli amanti della lettura e del collezionismo. La generosa metratura permette allo stato attuale anche di ospitare un pianoforte a coda e mobili d'antiquariato.
A completare la zona giorno, troviamo una bella e ampia sala di ingresso ed uno studio riservato e dotato di armadi su misura, ideale sia per chi lavora da casa o desidera uno spazio dedicato alle proprie passioni, sia per chi necessiti di una cameretta extra.

Cucina: design e qualità
La cucina abitabile della casa è un ambiente luminoso e moderno, dotato di mobili angolari ALNO di qualità elevata e equipaggiata da elettrodomestici AEG in acciaio inox, sinonimi di efficienza e durata.
Il layout è pensato per ottimizzare gli spazi, con una pratica penisola che offre un comodo piano d’appoggio e un’area perfetta per colazioni e pasti informali. La grande finestra garantisce un’ottima luminosità naturale, mentre l'accesso diretto alla terrazza e la vicinanza alla zona pranzo del salone la rendono funzionale.

Zona notte: comfort e privacy
La casa dispone di due spaziose camere da letto principali, entrambe con parquet in rovere e finiture eleganti, nettamente disimpegnate dalla zona giorno, e tra cui una suite con bagno e balcone privato.
I due bagni sono entrambi completi ben rifiniti con rivestimenti attuali e pregevoli: uno è dotato di vasca e finestra, mentre l’altro en suite dispone di doccia.

Terrazzo: un’oasi privata all’aperto
Fiore all’occhiello dell’abitazione è il meraviglioso terrazzo abitabile, un angolo di pace dove rilassarsi o ricevere ospiti godendo di una piacevole vista sul verde di un parco privato. Lo spazio, attualmente arredato con fioriere, tavolo, poltrone e salottino, include una zona lavello esterna con top in marmo e sportelli contenitori, perfetta per organizzare pranzi all’aperto.

Un ambiente silenzioso con affacci sul verde
Uno degli aspetti più apprezzabili di questa casa è la tranquillità: grazie alla sua posizione privilegiata e agli affacci interni, l’appartamento gode di un’atmosfera riservata e rilassante. La vista dalla terrazza, esposta ad angolo, dalla cucina e dalle camere è particolarmente gradevole e silenziosa, un dettaglio che aggiunge ulteriore valore e qualità alla vita quotidiana.

Ristrutturazione e dettagli di pregio
Questa casa è il frutto di un’attenta ristrutturazione realizzata su progetto che ha curato ogni singolo dettaglio tra cui menzioniamo:

Disponibile e consigliato Virtual Tour 3D con misure laser!
Info e visite: 0645667140 roma.appiolatino@sceglicasa.e

LEGGI TUTTO

CONDIVIDI SUI SOCIAL

DATI PRINCIPALI

Riferimento
630247
Contratto
Vendita
Tipologia
Appartamento
Superficie
131 mq
Locali
5
Camere da letto
3
Cucina
Abitabile
Bagni
2
Piano
6 °
Totale piani
5

CARATTERISTICHE

Ascensore

COSTI

Prezzo
€ 350.000,00
Spese condominiali
€ 100,00 / mese

EFFICIENZA ENERGETICA

Stato
Ristrutturato
Anno costruzione
1970
Riscaldamento
Centralizzato
Climatizzazione
Si
Classe energetica
G
IPE
191,66 kWh/m²a

A+

A

B

C

D

E

F

191,66 kWh/m²a | Classe energetica G

G

MAPPA

ANNUNCI SIMILI

VENDITA 4
€ 920.000
Appartamento in Vendita a Roma, Zona Appio Latino
  • Più di 5 locali
  • 180 mq
  • 3 bagni
VENDITA 20
€ 750.000
Appartamento in Vendita a Roma, Zona Appio Latino
  • Più di 5 locali
  • 215 mq
  • 2 bagni
VENDITA 20
€ 560.000
Appartamento in Vendita a Roma, Zona Appio Latino
  • Più di 5 locali
  • 144 mq
  • 2 bagni
VENDITA 20
€ 795.000
Appartamento in Vendita a Roma, Zona Appio Latino
  • Più di 5 locali
  • 201 mq
  • 2 bagni
VENDITA 20
€ 890.000
Appartamento in Vendita a Roma, Zona San Giovanni
  • Più di 5 locali
  • 206 mq
  • 3 bagni
VENDITA 2
€ 439.000
Appartamento in Vendita a Roma, Zona Re di Roma
  • Più di 5 locali
  • 122 mq
  • 1 bagno
VENDITA 20
€ 820.000
Appartamento in Vendita a Roma, Zona Re di Roma
  • Più di 5 locali
  • 173 mq
  • 3 bagni