Nettuno Centro App.to 111Mq € 215.000 AN2504 VENDITA

Via dell'Olmata, 9 - Nettuno (Roma)
€ 215.000
  • Quadrilocale
  • 111 mq
  • 2 bagni

Appartamento in Vendita a Nettuno

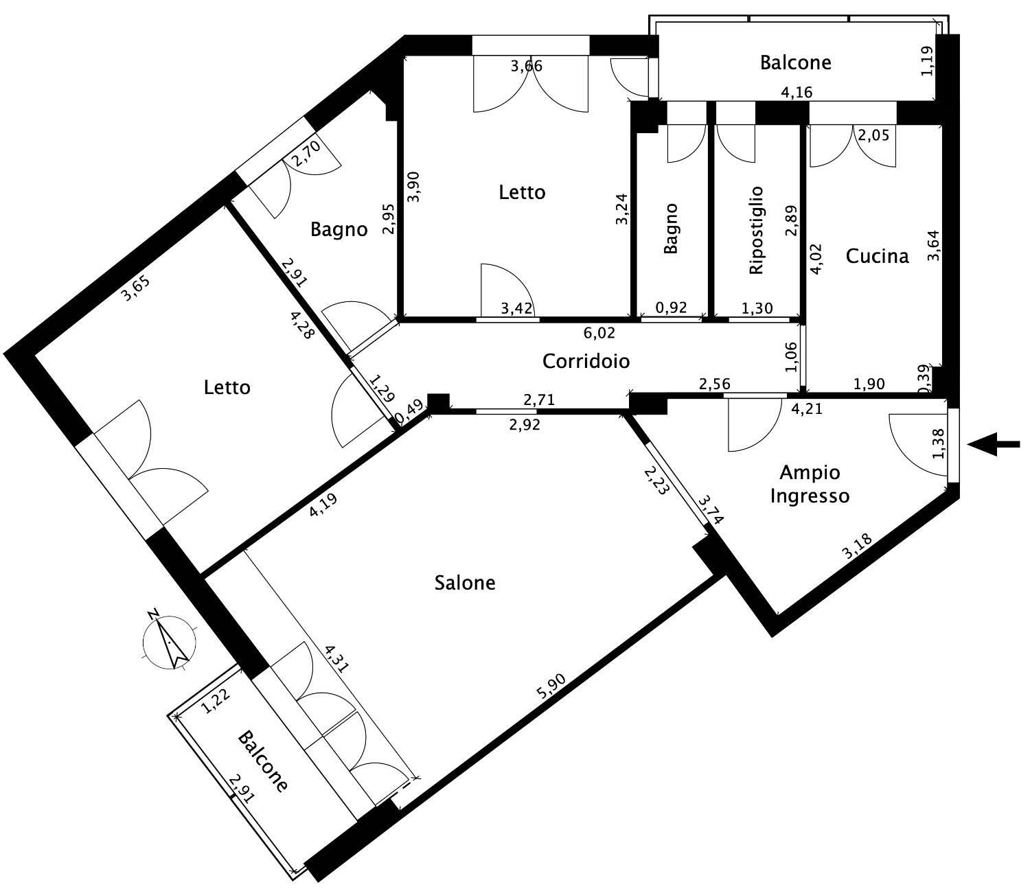
Nettuno, in zona Centro, e precisamente in Via dell'Olmata, proponiamo in VENDITA un Appartamento sito al Piano 1° con ascensore in una palazzina in cortina.

L'appartamento è di 111Mq catastali (di cui 108Mq abitativi).

Internamente l'appartamento è composto da un grande Ingresso dal quale si accede al grande salone e al corridoio, nel corridoio troviamo l'accesso alla cucina, al ripostiglio, alle 2 Camere da letto Matrimoniali, ai 2 Bagni ed al Salone.

Completano la proprietà 2 balconi:

- uno di 6Mq circa con affaccio su Via dell'Olmata, al quale si accede sia dalla Cucina che da una delle due Camere da Letto;

- uno di 4Mq circa con affaccio su Via Sangallo, al quale si accede dal Salone.

L'immobile si presente di uno stato conservativo buono, ma parzialmente da ammodernare.

Gli infissi sono tutti in alluminio bianco stondato, con doppio vetro.

E' presente un vecchio impianto di riscaldamento condominiale ormai in disuso.

Tutti gli ambienti sono finestrati.

La pavimentazione è mista:

- nell'ingresso e nel salone è presente un marmo bianco in buono stato;

- nel corridoio e nel ripostiglio troviamo delle marmette di segato a grana fina, chiaro, in buono stato;

- nelle camere è presente un marmittone di segato a grana media, chiaro/scuro, in buono stato;

- in cucina abbiamo delle marmette a grana finissima, verdi, in buono stato;

- il bagnetto di servizio è stato ristrutturato recentemente;

- il bagno principale è maiolicato bianco classico, tutto in buono stato.

L'impianto elettrico è originale dell'epoca, a parte qualche eccezione.

La palazzina in cui si trova l'appartamento è stata costruita nei primi anni '60 ed è composta da 21 appartamenti e 9 Locali Commerciali. Lo stato di conservazione della palazzina è buono ed è interamente rivestita in cortina.

Sono stati deliberati i lavori di rifacimento della facciata. Sti stessi sono inclusi nel prezzo di vendita.

Acqua condominiale a consumo.

Spese condominiali pari ad € 50/mese circa, escluso consumo acqua.

Attualmente l'immobile è affittato con contratto abitativo concordato scadente il 31/01/2027, per un importo mensile pari ad € 750/mese.

L'immobile per la sua ubicazione ed esposizione, si presta a molteplici utilizzi.

Ottimo come abitazione principale e secondaria, o come casa vacanze da mettere a reddito. Utilizzabile anche uso ufficio privato/professionale e/o similare.

€ 215.000 Rif.AN2504. Classe Energetica F (136,5590 kWh/mqa).

Si possono organizzare video-visite gratuite a distanza. A semplice richiesta, previo appuntamento da concordare.

Il sopralluogo è a pagamento, il costo è di € 30 iva inclusa, da scontare sulle provvigioni finali.

Mingiacchi Servizi Immobiliari 0698840024 3332360985 info@mingiacchi.com www.mingiacchi.com

Tutti i contenuti (dati, descrizioni o qualsiasi altro scritto, foto, planimetrie ed eventuali misure) di questo annuncio immobiliare sono ritenuti corretti, ma non costituiscono alcun presupposto contrattuale.

LEGGI TUTTO

CONDIVIDI SUI SOCIAL

DATI PRINCIPALI

Riferimento
630956
Contratto
Vendita
Tipologia
Appartamento
Superficie
111 mq
Locali
4
Camere da letto
2
Cucina
Abitabile
Bagni
2
Piano
1 °
Totale piani
6

CARATTERISTICHE

Ascensore

COSTI

Prezzo
€ 215.000,00
Spese condominiali
€ 50,00 / mese

EFFICIENZA ENERGETICA

Stato
Abitabile
Anno costruzione
1965
Classe energetica
G
IPE
136,56 kWh/m²a

A+

A

B

C

D

E

F

136,56 kWh/m²a | Classe energetica G

G

MAPPA

ANNUNCI SIMILI

VENDITA 20
€ 219.000
Appartamento in Vendita a Nettuno (Roma)
  • Quadrilocale
  • 94 mq
  • 2 bagni
VENDITA 20
€ 190.000
Appartamento in Vendita a Nettuno (Roma)
  • Più di 5 locali
  • 128 mq
  • 1 bagno
VENDITA 20
€ 659.000
Appartamento in Vendita a Nettuno (Roma)
  • Più di 5 locali
  • 210 mq
  • 3 bagni
VENDITA 20
€ 148.000
Appartamento in Vendita a Nettuno (Roma)
  • Quadrilocale
  • 67 mq
  • 1 bagno
VENDITA 20
€ 170.000
Appartamento in Vendita a Nettuno (Roma)
  • Più di 5 locali
  • 90 mq
  • 2 bagni
VENDITA 20
€ 250.000
Appartamento in Vendita a Nettuno (Roma)
  • Quadrilocale
  • 100 mq
  • 2 bagni
VENDITA 20
€ 178.000
Appartamento in Vendita a Nettuno (Roma)
  • Quadrilocale
  • 168 mq
  • 2 bagni
VENDITA 20
€ 250.000
Appartamento in Vendita a Nettuno (Roma)
  • Più di 5 locali
  • 100 mq
  • 2 bagni