MONTESACRO_TALENTI, AMPIA METRATURA CON GIARDINO VENDITA

Via Ludovico di Breme - Roma (Roma)
€ 749.000
  • Più di 5 locali
  • 189 mq
  • 2 bagni

Appartamento in Vendita a Roma

La CASE Immobiliare VENDE in esclusiva, un luminoso e spazioso appartamento con un ampio giardino privato e una piacevole area esterna attrezzata, situato nella tranquilla e prestigiosa zona di Talenti, nelle immediate vicinanze di Via Capuana e affacciato su Largo Rovani. L’immobile si trova precisamente in Via Ludovico di Breme, una via residenziale elegante e ben collegata, che si congiunge a Via Fucini, a pochi passi da tutti i principali servizi, trasporti pubblici e negozi.
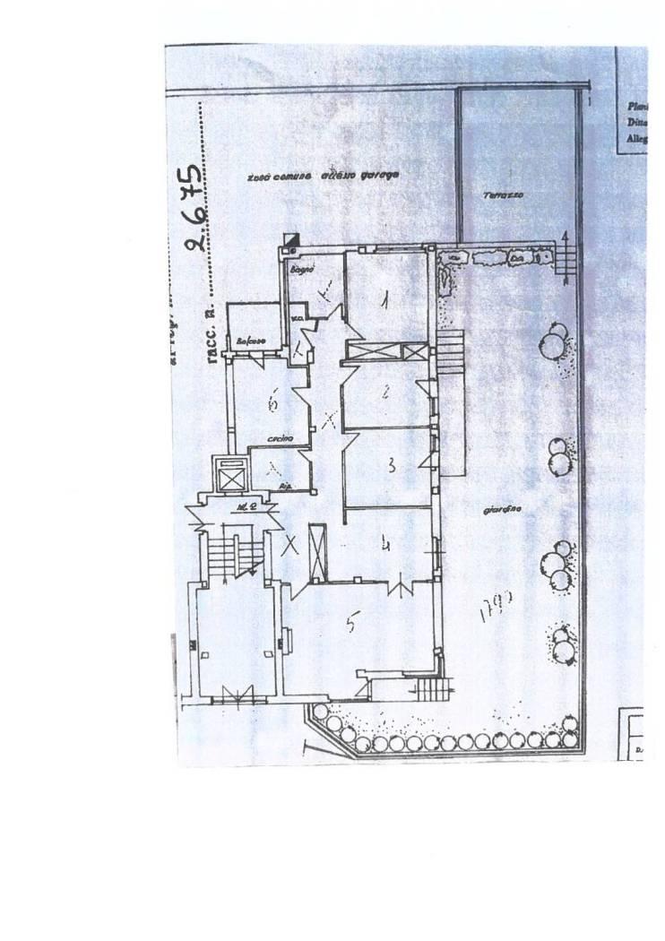
L’appartamento, di circa 187 mq, è situato al piano terra di una palazzina signorile degli anni ‘70, recentemente ristrutturata. L’edificio, che si sviluppa su cinque piani totali, è dotato di ascensore e si caratterizza per la sua posizione privilegiata e per gli ampi spazi esterni, ideali per chi desidera vivere a contatto con il verde senza rinunciare alla comodità della città.
Il vero punto di forza dell’immobile è l’eccezionale spazio esterno di circa 260 mq complessivi, suddivisi in 200 mq di giardino e 26 mq fra balconi e terrazzo attrezzato con barbecue. Un ambiente perfetto per organizzare pranzi e cene all’aperto, trascorrere piacevoli serate in compagnia di amici e familiari o semplicemente rilassarsi immersi nella tranquillità del proprio spazio verde privato.
La suddivisione degli spazi interni è pensata per offrire il massimo del comfort e della funzionalità.
All’ingresso, ci accoglie un ampio disimpegno con cappottiera e armadiature a muro, da qui entrando a destra troviamo la zonagiorno divisa fra zona relax con caminetto funzionante e una zona pranzo, il tutto con accesso diretto al giardino, creando una continuità perfetta tra interno ed esterno.
Sulla sinistra, sempre rispetto all’ingresso abbiamo una piacevole cucina con balcone privato ed uno studio : perfetto per chi lavora da casa, facilmente trasformabile in lavanderia o sala da pranzo, a seconda delle esigenze familiari.
Il corridoio ci conduce poi, alla zona notte, composta da quattro camere da letto, tutte ben distribuite e silenziose con affaccio sul giardino. La camera padronale è spaziosa e accogliente. I due bagni sono stati sapientemente progettati per ottimizzare gli spazi, entrambi con doccia e rifatti nel 2018.
La casa è ideale per una famiglia numerosa o per chi ama ricevere ospiti: la distribuzione interna è funzionale e versatile, si presta a diverse soluzioni di personalizzazione degli ambienti, mentre l’ampia metratura garantisce una fruizione ottimale degli spazi, coniugando convivialità e un elevato livello di privacy.
Porta blindata, riscaldamento centralizzato a metano, numerose armadiature a muro, ascensore.
La facciata del palazzo e i garage e l’impianto fognario sono stati rifatti nel 2023.
Completa la proprietà un comodo garage di 15 mq raggiungibile con ascensore al piano S1.
Un'opportunità unica per chi desidera vivere in una delle zone più ricercate di Roma, con il privilegio di un grande spazio esterno privato, perfetto per momenti di convivialità e relax all’aria aperta.
Le presenti informazioni e planimetrie sono meramente indicative e non costituiscono elementi contrattuali.
Per ulteriori informazioni contattare Case Immobiliare di Serena Di Ienno Via Tuscania 13-00191 Roma Tel. 06.89935159 info@case-immobiliare.com www.case-immobiliare.com
Hai talento nel settore immobiliare o sogni di averne? Invia il tuo CV a: info@case-immobiliare.com ed entra a far parte della nostra Famiglia!
Abbiamo posizioni aperte per Agenti Immobiliari e Consulenti Immobiliari anche senza esperienza per la nostra sede. Siamo una realtà dinamica, fortemente presente nei quartieri Fleming, Ponte Milvio, Prati e Parioli, ma operativa con successo su tutto il territorio nazionale. Invia adesso la tua candidatura a: info@case-immobiliare.com ed inizia il tuo percorso con Case Immobiliare fino a diventarne Socio
La nostra agenzia CASE immobiliare in via Tuscania 13, zona Flaminia/Fleming, è a vs disposizione per assistervi nella VENDITA-AFFITTO di immobili residenziali e commerciali. I nostri servizi: VALUTAZIONE GRATUITA - COMPRAVENDITE - LOCAZIONE - REGISTRAZIONE CONTRATTI E PRELIMINARI - APE (certificazione energetica) - CONSULENZA NOTARILE, LEGALE e TECNICA

LEGGI TUTTO

CONDIVIDI SUI SOCIAL

DATI PRINCIPALI

Riferimento
639678
Contratto
Vendita
Tipologia
Appartamento
Superficie
189 mq
Locali
Più di 5
Camere da letto
4
Cucina
Abitabile
Bagni
2
Piano
Piano terra
Totale piani
5
Box/Posto auto
Singolo

CARATTERISTICHE

Ascensore

COSTI

Prezzo
€ 749.000,00
Spese condominiali
€ 75,00 / mese

EFFICIENZA ENERGETICA

Stato
Abitabile
Anno costruzione
1970
Riscaldamento
Centralizzato
Classe energetica
G
IPE
175,00 kWh/m²a

A+

A

B

C

D

E

F

175,00 kWh/m²a | Classe energetica G

G

MAPPA

ANNUNCI SIMILI

VENDITA 15
€ 630.000
Appartamento in Vendita a Roma (Roma)
  • Più di 5 locali
  • 170 mq
  • 2 bagni
VENDITA 10
€ 780.000
Appartamento in Vendita a Roma (Roma)
  • Più di 5 locali
  • 230 mq
  • 3 bagni
VENDITA 20
€ 460.000
Appartamento in Vendita a Roma (Roma)
  • Più di 5 locali
  • 137 mq
  • 2 bagni
VENDITA 20
€ 505.000
Appartamento in Vendita a Roma (Roma)
  • Più di 5 locali
  • 156 mq
  • 2 bagni
VENDITA 11
€ 403.500
Appartamento in Vendita a Roma (Roma)
  • Più di 5 locali
  • 120 mq
  • 3 bagni
VENDITA 11
€ 746.250
Appartamento in Vendita a Roma (Roma)
  • Più di 5 locali
  • 160 mq
  • 2 bagni
VENDITA 20
€ 450.000
Appartamento in Vendita a Roma (Roma)
  • Più di 5 locali
  • 220 mq
  • 3 bagni