MONTE MARIO-BILOCALE COMPLETAMENTE RISTRUTTURATO VENDITA

Via Andrea Angiulli 3 - Roma (Roma)
€ 199.000
  • Bilocale
  • 75 mq
  • 1 bagno

Appartamento in Vendita a Roma

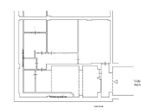
Rif: 00199 - In contesto residenziale tranquillo e ben collegato, proponiamo in vendita appartamento di 75 mq, sito al piano terra con entrata indipendente, ideale sia come abitazione principale sia come ottimo investimento.
L’immobile si sviluppa su un unico livello ed è così composto:
l’accesso avviene tramite un gradevole patio privato che conduce all’ampio salone con cucina a vista, ambiente luminoso e funzionale, dotato di comoda dispensa.
Un disimpegno separa la zona giorno dalla zona notte, composta da spaziosa camera matrimoniale, studio, bagno con doccia, locale lavanderia e ripostiglio.
L’appartamento è stato completamente ristrutturato nel 2020, con rilascio di tutte le certificazioni.
Classe energetica B, che consente l’acquisto tramite mutuo green, garantendo efficienza energetica e risparmio nei consumi.
La posizione è strategica: a pochissima distanza dalla stazione ferroviaria di Monte Mario e da tutti i principali servizi (negozi, scuole, trasporti).
Soluzione ideale per chi cerca comfort, indipendenza e un investimento sicuro.

LEGGI TUTTO

CONDIVIDI SUI SOCIAL

DATI PRINCIPALI

Riferimento
637433
Contratto
Vendita
Tipologia
Appartamento
Superficie
75 mq
Locali
2
Camere da letto
1
Cucina
A vista
Bagni
1
Piano
Piano terra
Totale piani
3

CARATTERISTICHE

Ascensore

COSTI

Prezzo
€ 199.000,00
Spese condominiali
€ 30,00 / mese

EFFICIENZA ENERGETICA

Stato
Ristrutturato
Anno costruzione
1960
Riscaldamento
Autonomo
Climatizzazione
Si
Classe energetica
B
IPE
1,00 kWh/m²a

A+

A

1,00 kWh/m²a | Classe energetica B

B

C

D

E

F

G

MAPPA

ANNUNCI SIMILI

VENDITA 20
€ 220.000
Appartamento in Vendita a Roma (Roma)
  • Bilocale
  • 65 mq
  • 1 bagno
VENDITA 20
€ 339.000
Appartamento in Vendita a Roma (Roma)
  • Quadrilocale
  • 142 mq
  • 2 bagni
VENDITA 20
€ 185.000
Appartamento in Vendita a Roma (Roma)
  • Bilocale
  • 62 mq
  • 1 bagno
VENDITA 20
€ 299.000
Appartamento in Vendita a Roma (Roma)
  • Quadrilocale
  • 121 mq
  • 1 bagno
VENDITA 20
€ 129.000
Appartamento in Vendita a Roma (Roma)
  • Bilocale
  • 65 mq
  • 1 bagno
VENDITA 20
€ 389.000
Appartamento in Vendita a Roma (Roma)
  • Quadrilocale
  • 122 mq
  • 2 bagni
VENDITA 20
€ 235.000
Appartamento in Vendita a Roma (Roma)
  • Quadrilocale
  • 103 mq
  • 2 bagni