MARINA DI ARDEA CENTRO REGINAh VENDITA

Via Avezzano 16 - Ardea (Roma)
€ 125.000
  • Bilocale
  • 75 mq
  • 1 bagno

Appartamento in Vendita a Ardea

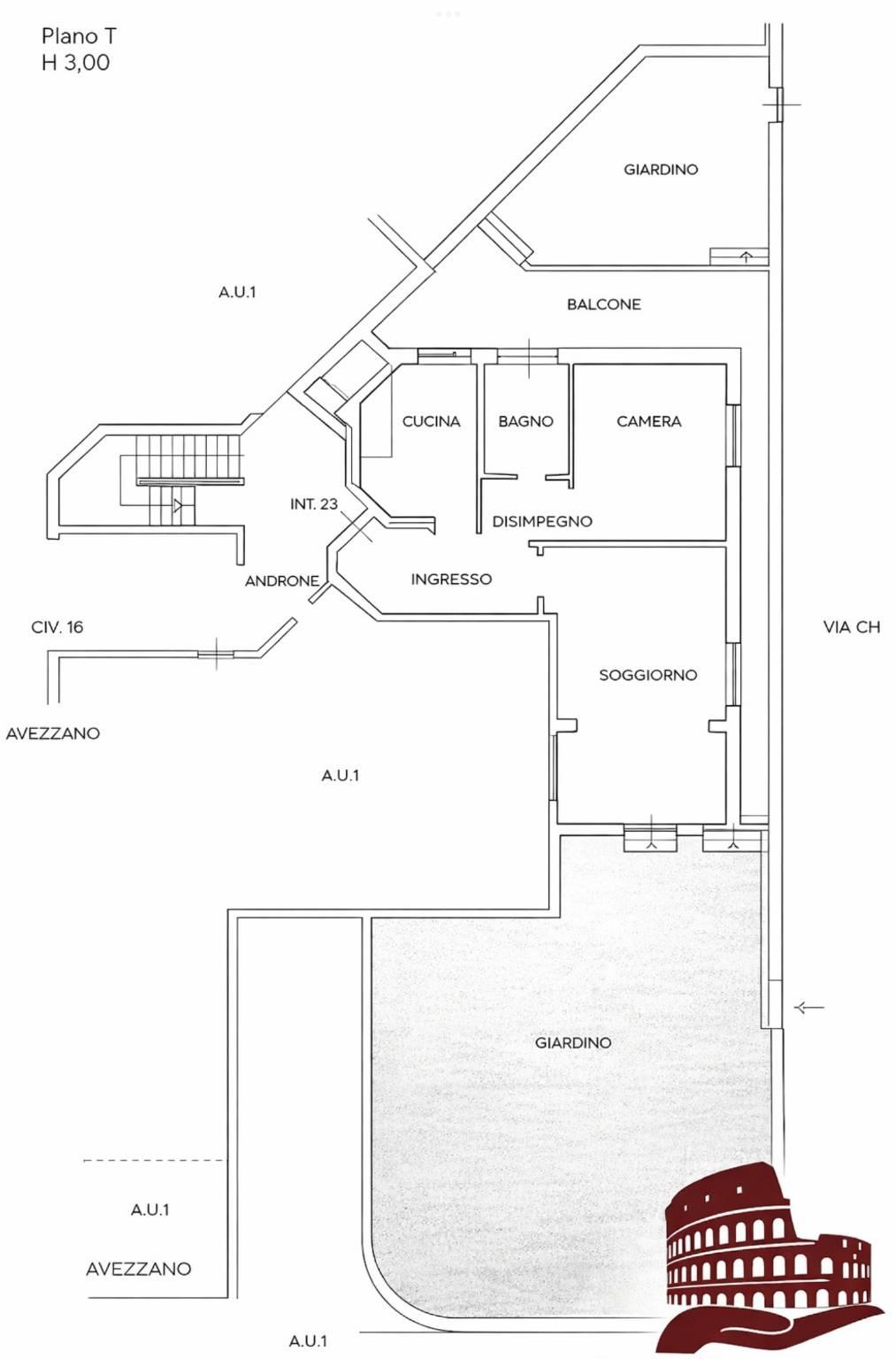
MARINA DI ARDEA – CENTRO REGINA. A soli 200 metri dal mare, nel cuore di Marina di Ardea, proponiamo in vendita un appartamento esclusivo situato in palazzina in cortina servita da ascensore, caratterizzato da tripla esposizione che garantisce luminosità costante e ambienti caldi e ariosi durante tutto l’anno. L’immobile si apre su un ampio soggiorno con grande vetrata che conduce direttamente al giardino privato, uno spazio riservato e vivibile ideale per momenti di relax o convivialità all’aperto. La cucina è abitabile e ben distribuita, perfetta per una gestione funzionale degli spazi. La zona notte offre una camera matrimoniale comoda e silenziosa, mentre il bagno con doccia si presenta in ottimo stato e ben organizzato. Completano la proprietà un patio perimetrale sfruttabile per pranzi e cene estive, due giardini con accessi indipendenti che valorizzano ulteriormente l’immobile e un box auto incluso nel prezzo, elemento di forte appeal nella zona. Libero subito, con una superficie commerciale di 77 mq e 75 mq calpestabili, rappresenta una soluzione ideale sia come residenza al mare sia come investimento ad alta redditività per locazioni stagionali, grazie alla posizione strategica e alle caratteristiche distintive.

LEGGI TUTTO

CONDIVIDI SUI SOCIAL

DATI PRINCIPALI

Riferimento
636834
Contratto
Vendita
Tipologia
Appartamento
Superficie
75 mq
Locali
2
Camere da letto
1
Cucina
Abitabile
Bagni
1
Piano
Piano terra
Totale piani
3
Box/Posto auto
Singolo

CARATTERISTICHE

Ascensore

COSTI

Prezzo
€ 125.000,00
Spese condominiali
€ 60,00 / mese

EFFICIENZA ENERGETICA

Stato
Abitabile
Anno costruzione
1970
Riscaldamento
Autonomo
Climatizzazione
Si
Classe energetica
G
IPE
175,00 kWh/m²a

A+

A

B

C

D

E

F

175,00 kWh/m²a | Classe energetica G

G

MAPPA