MARINA DI ARDEA - 200 MT DAL MARE VENDITA

Lungomare degli Ardeatini 46 - Ardea (Roma)
€ 149.000
  • Più di 5 locali
  • 106 mq
  • 2 bagni

Appartamento in Vendita a Ardea

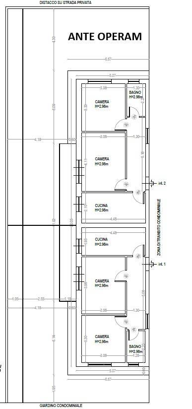
Marina di Ardea lungomare degli Ardeatini a 200 metri dal mare e spiagge attrezzate con fermata bus a 50 metri che collega direttamente con Roma Laurentina, proponiamo appartamento di comode dimensioni con doppi ingressi frutto dell’accorpamento di due unità immobiliari.
Attualmente composto da soggiorno tre camere cameretta cucina abitabile doppi servizi con ampio giardino perimetrale.
Completa la proprietà due posti auto assegnati e la possibilità di parcheggiare anche all’interno del complesso immobiliare in area dedicata.
Volendo si può ripristinare la situazione originaria di due unità abitative composte di due camere cucina e bagno con rispettivi giardini, oltre posto auto.

La Topcasa Immobiliare srl ha la propria sede a Roma in via Raffaele de Cesare 87/91, è presente sull'intero territorio nazionale tramite partners associati F. I. A. I. P. "federazione italiana agenti immobiliari professionali"; si avvale della collaborazione di personale altamente qualificato che dal 1983 opera nel settore immobiliare delle compravendite. VALUTAZIONI: valutazione gratuita in 48 ore se finalizzata alla vendita o alla locazione dell'immobile. STIME: perizia estimativa scritta, legalmente valida, e visura ipocatastale. SERVIZI: assistenza tecnico legale. La professionalità degli agenti immobiliari della Topcasa Immobiliare, tutti regolarmente iscritti, permette di fronteggiare sempre ogni situazione per fornire ai clienti una mirata assistenza in tutte le fasi dell'alienazione o locazione dell'immobile. LOCAZIONI: locazioni rispondenti alle leggi 431/98 e 392/78 ed alle recenti normative, per non incorrere in pesanti sanzioni o trovarsi in problematici conflitti con il conduttore. La Topcasa Immobiliare, costantemente attenta alle esigenze della clientela, si avvale della collaborazione di professionisti esterni avvocati, notai, architetti, commercialisti, geometri, visuristi. Promozione immobili sulle più importanti testate del settore e portali internet di rilevanza nazionale. Database clienti costantemente aggiornato. Clienti istituzionali interessati nell'acquisizione di interi stabili, in seguito venduti frazionatamente dopo eventuali interventi di ristrutturazione. Sottoscritto, tramite la F. I. A. I. P. una convenzione operativa con primari istituti bancari."

LEGGI TUTTO

CONDIVIDI SUI SOCIAL

DATI PRINCIPALI

Riferimento
638511
Contratto
Vendita
Tipologia
Appartamento
Superficie
106 mq
Locali
5
Camere da letto
4
Cucina
Abitabile
Bagni
2
Piano
Piano terra
Totale piani
2
Box/Posto auto
Doppio

CARATTERISTICHE

Ascensore

COSTI

Prezzo
€ 149.000,00

EFFICIENZA ENERGETICA

Stato
Abitabile
Anno costruzione
1980
Riscaldamento
Autonomo
Classe energetica
G
IPE
351,00 kWh/m²a

A+

A

B

C

D

E

F

351,00 kWh/m²a | Classe energetica G

G

MAPPA

ANNUNCI SIMILI

VENDITA 12
€ 81.000
Appartamento in Vendita a Ardea (Roma)
  • Più di 5 locali
  • 98 mq
  • 1 bagno
VENDITA 14
Trattativa Riservata
Appartamento in Vendita a Ardea (Roma)
  • Più di 5 locali
  • 454 mq
  • 2 bagni
VENDITA 11
€ 51.800
Appartamento in Vendita a Ardea (Roma)
  • Più di 5 locali
  • 47 mq
  • 1 bagno
VENDITA 11
€ 59.062
Appartamento in Vendita a Ardea (Roma)
  • Più di 5 locali
  • 120 mq
  • 2 bagni
VENDITA 16
€ 237.000
Appartamento in Vendita a Ardea (Roma)
  • Più di 5 locali
  • 166 mq
  • 2 bagni