Luminoso appartamento ristrutturato - via Leone IV - Roma VENDITA

Via Leone IV - Roma, Zona Prati
€ 770.000
  • Quadrilocale
  • 93 mq
  • 2 bagni

Appartamento in Vendita a Roma

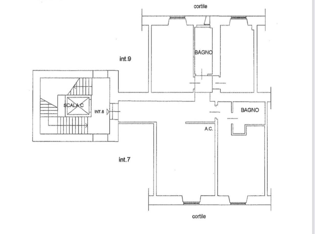
A pochi passi da San Pietro e dal Vaticano, precisamente in via Leone IV, abbiamo il piacere di proporre in vendita, all’interno di un elegante palazzo storico dotato del servizio di ascensore, un appartamento modernamente ristrutturato, sito al 3 piano. L’immobile è attualmente composto da un accogliente ingresso che conduce ad un luminoso soggiorno con angolo cottura dotato di elettrodomestici, 2 camere da letto matrimoniali di cui una con bagno en suite, una terza camera da letto singola ed un ulteriore bagno con doccia. L’ubicazione privilegiata nel centro di Roma, vicina a tutti i principali servizi e mezzi pubblici, rende quest’immobile una soluzione ideale sia per uso residenziale che come investimento.

LEGGI TUTTO

CONDIVIDI SUI SOCIAL

DATI PRINCIPALI

Riferimento
626414
Contratto
Vendita
Tipologia
Appartamento
Superficie
93 mq
Locali
4
Camere da letto
3
Cucina
Angolo cottura
Bagni
2
Piano
3 °
Totale piani
4

CARATTERISTICHE

Ascensore

COSTI

Prezzo
€ 770.000,00

EFFICIENZA ENERGETICA

Stato
Ristrutturato
Anno costruzione
1900
Riscaldamento
Autonomo
Climatizzazione
Si
Classe energetica
G
IPE
175,00 kWh/m²a

A+

A

B

C

D

E

F

175,00 kWh/m²a | Classe energetica G

G

MAPPA

ANNUNCI SIMILI

VENDITA
€ 749.000
Appartamento in Vendita a Roma (Roma)
  • Quadrilocale
  • 120 mq
  • 4 bagni
VENDITA 20
€ 745.000
Appartamento in Vendita a Roma, Zona Prati
  • Quadrilocale
  • 118 mq
  • 2 bagni
VENDITA 20
€ 849.000
Appartamento in Vendita a Roma (Roma)
  • Quadrilocale
  • 120 mq
  • 4 bagni
VENDITA 20
€ 570.000
Appartamento in Vendita a Roma (Roma)
  • Quadrilocale
  • 110 mq
  • 1 bagno
VENDITA 7
€ 630.000
Appartamento in Vendita a Roma, Zona Prati
  • Quadrilocale
  • 150 mq
  • 1 bagno
VENDITA 6
€ 623.500
Appartamento in Vendita a Roma (Roma)
  • Quadrilocale
  • 145 mq
VENDITA
€ 1.200.000
Appartamento in Vendita a Roma, Zona Prati
  • Più di 5 locali
  • 200 mq
  • 2 bagni
VENDITA 20
€ 850.000
Appartamento in Vendita a Roma, Zona Prati
  • Più di 5 locali
  • 240 mq
  • 2 bagni
VENDITA 20
€ 1.100.000
Appartamento in Vendita a Roma, Zona Prati
  • Più di 5 locali
  • 240 mq
  • 2 bagni