LUMINOSISSIMO 2° PIANO CON BALCONI POSTO AUTO CANTINA VENDITA

Via Federico Seismit Doda - Roma, Zona Fonte Meravigliosa
€ 529.000
  • Trilocale
  • 143 mq
  • 2 bagni

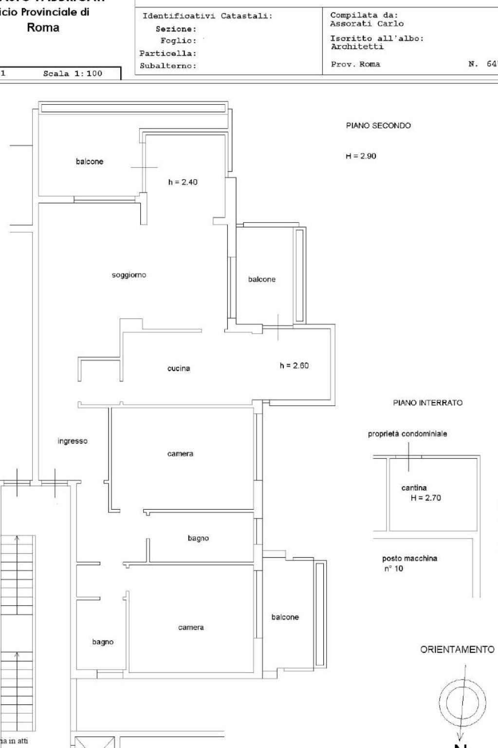
Appartamento in Vendita a Roma

FONTE MERAVIGLIOSA, Via Federico Seismit Doda.

In una delle zone più apprezzate e tranquille di Fonte Meravigliosa / Giuliano Dalmata, l'agenzia SOLO CASA propone in vendita un appartamento luminosissimo situato al secondo piano di una palazzina con ascensore e poche unità abitative, perfetta per chi desidera privacy e qualità della vita.

L’ingresso accompagna in un magnifico soggiorno doppio, grande e pieno di luce, con uscita sul balcone, ideale per relax e momenti in famiglia.
A seguire troviamo la cucina separata, comoda e funzionale, con balcone.

La zona notte è ben strutturata e studiata per garantire spazio e comfort:
Camera matrimoniale padronale con bagno in camera, seconda camera con balcone privato e secondo bagno.

Troviamo, inoltre, armadiature a muro su misura in tutta casa.

Completano la proprietà un posto auto coperto ed una cantina.

Una casa completa, luminosa, elegante e con spazi perfetti per una famiglia o per chi vuole un immobile di livello in una delle vie migliori della zona.

Classe Energetica: G EPI EP gl 175,00 kWh/m2 anno
Rif.T328B € 529.000

Siamo a disposizione per fornirVi maggiori informazioni e per fissare un sopralluogo sull'immobile in oggetto, se è possibile con un minimo di preavviso, al nostro numero telefonico 06.96.03.56.48 - 334.6386780 oppure al nostro indirizzo email monteverde@solocasaimmobiliare.it. Siamo reperibili dal lunedì al venerdì dalle ore 9.00 alle ore 13.00 e dalle 15.30 alle 19.30, mentre il sabato dalle ore 9.00 alle ore 13.00.
Per ulteriori foto e dettagli visitate il nostro sito internet www.solocasaimmobiliare.it.

LEGGI TUTTO

CONDIVIDI SUI SOCIAL

DATI PRINCIPALI

Riferimento
631981
Contratto
Vendita
Tipologia
Appartamento
Superficie
143 mq
Locali
3
Camere da letto
2
Cucina
Abitabile
Bagni
2
Piano
2 °
Totale piani
6
Box/Posto auto
Singolo

CARATTERISTICHE

Ascensore

COSTI

Prezzo
€ 529.000,00
Spese condominiali
€ 110,00 / mese

EFFICIENZA ENERGETICA

Stato
Ristrutturato
Anno costruzione
1980
Riscaldamento
Centralizzato
Climatizzazione
Si
Classe energetica
G
IPE
175,00 kWh/m²a

A+

A

B

C

D

E

F

175,00 kWh/m²a | Classe energetica G

G

MAPPA

ANNUNCI SIMILI

VENDITA 10
€ 470.000
Appartamento in Vendita a Roma, Zona Fonte Meravigliosa
  • Quadrilocale
  • 146 mq
  • 2 bagni
VENDITA 20
€ 400.000
Appartamento in Vendita a Roma, Zona Fonte Meravigliosa
  • Quadrilocale
  • 148 mq
  • 2 bagni
VENDITA 20
€ 390.000
Appartamento in Vendita a Roma, Zona Fonte Meravigliosa
  • Quadrilocale
  • 162 mq
  • 2 bagni
VENDITA 20
€ 479.000
Appartamento in Vendita a Roma, Zona Fonte Meravigliosa
  • Quadrilocale
  • 159 mq
  • 2 bagni
VENDITA 19
€ 439.000
Appartamento in Vendita a Roma, Zona Fonte Meravigliosa
  • Quadrilocale
  • 145 mq
  • 2 bagni
VENDITA 20
€ 470.000
Appartamento in Vendita a Roma, Zona Fonte Meravigliosa
  • Trilocale
  • 129 mq
  • 2 bagni