LA RUSTICA TOR SAPIENZA VIA VALERICO LACCETTI VENDITA

Via Valerico Laccetti 24 - Roma (Roma)
€ 315.000
  • Quadrilocale
  • 110 mq
  • 2 bagni

Appartamento in Vendita a Roma

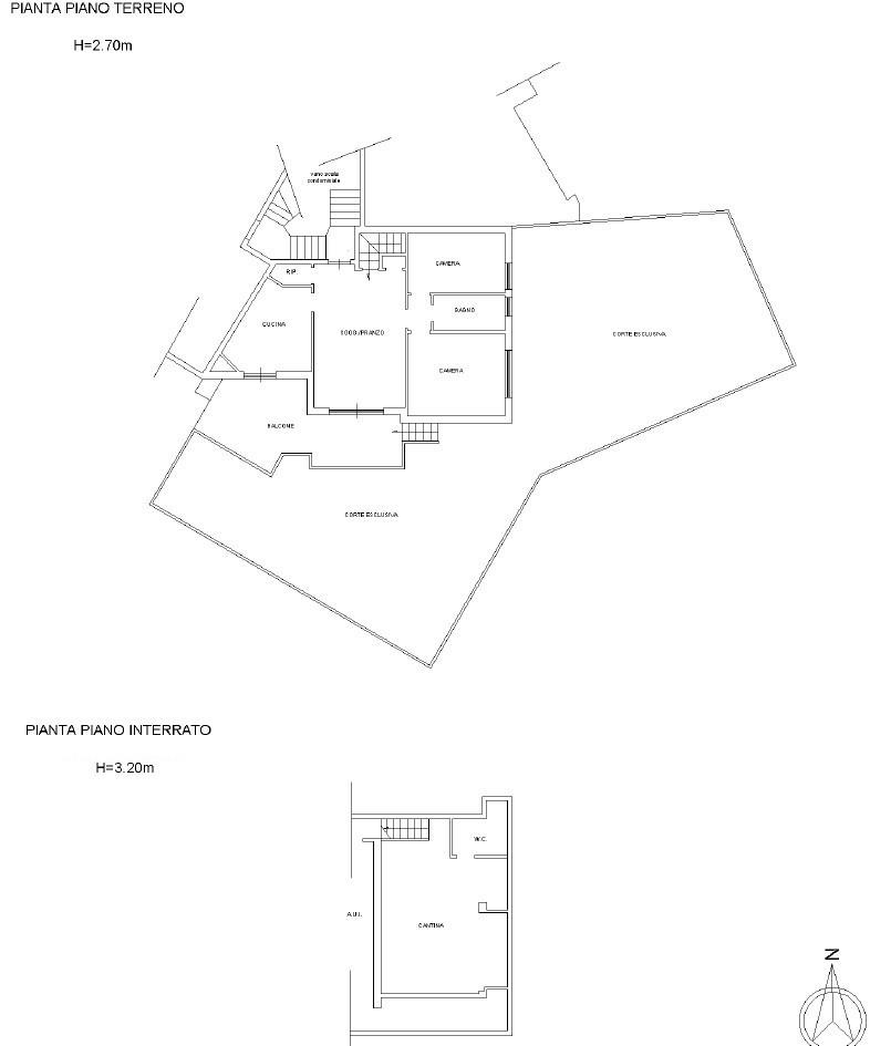
LA RUSTICA TOR SAPIENZA VIA VALERICO LACCETTI. IN ELEGANTE COMPLESSO CONDOMINIALE CHIUSO E CURATO PROPONIAMO APPARTAMENTO BILIVELLI CON GRANDE GIARDINO DI 150MQ COMPOSTO DA SALONE DUE CAMERE CUCINA ABITABILE BAGNO RIPOSTIGLIO. DALLA CUCINA E DAL SALONE SI ACCEDE AD UNA TERRAZZA ABITABILE CHE CONSENTE L’ACCESSO AL GRANDE GIARDINO ANGOLARE CURATO ED ATTREZZATO CON GIOCHI E AMPIA ZONA RELAX. TRAMITE UNA SCALA INTERNA ALLA CASA SI ACCEDE ALLA GRANDE SALA HOBBY ATTREZZATA CON CUCINA E BAGNO. COMPLETA ALA PROPRIETA’ UN POSTO AUTO ESTERNO NELL’AREA CONDOMNIALE. EURO 315.000,00 CLASSE G IPE 175 - NB: TUTTE LE INFORMAZIONI IVI CONTENUTE COMPRESE LE METRATURE SONO DA INTENDERSI PURAMENTE A TITOLO INDICATIVO E NON COSTITUISCONO ELEMENTO CONTRATTUALE.
La Topcasa Immobiliare srl ha la propria sede a Roma in via Raffaele de Cesare 87/91, è presente sull'intero territorio nazionale tramite partners associati f. i. a. i. p. "federazione italiana agenti immobiliari professionali"; si avvale della collaborazione di personale altamente qualificato che dal 1983 opera nel settore immobiliare delle compravendite. VALUTAZIONI: valutazione gratuita in 48 ore se finalizzata alla vendita o alla locazione dell'immobile. STIME: perizia estimativa scritta, legalmente valida, e visura ipocatastale. SERVIZI: assistenza tecnico legale. La professionalità degli agenti immobiliari della Topcasa Immobiliare, tutti regolarmente iscritti, permette di fronteggiare sempre ogni situazione per fornire ai clienti una mirata assistenza in tutte le fasi dell'alienazione o locazione dell'immobile. LOCAZIONI: locazioni rispondenti alle leggi 431/98 e 392/78 ed alle recenti normative, per non incorrere in pesanti sanzioni o trovarsi in problematici conflitti con il conduttore. La Topcasa Immobiliare, costantemente attenta alle esigenze della clientela, si avvale della collaborazione di professionisti esterni avvocati, notai, architetti, commercialisti, geometri, visuristi. Promozione immobili sulle più importanti testate del settore e portali internet di rilevanza nazionale. Database clienti costantemente aggiornato. Clienti istituzionali interessati nell'acquisizione di interi stabili, in seguito venduti frazionatamente dopo eventuali interventi di ristrutturazione. Sottoscritto, tramite la f. i. a. i. p. una convenzione operativa con primari istituti bancari."

LEGGI TUTTO

CONDIVIDI SUI SOCIAL

DATI PRINCIPALI

Riferimento
638513
Contratto
Vendita
Tipologia
Appartamento
Superficie
110 mq
Locali
4
Camere da letto
2
Cucina
Abitabile
Bagni
2
Piano
Piano terra
Totale piani
2
Box/Posto auto
Singolo

CARATTERISTICHE

Ascensore

COSTI

Prezzo
€ 315.000,00
Spese condominiali
€ 110,00 / mese

EFFICIENZA ENERGETICA

Stato
Ristrutturato
Anno costruzione
1995
Riscaldamento
Autonomo
Climatizzazione
Si
Classe energetica
G
IPE
351,00 kWh/m²a

A+

A

B

C

D

E

F

351,00 kWh/m²a | Classe energetica G

G

MAPPA

ANNUNCI SIMILI

VENDITA 20
€ 257.000
Appartamento in Vendita a Roma (Roma)
  • Quadrilocale
  • 130 mq
  • 2 bagni
VENDITA 12
€ 180.000
Appartamento in Vendita a Roma (Roma)
  • Quadrilocale
  • 109 mq
  • 1 bagno
VENDITA 15
€ 255.000
Appartamento in Vendita a Roma (Roma)
  • Quadrilocale
  • 130 mq
  • 2 bagni
VENDITA 20
€ 240.000
Appartamento in Vendita a Roma (Roma)
  • Quadrilocale
  • 85 mq
  • 2 bagni
VENDITA 20
€ 165.000
Appartamento in Vendita a Roma (Roma)
  • Più di 5 locali
  • 120 mq
  • 1 bagno
VENDITA 20
€ 239.000
Appartamento in Vendita a Roma (Roma)
  • Quadrilocale
  • 152 mq
  • 2 bagni
VENDITA 20
€ 239.000
Appartamento in Vendita a Roma (Roma)
  • Quadrilocale
  • 152 mq
  • 2 bagni