INFERNETTO – VIA BRENTONICO VENDITA

Via Brentonico - Roma, Zona Infernetto
€ 185.000
  • Trilocale
  • 60 mq
  • 2 bagni

Appartamento in Vendita a Roma

INFERNETTO – VIA BRENTONICO
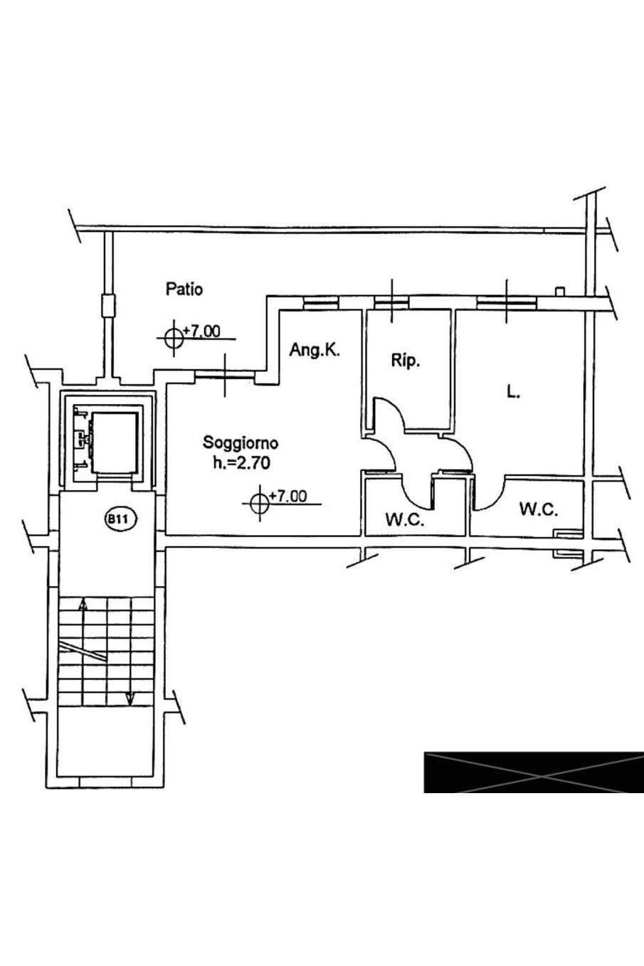
Proponiamo in vendita un trilocale di recente costruzione di circa 60 mq, sito al secondo piano con ascensore.

L’immobile si sviluppa su un unico livello ed è composto da soggiorno con angolo cottura con penisola e accesso al terrazzo, camera da letto con bagno interno con box doccia, studio/cameretta e secondo bagno di servizio.

Le spese condominiali ammontano a circa € 1.000 annui e includono il consumo dell’acqua, salvo conguaglio.

ACCESSORI E RIVESTIMENTI
Persiane e infissi in PVC con doppio vetro, zanzariere, videocitofono, predisposizione pannelli solari, condizionatori e termosifone elettrico nel bagno. Posto auto di proprietà.

Motivi per cui la pena acquistare l'immobile:
- TERRAZZO VIVIBILE
- ESPOSIZIONE EST
- POSTO AUTO DI PROPRIETÀ
- RECENTE COSTRUZIONE
- OTTIMO INVESTIMENTO

———————————————————————————————————————————————
Le indicazioni riportate e le immagini devono considerarsi indicative e non hanno alcun vincolo contrattuale. Alcune metrature sono puramente indicative. Alcuni indirizzi di Google Maps potrebbero non corrispondere esattamente all’ubicazione dell’immobile ma indicare la zona, al fine di garantire la privacy dei proprietari. L’Agenzia Immobiliare Nuova Axa Palocco S.r.l., con sede in Via Eschilo 186C, declina ogni responsabilità per eventuali ed involontarie incongruenze tra le effettive caratteristiche dell’immobile e la descrizione informativa.

LEGGI TUTTO

CONDIVIDI SUI SOCIAL

DATI PRINCIPALI

Riferimento
629243
Contratto
Vendita
Tipologia
Appartamento
Superficie
60 mq
Locali
3
Camere da letto
1
Cucina
Angolo cottura
Bagni
2
Piano
2 °
Totale piani
3
Box/Posto auto
Singolo

CARATTERISTICHE

Ascensore

COSTI

Prezzo
€ 185.000,00
Spese condominiali
€ 83,00 / mese

EFFICIENZA ENERGETICA

Stato
Ristrutturato
Anno costruzione
2012
Riscaldamento
Autonomo
Climatizzazione
Si
Classe energetica
D
IPE
175,00 kWh/m²a

A+

A

B

C

175,00 kWh/m²a | Classe energetica D

D

E

F

G

MAPPA

ANNUNCI SIMILI

VENDITA 20
€ 189.000
Appartamento in Vendita a Roma, Zona Infernetto
  • Trilocale
  • 80 mq
  • 2 bagni
VENDITA 20
€ 310.000
Appartamento in Vendita a Roma, Zona Infernetto
  • Trilocale
  • 133 mq
  • 2 bagni
VENDITA 20
€ 199.000
Appartamento in Vendita a Roma, Zona Infernetto
  • Trilocale
  • 80 mq
VENDITA 20
€ 520.000
Appartamento in Vendita a Roma, Zona Infernetto
  • Più di 5 locali
  • 397 mq
  • 3 bagni