Immobile Colle del Sole Via del Monte delle Piche VENDITA

Via del Monte delle Piche - Roma (Roma)
€ 670.000
  • Più di 5 locali
  • 244 mq
  • 3 bagni

Appartamento in Vendita a Roma

Via del Monte delle Piche Elegante immobile su tre livelli con giardino, terrazzi e box doppio

In una delle zone residenziali più riservate e verdi, all'interno di una palazzina signorile, proponiamo in vendita un prestigioso appartamento su tre livelli, caratterizzato da ampie metrature, spazi esterni vivibili e una tripla esposizione panoramica.

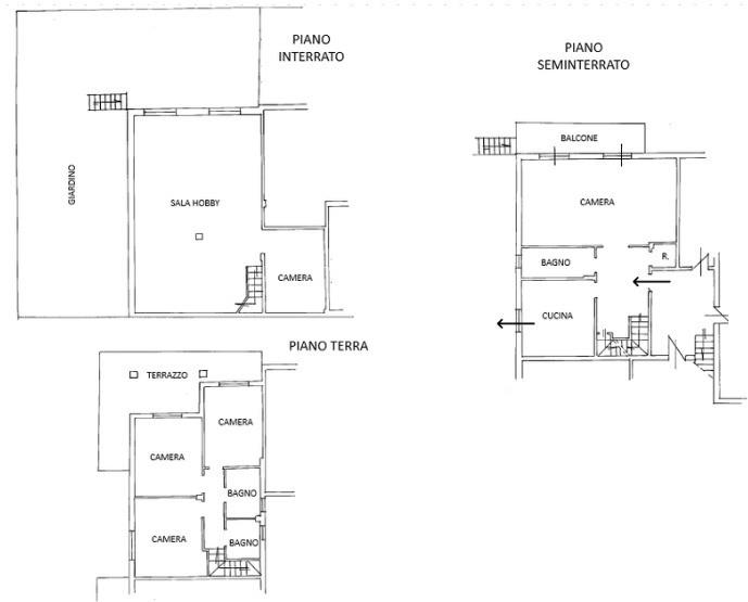
L'immobile si sviluppa in modo armonioso e funzionale:

Piano S1:
Accogliente sala hobby, ideale come area relax, studio o spazio polifunzionale, con camera annessa, perfetta anche per ospiti o zona indipendente.

Piano Terra:
L'ingresso introduce a un salone doppio di rappresentanza, luminoso e ben distribuito, affiancato da una cucina abitabile, ripostiglio e bagno.
Da questo livello si accede direttamente al giardino perimetrale, uno spazio riservato e godibile, ideale per momenti di relax all'aperto e convivialità.

Piano Primo:
La zona notte ospita tre camere matrimoniali, due bagni e un terrazzo perimetrale, che abbraccia l'intero piano e valorizza ulteriormente la vivibilità degli ambienti.

La proprietà è completata da un box auto doppio.

Dal punto di vista delle finiture e delle dotazioni, l'immobile si presenta con:

Riscaldamento autonomo con caldaia per la produzione di acqua calda sanitaria
Pavimentazioni in parquet, marmo e monocottura
Infissi in legno Douglas
Camino
Allarme perimetrale
Cancelletto di sicurezza

L'appartamento gode di una splendida esposizione Sud Est Ovest, che garantisce luminosità costante e affacci aperti e panoramici durante tutto l'arco della giornata.

Una soluzione abitativa di grande fascino, ideale per chi desidera comfort, eleganza e spazi esterni senza rinunciare alla tranquillità di un contesto residenziale di qualità.

LEGGI TUTTO

CONDIVIDI SUI SOCIAL

DATI PRINCIPALI

Riferimento
638993
Contratto
Vendita
Tipologia
Appartamento
Superficie
244 mq
Locali
5
Camere da letto
4
Cucina
Abitabile
Bagni
3
Piano
1 °
Totale piani
3
Box/Posto auto
Doppio

CARATTERISTICHE

Ascensore

COSTI

Prezzo
€ 670.000,00

EFFICIENZA ENERGETICA

Stato
Da ristrutturare
Anno costruzione
1960
Riscaldamento
Autonomo
Classe energetica
G
IPE
180,00 kWh/m²a

A+

A

B

C

D

E

F

180,00 kWh/m²a | Classe energetica G

G

MAPPA

ANNUNCI SIMILI

VENDITA 20
€ 838.000
Appartamento in Vendita a Roma (Roma)
  • Più di 5 locali
  • 258 mq
  • 3 bagni
VENDITA 20
€ 838.000
Appartamento in Vendita a Roma (Roma)
  • Più di 5 locali
  • 258 mq
  • 3 bagni
VENDITA 20
€ 528.000
Appartamento in Vendita a Roma (Roma)
  • Più di 5 locali
  • 164 mq
  • 2 bagni
VENDITA 11
€ 62.899
Appartamento in Vendita a Roma (Roma)
  • Più di 5 locali
  • 109 mq
  • 3 bagni
VENDITA 20
€ 520.000
Appartamento in Vendita a Roma (Roma)
  • Più di 5 locali
  • 169 mq
  • 2 bagni
VENDITA 20
€ 285.000
Appartamento in Vendita a Roma (Roma)
  • Più di 5 locali
  • 138 mq
  • 2 bagni
VENDITA 16
€ 440.000
Appartamento in Vendita a Roma (Roma)
  • Più di 5 locali
  • 141 mq
  • 2 bagni
VENDITA 20
€ 289.000
Appartamento in Vendita a Roma, Zona Torrino
  • Più di 5 locali
  • 130 mq
  • 2 bagni