Genzano di Roma appartamento ampia metratura VENDITA

Via Toscana - Genzano di Roma (Roma)
€ 290.000
  • Più di 5 locali
  • 135 mq
  • 2 bagni

Appartamento in Vendita a Genzano di Roma

Genzano di Roma a 800 mt. dal Palazzetto dello Sport e 1 Km. dal centro sportivo Matrix, negozi commerciali nelle immediate vicinanze contesto tranquillo con facilità di parcheggio. L'Immobiliare Futura propone la vendita di un luminosissimo appartamento posto al piano secondo e ultimo di una palazzina di complessivi 2 piani, senza ascensore. La palazzina, risalente agli anni 90, in buono stato d'uso.
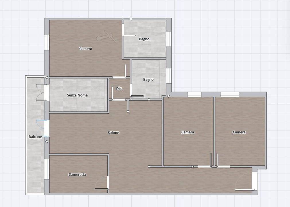
L'appartamento è stato parzialmente ristrutturato ed è composto da un ampio ingresso con finestra, salone con camino e portafinestra che accede al balcone completamente coperto, grande cucina, 4 camere da letto di cui 3 matrimoniali, una con balcone coperto che affaccia sul verde, due grandi bagni, ripostiglio. Gli infissi in legno doppi vetri dispongono di Grate di sicurezza, zanzariere e il portoncino è corazzato.
Il prezzo richiesto è di €. 290.000,00. Per ulteriori informazioni e per fissare un appuntamento potete contattarci direttamente al telefono fisso 0688791230 oppure al cell.3381926435 o potete scrivere tramite mail a immobiliarefutura19@gmail.com

LEGGI TUTTO

CONDIVIDI SUI SOCIAL

DATI PRINCIPALI

Riferimento
628396
Contratto
Vendita
Tipologia
Appartamento
Superficie
135 mq
Locali
5
Camere da letto
4
Cucina
Abitabile
Bagni
2
Piano
2 °
Totale piani
2

CARATTERISTICHE

Ascensore

COSTI

Prezzo
€ 290.000,00

EFFICIENZA ENERGETICA

Stato
Abitabile
Anno costruzione
1990
Riscaldamento
Autonomo
Climatizzazione
Si
Classe energetica
G
IPE
175,00 kWh/m²a

A+

A

B

C

D

E

F

175,00 kWh/m²a | Classe energetica G

G

MAPPA

ANNUNCI SIMILI

VENDITA 15
€ 279.000
Appartamento in Vendita a Genzano di Roma (Roma)
  • Più di 5 locali
  • 168 mq
  • 2 bagni
VENDITA 20
€ 135.000
Appartamento in Vendita a Genzano di Roma (Roma)
  • Più di 5 locali
  • 140 mq
  • 2 bagni
VENDITA 20
€ 149.000
Appartamento in Vendita a Lanuvio (Roma)
  • Più di 5 locali
  • 123 mq
  • 1 bagno