FLEMING VIA FLAMINIA AD. VIA LORIA SIGNORILE PIANO ALTO VENDITA

Via Flaminia - Roma, Zona Fleming
€ 620.000
  • Più di 5 locali
  • 156 mq
  • 2 bagni

Appartamento in Vendita a Roma

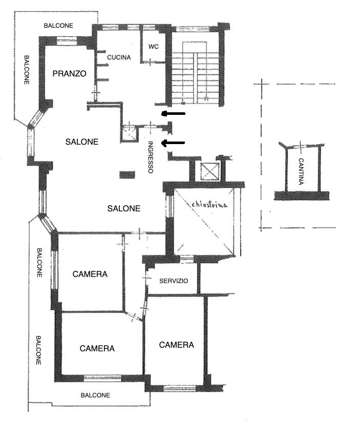
Fleming Real Estate propone in esclusiva un signorile e prestigioso appartamento quadrilocale di 156 mq situato al terzo piano di una signorile palazzina in Via Flaminia altezza Via F. S. Nitti , nel cuore dell'elegante quartiere Fleming a Roma nord. L'immobile si distingue per la sua ampia metratura, l’ottima distribuzione degli spazi interni e la tripla esposizione sud-ovest.
E' composto da un doppio ingresso, salone doppio , camera da pranzo separabile dal salone con una grande porta scorrevole, cucina abitabile accanto alla sala da pranzo, tre camere, doppi servizi finestrati.
completano la proprietà due balconi che coprono sia la rappresentanza che la zona notte garantendo luce naturale durante tutto il giorno; inoltre vi è una cantina privata e possibilità posto auto coperto nello stabile.

Il quartiere Fleming rappresenta uno dei contesti più ricercati della Capitale grazie alla tranquillità residenziale abbinata alla vicinanza di principali servizi, scuole anche internazionali, supermercati, boutique esclusive nonché collegamenti rapidi verso il centro storico sia verso le arterie stradali strategiche come Corso Francia che portano direttamente al raccordo.

Questa soluzione unica si presta perfettamente a chi desidera vivere in un ambiente elegante senza rinunciare alle comodità della vita urbana romana.

Contattaci subito presso i nostri uffici per ricevere maggiori informazioni o prenotare una visita: lo staff Fleming Real Estate sarà lieto di accompagnarti nella scoperta della tua prossima casa.
Per appuntamenti ed informazioni potete rivolgervi alla Fleming Real Estate 06.36.30.31.16. Le informazioni nella scheda sono a titolo informativo e non rappresentano condizioni contrattuali. I nostri uffici si trovano in Via F. Saverio Nitti 60-62 – 00191 Roma, e sono aperti il lunedì dalle 10:00 alle 13:00 e dalle 15.30 alle 19:30 dal giovedì al venerdì dalle 9:30 alle 13:00 e dalle 15.30 alle 19:30 - il sabato dalle 10:00 alle 13:00 di Fronte alla scuola Nitti con due vetrine su strada. Ci occupiamo da anni della vendita, permuta e della locazione degli immobili (appartamenti, uffici, negozi, magazzini…). Forti della nostra esperienza presenti nel campo immobiliare da 30 anni garantiamo serietà affidabilità e professionalità, siamo a disposizione per una valutazione reale, gratuita e senza impegno del Vostro immobile, Non esitate a contattarci.
IMPORTANTE: PER POTER DARE UN MIGLIORE SERVIZIO GLI UTENTI SONO PREGATI DI FISSARE GLI APPUNTAMENTI TELEFONICAMENTE E NON VIA MAIL GRAZIE.
Per info: Fleming Real Estate - Via F. S. Nitti n. 60/62 - Tel. 06.36.30.31.16 - Fax. 06.36.29.92.80 - www.flemingrealestate.eu - VALUTAZIONI GRATUITE info@flemingrealestate.eu Siamo su Facebook - LinkedIn - X - Instagram - YouTube - Pinterest - VK

LEGGI TUTTO

CONDIVIDI SUI SOCIAL

DATI PRINCIPALI

Riferimento
635271
Contratto
Vendita
Tipologia
Appartamento
Superficie
156 mq
Locali
5
Camere da letto
3
Cucina
Abitabile
Bagni
2
Piano
3 °
Totale piani
5
Box/Posto auto
Singolo

CARATTERISTICHE

Ascensore

COSTI

Prezzo
€ 620.000,00
Spese condominiali
€ 150,00 / mese

EFFICIENZA ENERGETICA

Stato
Abitabile
Anno costruzione
1960
Riscaldamento
Centralizzato
Classe energetica
E
IPE
351,00 kWh/m²a

A+

A

B

C

D

351,00 kWh/m²a | Classe energetica E

E

F

G

MAPPA

ANNUNCI SIMILI

VENDITA 20
€ 820.000
Appartamento in Vendita a Roma, Zona Fleming
  • Più di 5 locali
  • 190 mq
  • 3 bagni
VENDITA 9
€ 560.000
Appartamento in Vendita a Roma, Zona Fleming
  • Più di 5 locali
  • 135 mq
  • 2 bagni
VENDITA 20
€ 499.000
Appartamento in Vendita a Roma, Zona Fleming
  • Più di 5 locali
  • 135 mq
  • 2 bagni
VENDITA 10
€ 499.000
Appartamento in Vendita a Roma, Zona Fleming
  • Più di 5 locali
  • 135 mq
  • 2 bagni
VENDITA 20
€ 759.000
Appartamento in Vendita a Roma, Zona Fleming
  • Più di 5 locali
  • 195 mq
  • 3 bagni
VENDITA 20
€ 625.000
Appartamento in Vendita a Roma, Zona Fleming
  • Più di 5 locali
  • 150 mq
  • 2 bagni
VENDITA 2
€ 649.000
Appartamento in Vendita a Roma, Zona Fleming
  • Più di 5 locali
  • 145 mq
  • 3 bagni