FLEMING | NUDA PROPRIETÀ - CORSO DI FRANCIA VENDITA

Corso di Francia - Roma, Zona Fleming
€ 495.000
  • Quadrilocale
  • 157 mq
  • 2 bagni

Appartamento in Vendita a Roma

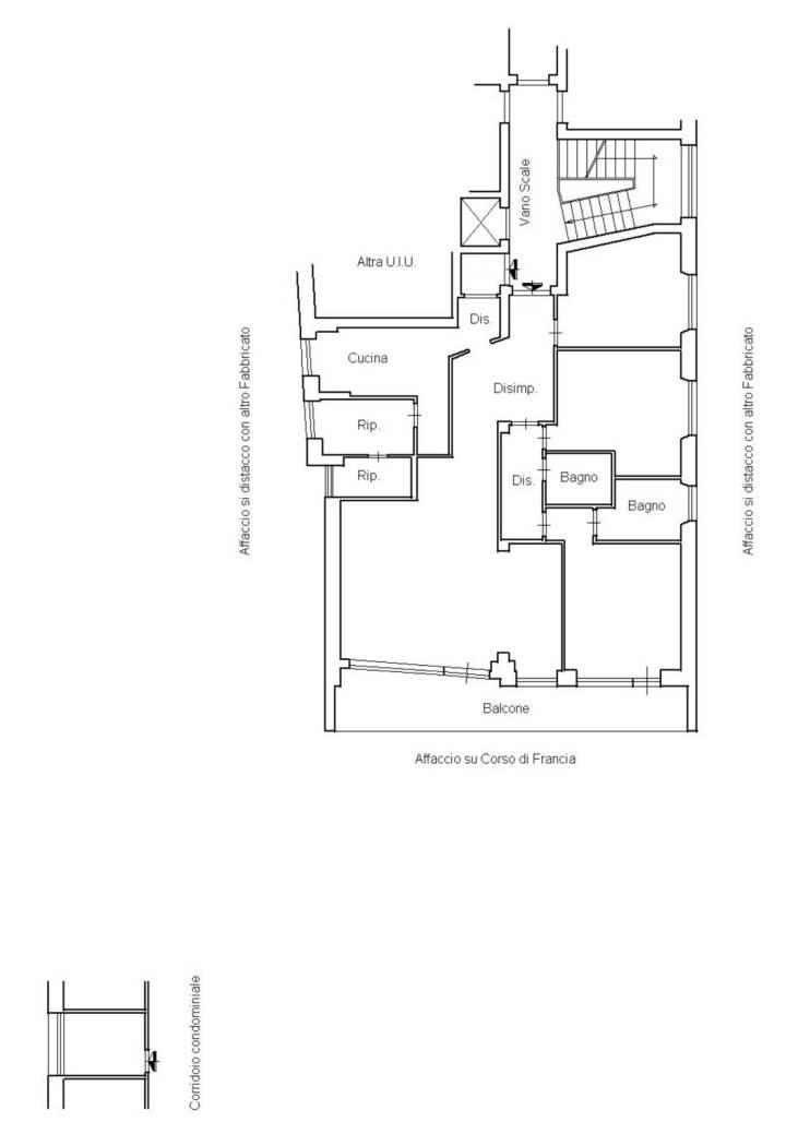
Proponiamo in vendita in nuda proprietà (età usufruttuaria 79 anni) un raffinato e luminoso appartamento sito al piano alto di una palazzina signorile con portiere.
Appartamento di 157 mq con terrazza, cantina e box auto. L’immobile si distingue per gli ambienti eleganti, funzionali e ben distribuiti, così composti: Doppio ingresso, Ampio salone doppio con accesso alla terrazza, Cucina abitabile, Tre camere da letto, Cameretta di servizio, Doppi servizi, Ripostiglio. Completano la proprietà una cantina ed un box auto di 15 mq. Dotazioni e comfort: Impianto d’allarme, Doppi vetri, Tapparelle elettriche, Aria condizionata, Riscaldamento centralizzato con valvole La zona è ottimamente servita e collegata, con scuole, supermercati, farmacie, banche, ristoranti e numerose attività commerciali nelle immediate vicinanze. Prezzo richiesto: € 495.000,00
Ottima opportunità di investimento.
Per informazioni e visite: CASAVIP – Tel. 06/66012180
Le presenti informazioni e planimetrie sono meramente indicative e non costituiscono elementi contrattuali.

LEGGI TUTTO

CONDIVIDI SUI SOCIAL

DATI PRINCIPALI

Riferimento
642480
Contratto
Vendita
Tipologia
Appartamento
Superficie
157 mq
Locali
4
Camere da letto
3
Cucina
Abitabile
Bagni
2
Piano
Più di 7 piani
Box/Posto auto
Singolo

CARATTERISTICHE

Ascensore

COSTI

Prezzo
€ 495.000,00
Spese condominiali
€ 250,00 / mese

EFFICIENZA ENERGETICA

Stato
Ristrutturato
Riscaldamento
Centralizzato
Climatizzazione
Si
Classe energetica
G
IPE
175,00 kWh/m²a

A+

A

B

C

D

E

F

175,00 kWh/m²a | Classe energetica G

G

MAPPA

ANNUNCI SIMILI

VENDITA 20
€ 680.000
Appartamento in Vendita a Roma, Zona Fleming
  • Quadrilocale
  • 157 mq
  • 2 bagni
VENDITA 18
€ 870.000
Appartamento in Vendita a Roma (Roma)
  • Più di 5 locali
  • 210 mq
  • 3 bagni
VENDITA 20
€ 490.000
Appartamento in Vendita a Roma (Roma)
  • Quadrilocale
  • 100 mq
  • 2 bagni
VENDITA 16
€ 850.000
Appartamento in Vendita a Roma (Roma)
  • Più di 5 locali
  • 173 mq
  • 3 bagni
VENDITA
€ 820.000
Appartamento in Vendita a Roma (Roma)
  • Più di 5 locali
  • 210 mq
  • 3 bagni
VENDITA 20
€ 596.250
Appartamento in Vendita a Roma (Roma)
  • Più di 5 locali
  • 200 mq
VENDITA 4
€ 596.250
Appartamento in Vendita a Roma (Roma)
  • Più di 5 locali
  • 200 mq