FINOCCHIO QUADRILOCALE SU DUE LIVELLI CON TERRAZZI BOX AUTO VENDITA

Via del Casale del Finocchio - Roma, Zona Finocchio
€ 259.000
  • Quadrilocale
  • 100 mq
  • 2 bagni

Appartamento in Vendita a Roma

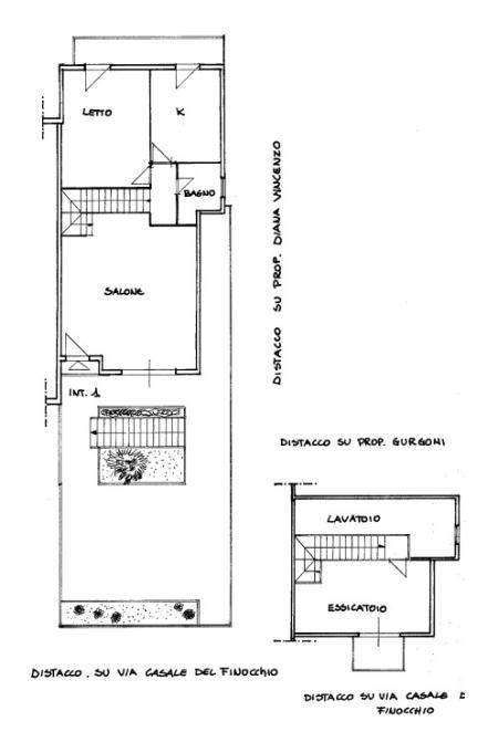
Proponiamo in vendita in Via del Casale del Finocchio, in contesto residenziale tranquillo e ben collegato, un appartamento costruito nel 1997, disposto su due livelli (piano primo e piano secondo), per una metratura complessiva di circa 100 mq.

L’immobile gode di entrata indipendente dal piano terra e si accede alla proprietà attraversando un ampio terrazzo di 100 mq, ideale per momenti conviviali, cene all’aperto o per chi desidera uno spazio esterno vivibile prima ancora di entrare in casa.

Piano Primo
Varcando la soglia troviamo:
• Ampio salone di circa 30 mq con camino
• Cucina abitabile con uscita su balcone
• Camera matrimoniale
• Bagno finestrato con box doccia

Piano Secondo
La zona notte superiore ospita:
• Seconda camera matrimoniale
• Cameretta
• Ripostiglio
• Bagno finestrato con box doccia
• Terrazzo di circa 20 mq

L’immobile gode di tripla esposizione, garantendo luminosità durante tutto l’arco della giornata.

DOTAZIONI E ACCESSORI
• Porta blindata
• Grate di sicurezza su tutti gli infissi
• Infissi in legno con doppio vetro
• Box auto di 30 mq

SPESE CONDOMINIALI
€ 60,00 mensili comprensive di consumo acqua.

Riferimenti ubicazione:
L’immobile è ubicato ad una traversa di via di Casilina, in zona ben servita, con supermercati, scuole e servizi di prima necessita raggiungibili a piedi.
A 600 m dalla stazione metro C Finocchio ( Pantano - San Giovanni ) , ben collegato con l' Università di Tor Vergata tramite metro C e linea atac 058.

Prezzo: €259.000

N. B. Tutte le informazioni ivi contenute, comprese le metrature, sono da intendersi puramente a titolo indicativo e non costituiscono elemento contrattuale.

LEGGI TUTTO

CONDIVIDI SUI SOCIAL

DATI PRINCIPALI

Riferimento
634060
Contratto
Vendita
Tipologia
Appartamento
Superficie
100 mq
Locali
4
Camere da letto
3
Cucina
Abitabile
Bagni
2
Piano
1 °
Totale piani
2
Box/Posto auto
Singolo

CARATTERISTICHE

Ascensore

COSTI

Prezzo
€ 259.000,00
Spese condominiali
€ 60,00 / mese

EFFICIENZA ENERGETICA

Stato
Abitabile
Anno costruzione
1997
Riscaldamento
Autonomo
Climatizzazione
Si
Classe energetica
F
IPE
175,00 kWh/m²a

A+

A

B

C

D

E

175,00 kWh/m²a | Classe energetica F

F

G

MAPPA

ANNUNCI SIMILI

VENDITA 11
€ 149.000
Appartamento in Vendita a Roma, Zona Finocchio
  • Quadrilocale
  • 118 mq
  • 2 bagni
VENDITA 20
€ 350.000
Appartamento in Vendita a Roma, Zona Finocchio
  • Più di 5 locali
  • 190 mq
  • 2 bagni
VENDITA 19
€ 205.000
Appartamento in Vendita a Roma, Zona Finocchio
  • Quadrilocale
  • 160 mq
  • 2 bagni
VENDITA 20
€ 249.000
Appartamento in Vendita a Roma, Zona Finocchio
  • Quadrilocale
  • 140 mq
  • 2 bagni
VENDITA 20
€ 210.000
Appartamento in Vendita a Roma, Zona Finocchio
  • Quadrilocale
  • 100 mq
  • 2 bagni