ESPERO VIA VAL TROMPIA VENDITA NUDA PROPRIETA' VENDITA

Via Val Trompia 53 - Roma, Zona Città Giardino
€ 380.000
  • Quadrilocale
  • 115 mq
  • 2 bagni

Appartamento in Vendita a Roma

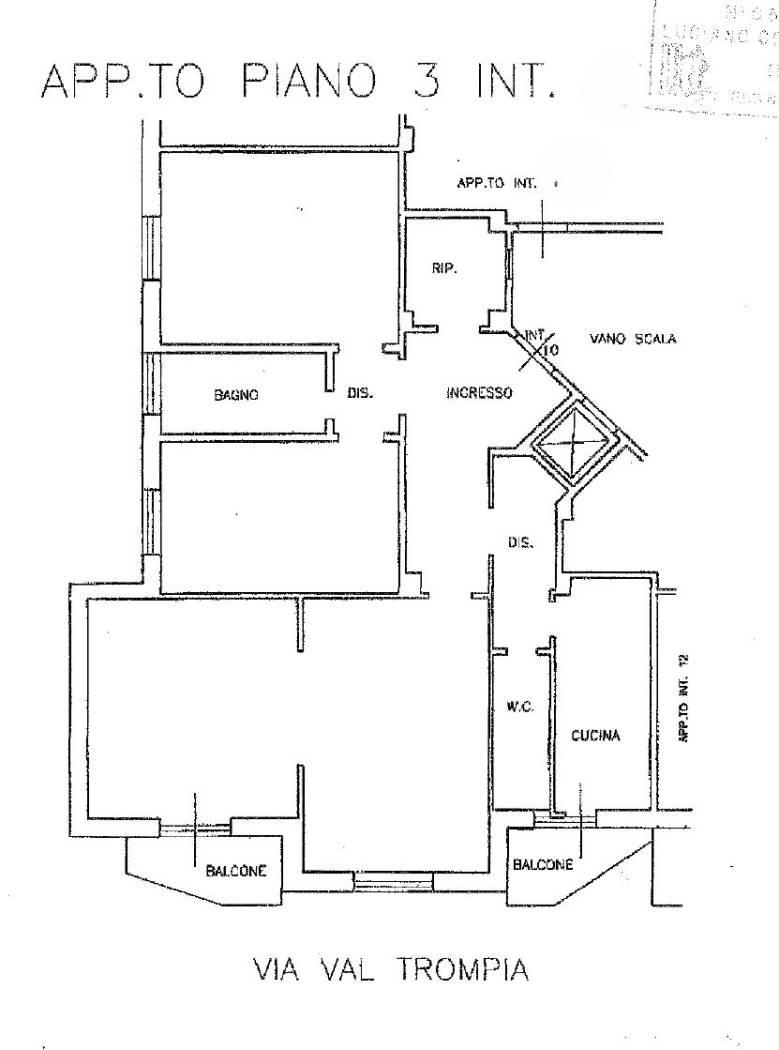
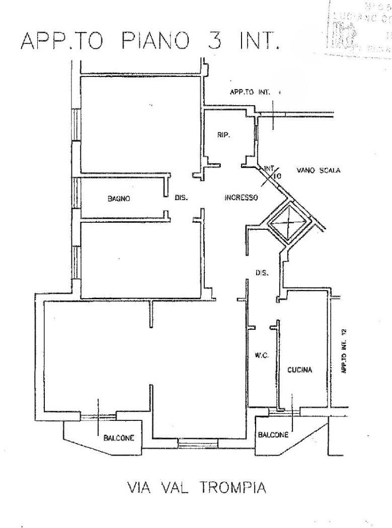
ESPERO-VIA VAL TROMPIA: in zona commerciale, ben servita ed ottimamente collegata proponiamo la vendita di un appartamento sito al 3 piano con ascensore di un signorile palazzo anni '50. L'immobile è composto da ampio ingresso, salone doppio divisibile con balcone, due ampie camere, ripostiglio, disimpegno, cucina abitabile con secondo balcone e doppi servizi.
Riscaldamento centralizzato con contabilizzatori di calore: la caldaia condominiale è stata appena sostituita.
L'appartamento gode di doppia esposizione e si presenta da ristrutturare.
Lo stabile dispone di un appartamento del portiere attualmente locato che produce reddito utile per ammortizzare i costi condominiali, cantina condominiale comune.
Spese condominiali Euro 150 x 6 rate
Spese riscaldamento condominiale Euro 200 x 6 rate
Euro 380.000.
Per info Giuseppe cell 3286867945 oppure vieni a trovarci sul sito www.giadaimmobiliare.com

LEGGI TUTTO

CONDIVIDI SUI SOCIAL

DATI PRINCIPALI

Riferimento
642418
Contratto
Vendita
Tipologia
Appartamento
Superficie
115 mq
Locali
4
Camere da letto
2
Cucina
Abitabile
Bagni
2
Piano
3 °
Totale piani
6

CARATTERISTICHE

Ascensore

COSTI

Prezzo
€ 380.000,00
Spese condominiali
€ 75,00 / mese

EFFICIENZA ENERGETICA

Stato
Da ristrutturare
Anno costruzione
1950
Riscaldamento
Centralizzato
Classe energetica
G
IPE
175,00 kWh/m²a

A+

A

B

C

D

E

F

175,00 kWh/m²a | Classe energetica G

G

MAPPA

ANNUNCI SIMILI

VENDITA 20
€ 299.000
Appartamento in Vendita a Roma, Zona Città Giardino
  • Quadrilocale
  • 100 mq
  • 2 bagni
VENDITA 20
€ 430.000
Appartamento in Vendita a Roma, Zona Città Giardino
  • Più di 5 locali
  • 180 mq
  • 2 bagni
VENDITA 20
€ 497.000
Appartamento in Vendita a Roma (Roma)
  • Più di 5 locali
  • 173 mq
  • 3 bagni