Due Locali + Box: Portuense Adiac. Via Giannetto Valli VENDITA

Viale Prospero Colonna - Roma, Zona Portuense
€ 255.000
  • Bilocale
  • 72 mq
  • 1 bagno

Appartamento in Vendita a Roma

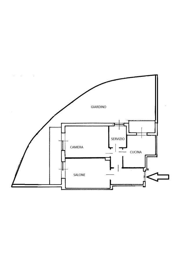
Portuense Via Giannetto Valli adiac. Palazzina in cortina Ottimo stato composto da Ingresso Salone Camera con cabina armadio Cucina abitabile Servizio Balcone Terrazzo di circa 80 mq angolare e box di 18 Mq€ 255.000 Gruppo Immobiliare srl Classe Energetica G (175 kWh/mqa)
Tutti gli Immobili Pubblicizzati nella Nostra Agenzia sono in Esclusiva e completi di documentazione, compresa Visura Ipotecaria.
Nota Bene: Le informazioni, misure e planimetrie sono meramente indicative e non costituiscono in alcun modo elementi contrattuali
Potete contattarci telefonicamente dal lunedì al venerdì dalle 9.00 alle 13.00 e dalle 15.30 alle 19.30 e il sabato dalle 9.00 alle 13.00, via E-mail al seguente indirizzo infomonteverde@gruppoimmobiliare.net oppure consultare tutte le nostre offerte sul sito internet www.gruppoimmobiliare.net

LEGGI TUTTO

CONDIVIDI SUI SOCIAL

DATI PRINCIPALI

Riferimento
630046
Contratto
Vendita
Tipologia
Appartamento
Superficie
72 mq
Locali
2
Camere da letto
1
Cucina
Abitabile
Bagni
1
Piano
Piano terra
Totale piani
5
Box/Posto auto
Singolo

CARATTERISTICHE

Ascensore

COSTI

Prezzo
€ 255.000,00
Spese condominiali
€ 83,00 / mese

EFFICIENZA ENERGETICA

Stato
Abitabile
Anno costruzione
1967
Riscaldamento
Autonomo
Climatizzazione
Si
Classe energetica
G
IPE
175,00 kWh/m²a

A+

A

B

C

D

E

F

175,00 kWh/m²a | Classe energetica G

G

MAPPA

ANNUNCI SIMILI

VENDITA 14
€ 400.000
Appartamento in Vendita a Roma, Zona Portuense
  • Quadrilocale
  • 120 mq
  • 2 bagni
VENDITA 20
€ 315.000
Appartamento in Vendita a Roma (Roma)
  • Trilocale
  • 108 mq
  • 1 bagno
VENDITA 20
€ 385.000
Appartamento in Vendita a Roma, Zona Portuense
  • Trilocale
  • 113 mq
  • 1 bagno
VENDITA 20
€ 250.000
Appartamento in Vendita a Roma (Roma)
  • Trilocale
  • 74 mq
  • 1 bagno
VENDITA 20
€ 205.000
Appartamento in Vendita a Roma (Roma)
  • Quadrilocale
  • 106 mq
  • 2 bagni