DUE LEONI | Quadrilocale di 90 mq | Metro C VENDITA

Via Raffaele De Ferrari - Roma, Zona Borghesiana
€ 170.000
  • Quadrilocale
  • 90 mq
  • 2 bagni

Appartamento in Vendita a Roma

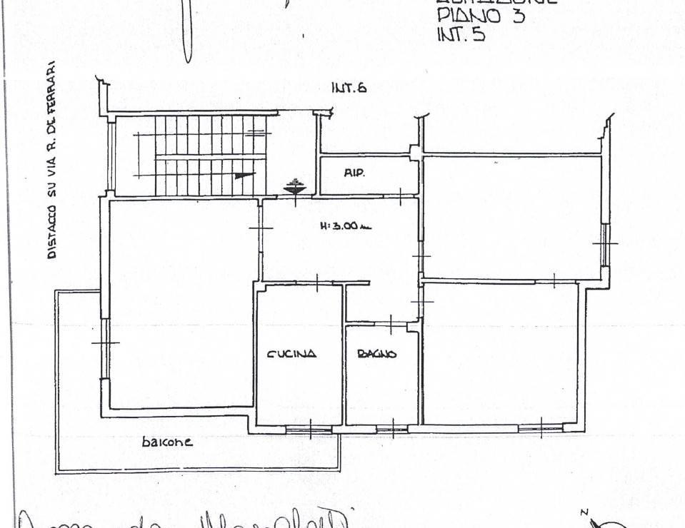
Nel cuore del quartiere "Grotte Celoni", nelle immediate vicinanze di tutti i principali servizi e negozi di prima necessità (posta, farmacia, supermercato, bar, pizzeria, scuola), a pochi passi a piedi dalla fermata dei mezzi pubblici dell' ATAC e della nuova METRO C "Grotte Celoni", proponiamo in vendita un appartamento quadrilocale di 90 mq (circa) posto al piano terzo SENZA ascensore di un edificio di soli tre piani fuori terra e sei appartamenti, composto da ingresso, ampio disimpegno, soggiorno comodo (possibilità di ricavare ulteriore cameretta), cucina abitabile separata, due camere da letto matrimoniali di cui una con bagno privato (aerazione), secondo bagno con finestra e ripostiglio.
Completa la proprietà un balcone perimetrale.

Internamente l’immobile si trova in discrete condizioni (da ammodernare) ed è dotato di citofono, cronotermostato, caldaia autonoma a condensazione e condizionatore nel salone.

Esposizione solare dicreta (sud-ovest).

NOTA LEGALE: tutte le informazioni, le descrizioni, le foto, le planimetrie contenute nel presente annuncio pubblicitario
NON costituiscono elemento contrattuale, potrebbero NON rispecchiare fedelmente lo stato di fatto dei luoghi e dell'immobile oggetto di pubblicità.
Pertanto, prima di formulare una proposta di acquisto, andranno verificate a cura del Cliente/Proponente.
L'Agenzia Immobiliare NON risponde di eventuali discordanze o informazioni errate presenti nell'annuncio pubblicitario di vendita. Le immagini, le descrizioni, le informazioni, le foto, le planimetrie, sono inserite AD ESCLUSIVO SCOPO ILLUSTRATIVO e pertanto NON COSTITUISCONO elemento contrattuale.

LEGGI TUTTO

CONDIVIDI SUI SOCIAL

DATI PRINCIPALI

Riferimento
642993
Contratto
Vendita
Tipologia
Appartamento
Superficie
90 mq
Locali
4
Camere da letto
2
Cucina
Abitabile
Bagni
2
Piano
3 °
Totale piani
3

CARATTERISTICHE

Ascensore

COSTI

Prezzo
€ 170.000,00

EFFICIENZA ENERGETICA

Stato
Abitabile
Classe energetica
F
IPE
351,00 kWh/m²a

A+

A

B

C

D

E

351,00 kWh/m²a | Classe energetica F

F

G

MAPPA

ANNUNCI SIMILI