Collefiorito-Appartamento con balcone angolare in piccola pa VENDITA

Via dei Narcisi 25 - Guidonia Montecelio (Roma)
€ 124.000
  • Trilocale
  • 68 mq
  • 1 bagno

Appartamento in Vendita a Guidonia Montecelio

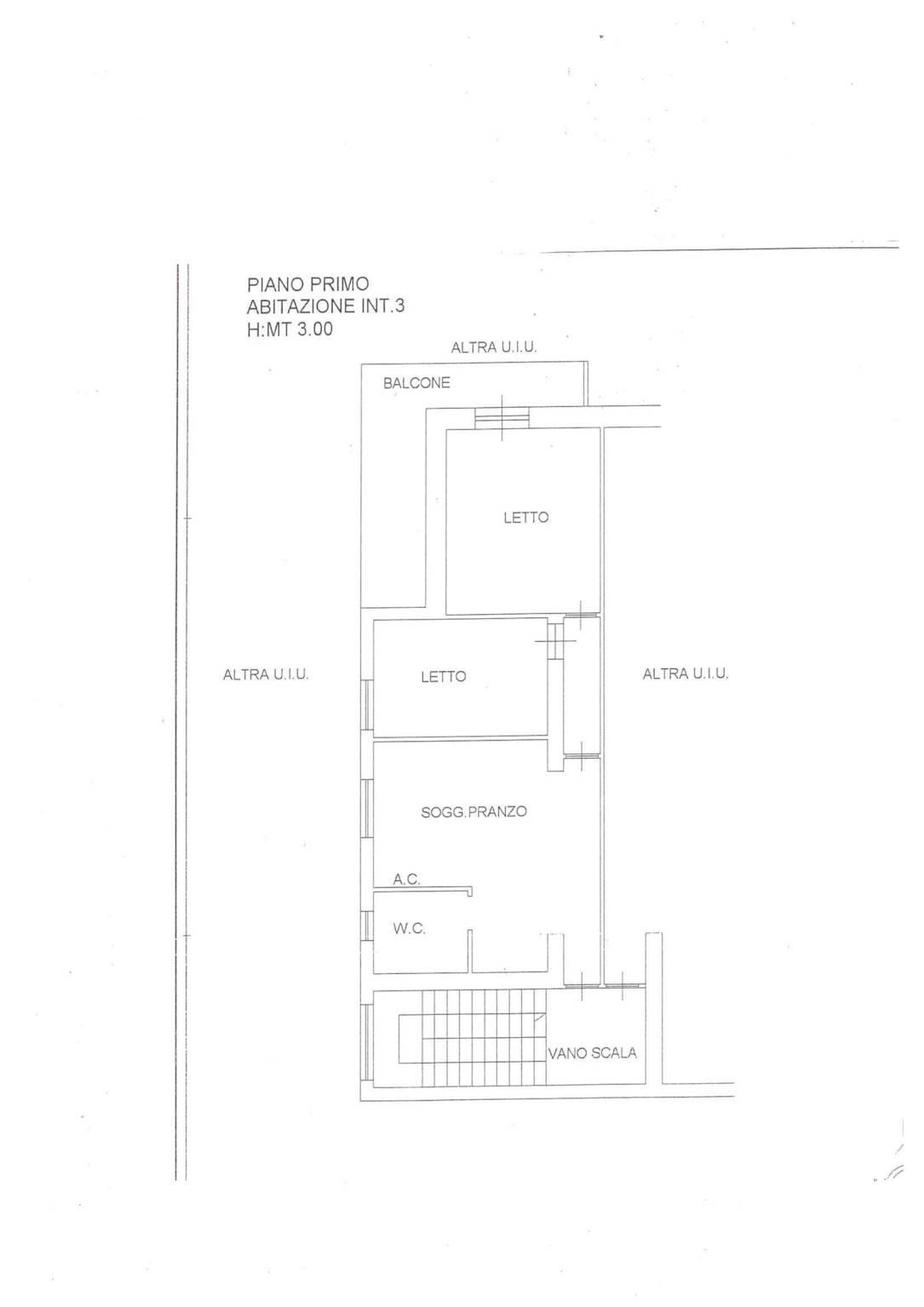
Nel cuore di Collefiorito, in una zona residenziale tranquilla ma strategica, ti presentiamo un appartamento che unisce comfort, praticità e ottime prospettive di rivalutazione futura. Ci troviamo in una palazzina di soli sei appartamenti, senza spese condominiali, completamente ristrutturata nel 2012. Gli impianti sono a norma, gli infissi in alluminio con doppi vetri e l'appartamento si trova al primo piano, facilmente raggiungibile anche senza ascensore.
L'ingresso si apre su un luminoso soggiorno con angolo cottura, perfetto per la vita quotidiana e per accogliere amici e familiari. La camera matrimoniale è spaziosa e accogliente. mentre la cameretta di ben 12 mq è ideale per un secondo letto, uno studio o una stanza giochi. Il bagno è finestrato e completo di box doccia. il vero valore aggiunto è il balcone angolare, che con i suoi 14 mq regala uno spazio esterno vivibile e struttabile in ogni stagione.
A pochi minuti sta nascendo la nuova stazione ferroviaria di Guidonia, un'opera destinata a rivoluzionare la mobilità della zona e a incrementare il valore degli immobili nei dintorni. Per questo motivo è anche un'ottima soluzione per chi cerca un investimento solido e destinato a crescere nel tempo. Un appartamento funzionale, ben distribuito, in un contesto riservato e senza costi fissi. Una casa pronta da vivere o da mettere subito a reddito. Non lasciartela sfuggire.
Per ulteriori informazioni o per fissare un appuntamento potete contattarci ai seguenti numeri: 0774.341613 o 329.1865309 ANCHE WHATSAPP
DEVI VENDERE CASA? Chiedici una valutazione GRATUITA del tuo immobile!

LEGGI TUTTO

CONDIVIDI SUI SOCIAL

DATI PRINCIPALI

Riferimento
641903
Contratto
Vendita
Tipologia
Appartamento
Superficie
68 mq
Locali
3
Camere da letto
2
Cucina
Angolo cottura
Bagni
1
Piano
1 °
Totale piani
2

CARATTERISTICHE

Ascensore

COSTI

Prezzo
€ 124.000,00

EFFICIENZA ENERGETICA

Stato
Ristrutturato
Anno costruzione
1982
Riscaldamento
Autonomo
Climatizzazione
Si
Classe energetica
G
IPE
351,00 kWh/m²a

A+

A

B

C

D

E

F

351,00 kWh/m²a | Classe energetica G

G

MAPPA

ANNUNCI SIMILI

VENDITA 6
€ 240.000
Appartamento in Vendita a Guidonia Montecelio (Roma)
  • Trilocale
  • 79 mq
  • 2 bagni
VENDITA 20
€ 272.000
Appartamento in Vendita a Guidonia Montecelio (Roma)
  • Quadrilocale
  • 113 mq
  • 2 bagni
VENDITA 20
€ 272.000
Appartamento in Vendita a Guidonia Montecelio (Roma)
  • Quadrilocale
  • 123 mq
  • 2 bagni