Ciampino - 6 locali € 3.500,00 A601 AFFITTO

Via di Morena, 119 - Ciampino (Roma)
€ 3.500 mensili
  • Più di 5 locali
  • 275 mq
  • 4 bagni

Appartamento in Affitto a Ciampino

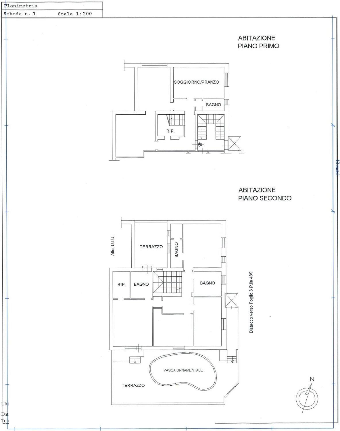
Ciampino Via Di Morena - Sei alla ricerca dell'immobile dei tuoi sogni? Antonelli Immobiliare ha la soluzione giusta per te. Vi proponiamo un meraviglioso appartamento in via Di Morena di mq 275 circa più mq 60 circa di terrazza, in ottimo stato, posto al 1° e 2° piano di una palazzina con ascensore privato.
Perché dovresti scegliere questo appartamento?
Analizziamolo insieme. Al primo piano troviamo: Ingresso, ampio salone, cucina abitabile, camera spaziosa, ripostiglio e bagno.
Salendo al secondo piano troviamo ben 4 meravigliose camere, di cui 2 con bagno privato e un ulteriore bagno.
Non è abbastanza?
L'immobile sempre al secondo piano ha una terrazza coperta dove abbiamo una meravigliosa piscina con vista diretta su Via Di Morena.
Per concludere riscaldamento autonomo e aria condizionata in ogni ambiente e anche videocitofono, spese condominio € 30 circa.
Cosa state aspettando?
La Antonelli Immobiliare nasce nel 1998 dall'idea vincente di uno dei componenti fondamentali della famiglia Antonelli. L'idea è stata portata avanti con il raggiungimento di non poche soddisfazioni. Il nostro lavoro si fonda sulla fiducia ed il rapporto diretto con i clienti offrendo loro un ampio ventaglio di proposte immobiliari e servizi di ogni tipo: valutazioni gratuite, consulenza tecnica, legale e tanto altro. La nostra è stata sempre una scelta volta sulla qualità del lavoro e non sulla quantità. Inizialmente specializzata nel settore commerciale con una vasta offerta di immobili ormai da diversi anni si sta imponendo di raggiungere le stesse soddisfazioni nel campo residenziale dove aumentano di giorno in giorno le offerte di vendita e di affitto. Abituati da sempre a metterci la faccia... € 3.500,00

LEGGI TUTTO

CONDIVIDI SUI SOCIAL

DATI PRINCIPALI

Riferimento
641573
Contratto
Affitto
Tipologia
Appartamento
Superficie
275 mq
Locali
Più di 5
Camere da letto
4
Cucina
Abitabile
Bagni
4
Totale piani
2
Box/Posto auto
Singolo

CARATTERISTICHE

Ascensore

COSTI

Canone
Affitto € 3.500,00 al mese
Tipo locazione
4+4
Spese condominiali
€ 30,00 / mese, non incluse nel canone

EFFICIENZA ENERGETICA

Stato
Abitabile
Anno costruzione
1991
Riscaldamento
Autonomo
Climatizzazione
Si
Classe energetica
G
IPE
67,50 kWh/m²a

A+

A

B

C

D

E

F

67,50 kWh/m²a | Classe energetica G

G

MAPPA

ANNUNCI SIMILI

AFFITTO 20
€ 3.500 mensili
Appartamento in Affitto a Ciampino (Roma)
  • Più di 5 locali
  • 275 mq
  • 2 bagni
AFFITTO 20
€ 850 mensili
Appartamento in Affitto a Marino (Roma)
  • Più di 5 locali
  • 105 mq
  • 2 bagni
AFFITTO 7
€ 2.600 mensili
Appartamento in Affitto a Roma (Roma)
  • Più di 5 locali
  • 200 mq
  • 2 bagni
AFFITTO 20
€ 6.600 mensili
Appartamento in Affitto a Roma (Roma)
  • Più di 5 locali
  • 325 mq
  • 4 bagni