Centro storico Trilocale vista Piazza Leandra ottimo uso in VENDITA

Piazza aurelio saffi - Civitavecchia (Roma)
€ 159.000
  • Trilocale
  • 80 mq
  • 1 bagno

Appartamento in Vendita a Civitavecchia

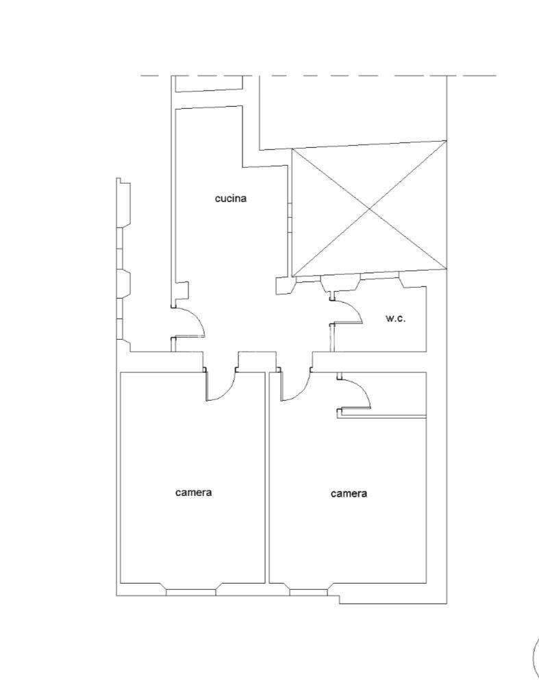
Tempocasa Civitavecchia propone in vendita uno caratteristico trilocale con entrata da Piazza Saffi ma che affaccia sulla caratteristica e medioevale Fontana di Piazza Leandra la fontana più antica di Civitavecchia così composto: cucina abitabile a vista 2 grandissime camere matrimoniali di cui una con cabina armadio interna dove è possibile anche ricavare un secondo bagno con molta facilità visto che la parete combacia con il bagno già esistente e un bagno completo finestrato. L'immobile è termoautonomo ed in buone condizione inoltre è regolarmente affittato a €600,00 più condominio a parte regolarmente pagato con bonifico mensile contratto rinnovato dicembre 2025 per ulteriori 3 anni.

LEGGI TUTTO

CONDIVIDI SUI SOCIAL

DATI PRINCIPALI

Riferimento
638733
Contratto
Vendita
Tipologia
Appartamento
Superficie
80 mq
Locali
3
Camere da letto
2
Cucina
Abitabile
Bagni
1
Piano
1 °

CARATTERISTICHE

Ascensore

COSTI

Prezzo
€ 159.000,00
Spese condominiali
€ 40,00 / mese

EFFICIENZA ENERGETICA

Stato
Abitabile
Anno costruzione
1950
Riscaldamento
Autonomo
Classe energetica
F
IPE
175,00 kWh/m²a

A+

A

B

C

D

E

175,00 kWh/m²a | Classe energetica F

F

G

MAPPA

ANNUNCI SIMILI