€ 6.300 mensili
  • Trilocale
  • 110 mq
  • 1 bagno

Appartamento in Affitto a Roma

Dimora Angolare nel Cuore di Monti
L’essenza del vivere romano incontra il design contemporaneo.

Nel cuore pulsante del Rione Monti, all’interno di uno degli stabili d’epoca più prestigiosi e signorili della zona con ascensore, proponiamo in locazione una residenza di rara bellezza, attualmente oggetto di un meticoloso restauro.

Situato al terzo piano, l’appartamento si distingue per un’esposizione angolare straordinaria che lo inonda di luce naturale. Le ampie finestre incorniciano scorci iconici della Capitale: quattro affacci su via degli Zingari e due sulla vibrante Piazza Monti e via del Boschetto

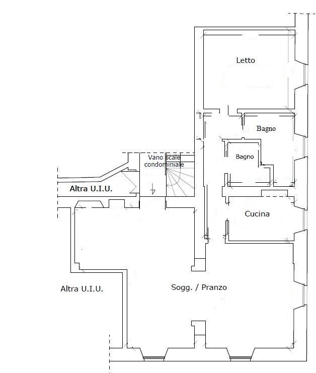
Gli Spazi
La proprietà è stata concepita per chi desidera coniugare rappresentanza e comfort domestico:

Salone di Alta Rappresentanza: Un volume scenografico di circa 50 mq, ideale per accogliere ospiti in un’atmosfera di grande respiro e prestigio.

Master Suite: Un rifugio di assoluta privacy con spaziosa camera matrimoniale, armadi a muro realizzati su misura da artigiani qualificati e raffinato bagno en-suite.

Seconda camera: su richiesta è possibile dalla ristrutturazione ricavare una seconda camera

Cucina Gourmet: Uno spazio funzionale e completo di ogni dotazione tecnologica (piano a induzione, forno, microonde, frigo capiente), perfetto per gli amanti della convivialità.

Servizi: Un secondo bagno ospiti finemente rifinito completa la zona giorno.

Caratteristiche di Rilievo
Posizione Dominante: Affacci angolari che garantiscono luminosità costante,

Ristrutturazione d'Elite: Materiali di pregio e finiture studiate per esaltare l'architettura originaria, pavimenti in parquet in rovere a spina francese e marmi, infissi di prima qualità (Schuco con cerniera a scomparsa, massima insonorizzazione), armadi a muro da falegnameria artigianale porta blindata, videocitofono, riscaldamento autonomo, climatizzazione di massima efficienza, pittura e smalti crown

Contesto Esclusivo: In uno dei palazzi più ricercati del quartiere, simbolo di eleganza e storia.

Una soluzione ideale per chi cerca una dimora di charme, dove il prestigio del passato dialoga con il comfort moderno.

LEGGI TUTTO

CONDIVIDI SUI SOCIAL

DATI PRINCIPALI

Riferimento
632505
Contratto
Affitto
Tipologia
Appartamento
Superficie
110 mq
Locali
3
Camere da letto
3
Cucina
Abitabile
Bagni
1
Piano
3 °
Totale piani
4

CARATTERISTICHE

Ascensore

COSTI

Canone
Affitto € 6.300,00 al mese
Tipo locazione
4+4
Spese condominiali
€ 200,00 / mese, non incluse nel canone

EFFICIENZA ENERGETICA

Stato
Ristrutturato
Anno costruzione
1900
Riscaldamento
Autonomo
Climatizzazione
Si
Classe energetica
E
IPE
351,00 kWh/m²a

A+

A

B

C

D

351,00 kWh/m²a | Classe energetica E

E

F

G

MAPPA

ANNUNCI SIMILI

AFFITTO 13
€ 1.400 mensili
Appartamento in Affitto a Roma (Roma)
  • Trilocale
  • 70 mq
  • 2 bagni
AFFITTO 20
€ 1.250 mensili
Appartamento in Affitto a Roma (Roma)
  • Trilocale
  • 45 mq
  • 1 bagno
AFFITTO 14
€ 2.700 mensili
Appartamento in Affitto a Roma (Roma)
  • Quadrilocale
  • 140 mq
  • 2 bagni
AFFITTO 20
€ 3.000 mensili
Appartamento in Affitto a Roma (Roma)
  • Trilocale
  • 80 mq
  • 1 bagno
AFFITTO 18
€ 2.500 mensili
Appartamento in Affitto a Roma (Roma)
  • Trilocale
  • 110 mq
  • 2 bagni
AFFITTO 20
€ 3.500 mensili
Appartamento in Affitto a Roma (Roma)
  • Più di 5 locali
  • 160 mq
  • 2 bagni