Cassia – San Godenzo - Luminoso appartamento con terrazzo VENDITA

Via Atina 21 - Roma (Roma)
€ 420.000
  • Trilocale
  • 120 mq
  • 1 bagno

Appartamento in Vendita a Roma

Se cerchi una casa spaziosa, luminosa e con un grande terrazzo vivibile, questa soluzione a Cassia San Godenzo merita sicuramente una visita.

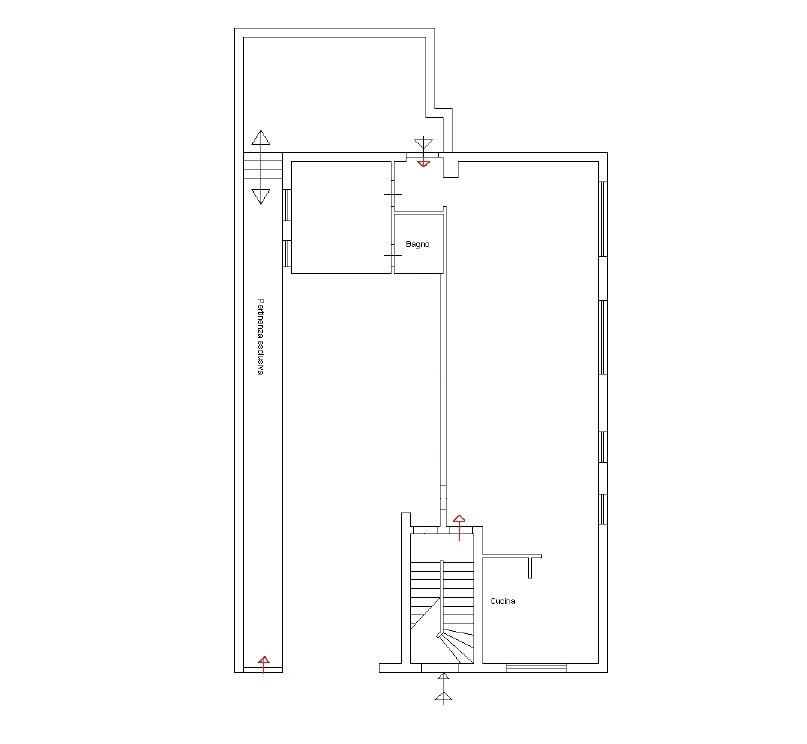
Proponiamo in vendita un appartamento di circa 120 mq commerciali, situato al primo piano di un piccolo stabile di soli due piani con 6 abitazioni, in un contesto tranquillo e riservato.

La tripla esposizione sud/est/ovest garantisce luce naturale durante tutta la giornata e rende gli ambienti particolarmente ariosi e piacevoli da vivere.

Uno dei veri punti di forza della casa è il grande salone di oltre 60 mq, perfetto per chi ama spazi aperti e conviviali o per chi desidera ridistribuire facilmente gli ambienti creando una seconda camera o un secondo bagno.

La proprietà dispone inoltre di due ingressi, caratteristica che offre anche la possibilità di accesso indipendente o una diversa organizzazione degli spazi interni.

Composizione: ingresso con armadio a muro, ampio salone doppio di oltre 60 mq, cucina, lavanderia, camera matrimoniale con armadio a muro, bagno en suite con vasca, terrazzo vivibile di circa 50 mq, ideale per pranzi all'aperto e momenti di relax.

Plus della proprietà:

✔ Tripla esposizione (sud / est / ovest)
✔ Piccolo stabile di sole 6 unità
✔ Terrazzo di 50 mq
✔ Ambienti facilmente modificabili
✔ Posto auto coperto in garage condominiale
✔ Possibilità posto auto triplo scoperto in affitto adiacente a Via Atina

Una soluzione ideale per single che desiderano grandi spazi di rappresentanza, coppie oppure per chi cerca un appartamento con potenziale di personalizzazione in una zona residenziale ben collegata.

LEGGI TUTTO

CONDIVIDI SUI SOCIAL

DATI PRINCIPALI

Riferimento
636943
Contratto
Vendita
Tipologia
Appartamento
Superficie
120 mq
Locali
3
Camere da letto
2
Bagni
1
Piano
1 °
Totale piani
1

CARATTERISTICHE

Ascensore

COSTI

Prezzo
€ 420.000,00
Spese condominiali
€ 29,00 / mese

EFFICIENZA ENERGETICA

Stato
Ristrutturato
Anno costruzione
1960
Riscaldamento
Centralizzato
Classe energetica
G
IPE
175,00 kWh/m²a

A+

A

B

C

D

E

F

175,00 kWh/m²a | Classe energetica G

G

MAPPA

ANNUNCI SIMILI

VENDITA 20
€ 545.000
Appartamento in Vendita a Roma (Roma)
  • Quadrilocale
  • 152 mq
  • 2 bagni
VENDITA 20
€ 450.000
Appartamento in Vendita a Roma (Roma)
  • Più di 5 locali
  • 160 mq
  • 3 bagni
VENDITA 18
€ 420.000
Appartamento in Vendita a Roma (Roma)
  • Trilocale
  • 120 mq
  • 2 bagni
VENDITA 20
€ 695.000
Appartamento in Vendita a Roma (Roma)
  • Più di 5 locali
  • 167 mq
  • 3 bagni
VENDITA 20
€ 690.000
Appartamento in Vendita a Roma (Roma)
  • Più di 5 locali
  • 165 mq
  • 2 bagni
VENDITA 11
€ 460.000
Appartamento in Vendita a Roma (Roma)
  • Trilocale
  • 140 mq
  • 2 bagni
VENDITA 9
€ 635.000
Appartamento in Vendita a Roma (Roma)
  • Quadrilocale
  • 147 mq
  • 2 bagni
VENDITA 20
€ 440.000
Appartamento in Vendita a Roma (Roma)
  • Quadrilocale
  • 147 mq
  • 3 bagni