CASAL BERNOCCHI - VIA DI PONTE LADRONE VENDITA

Via di Ponte Ladrone 309 - Roma, Frazione Casal Bernocchi
€ 269.000
  • Trilocale
  • 120 mq
  • 2 bagni

Appartamento in Vendita a Roma

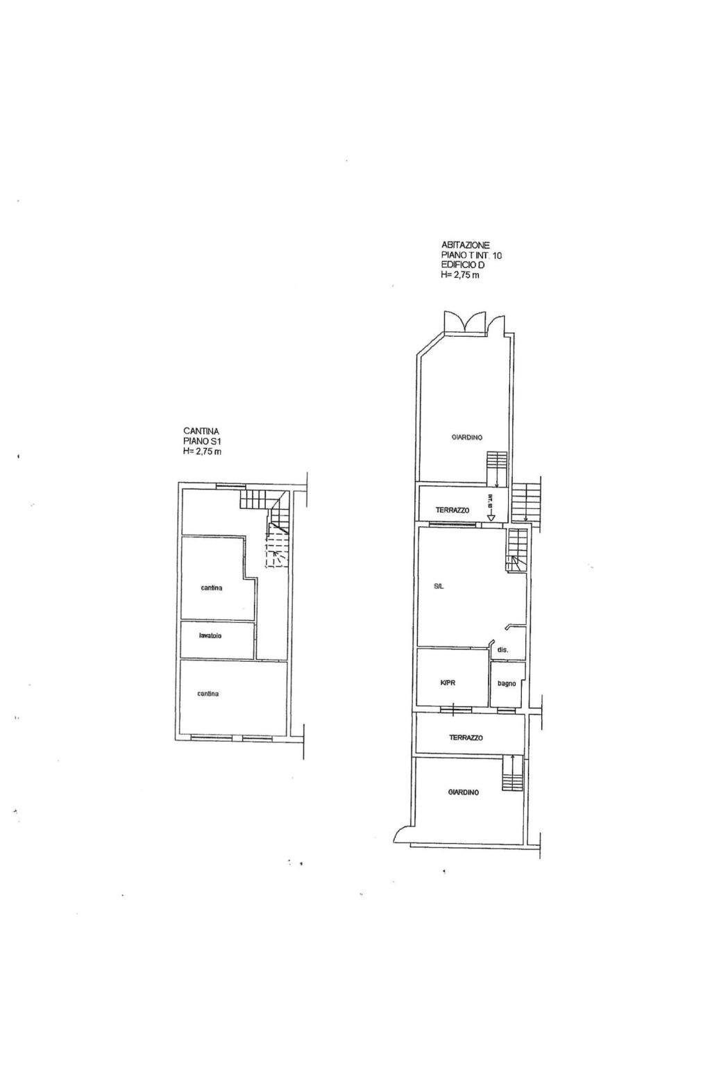
In contesto residenziale e silenzioso, proponiamo la vendita di un immobile recentemente ristrutturato disposto su due livelli.
Al piano terra troviamo un ampio salone, una cucina, un disimpegno, bagno con antibagno e due giardini fronte retro dove è possibile parcheggiare anche un'auto.
Al piano sottostante troviamo la zona notte composta di due camere e un bagno (possibilità di creare la terza camera da letto).

Completa la proprietà un posto auto scoperto assegnato all'interno del condominio.

Classe Energetica: G RIF. T320 EURO 269.000

Siamo a disposizione per fornirVi maggiori informazioni e per fissare un sopralluogo sull'immobile in oggetto, se è possibile con un minimo di preavviso, al nostro numero telefonico 06.52201140 oppure al nostro indirizzo email. Siamo reperibili dal lunedì al venerdì dalle ore 9.00 alle ore 13.00 e dalle 15.30 alle 19.30, mentre il sabato dalle ore 9.00 alle ore 13.00. Per ulteriori foto e dettagli visitate il nostro sito internet.

LEGGI TUTTO

CONDIVIDI SUI SOCIAL

DATI PRINCIPALI

Riferimento
636924
Contratto
Vendita
Tipologia
Appartamento
Superficie
120 mq
Locali
3
Camere da letto
2
Cucina
Abitabile
Bagni
2
Piano
Piano terra
Totale piani
3
Box/Posto auto
Singolo

CARATTERISTICHE

Ascensore

COSTI

Prezzo
€ 269.000,00
Spese condominiali
€ 70,00 / mese

EFFICIENZA ENERGETICA

Stato
Ristrutturato
Anno costruzione
1990
Riscaldamento
Autonomo
Climatizzazione
Si
Classe energetica
G
IPE
175,00 kWh/m²a

A+

A

B

C

D

E

F

175,00 kWh/m²a | Classe energetica G

G

MAPPA

ANNUNCI SIMILI

VENDITA 20
€ 330.000
Appartamento in Vendita a Roma, Frazione Casal Bernocchi
  • Più di 5 locali
  • 120 mq
  • 2 bagni
VENDITA 20
€ 190.000
Appartamento in Vendita a Roma, Frazione Casal Bernocchi
  • Quadrilocale
  • 110 mq
  • 1 bagno