CAPANNELLE TRILOCALE RISTRUTTURATO IN COMPLESSO RESIDENZIALE VENDITA

Via del Calice - Roma (Roma)
€ 285.000
  • Trilocale
  • 80 mq
  • 1 bagno

Appartamento in Vendita a Roma

CAPANNELLE - Via Del Calice

All'interno del Villaggio Ribot, complesso condominiale caratterizzato da piccole palazzine in tinta circondate da ampi spazi verdi comuni e zone di parcheggio, l'Agenzia Immobiliare Fascetta, affiliata Frimm, ha il piacere di proporre un appartamento trilocale recentemente ristrutturato posto al primo piano senza ascensore.

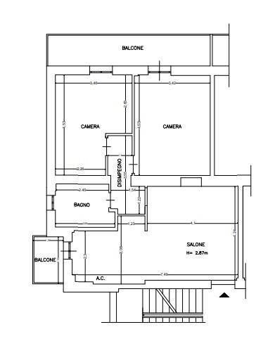
L'appartamento si trova in ottime condizioni manutentive ed è così strutturato:

- dal portoncino blindato si accede direttamente alla zona giorno open space composta da soggiorno e comoda cucina a vista con balconcino di servizio;

- il disimpegno separa la zona giorno dalla zona notte, composta da un bagno finestrato con doccia e due comode camere, entrambe con sfogo sul secondo balcone che percorre tutto il lato dell'appartamento.

- a disposizione dell'appartamento c'è inoltre un posto auto scoperto all'interno del cortile condominiale, proprio laterale al portone della palazzina e dunque molto comodo.

L'immobile è stato ristrutturato nel 2020 e dispone di infissi nuovi con doppi vetri, impianto di climatizzazione e riscaldamento centralizzato con contabilizzazione delle calorie.

Il complesso condominiale è molto curato, comprende servizio di portineria, delle aree verdi a disposizione dei condomini nonchè un parco attrezzato con giostre per bambini e un campo da calcetto.
Le spese condominiali includono gli importi relativi al riscaldamento ed ai servizi di portineria e giardinaggio.
Per informazioni e visite potete contattarci al n. 0671289071.

LEGGI TUTTO

CONDIVIDI SUI SOCIAL

DATI PRINCIPALI

Riferimento
638248
Contratto
Vendita
Tipologia
Appartamento
Superficie
80 mq
Locali
3
Camere da letto
2
Cucina
A vista
Bagni
1
Piano
1 °
Totale piani
3
Box/Posto auto
Singolo

CARATTERISTICHE

Ascensore

COSTI

Prezzo
€ 285.000,00
Spese condominiali
€ 140,00 / mese

EFFICIENZA ENERGETICA

Stato
Ristrutturato
Anno costruzione
1963
Riscaldamento
Centralizzato
Climatizzazione
Si
Classe energetica
G
IPE
175,00 kWh/m²a

A+

A

B

C

D

E

F

175,00 kWh/m²a | Classe energetica G

G

MAPPA

ANNUNCI SIMILI

VENDITA 20
€ 345.000
Appartamento in Vendita a Roma (Roma)
  • Trilocale
  • 101 mq
  • 2 bagni
VENDITA 20
€ 290.000
Appartamento in Vendita a Roma (Roma)
  • Trilocale
  • 110 mq
  • 1 bagno
VENDITA 20
€ 590.000
Appartamento in Vendita a Roma (Roma)
  • Più di 5 locali
  • 130 mq
  • 2 bagni
VENDITA 17
€ 209.000
Appartamento in Vendita a Roma (Roma)
  • Trilocale
  • 70 mq
  • 2 bagni
VENDITA 20
€ 289.000
Appartamento in Vendita a Roma (Roma)
  • Trilocale
  • 90 mq
  • 1 bagno
VENDITA 9
€ 335.000
Appartamento in Vendita a Roma (Roma)
  • Quadrilocale
  • 100 mq
  • 1 bagno
VENDITA 2
€ 290.000
Appartamento in Vendita a Roma (Roma)
  • Trilocale
  • 100 mq
  • 1 bagno