Buongiorno. Per ulteriori informazioni e/o per una visita de VENDITA

Via Flaminia Nuova - Roma (Roma)
€ 259.000
  • Bilocale
  • 57 mq
  • 1 bagno

Appartamento in Vendita a Roma

PER INFO E VISITE
SIMONE MAFFOLI
393 56 92 147 - 06 68 58 45 70
Email: smaffoli@realecasagroup.it

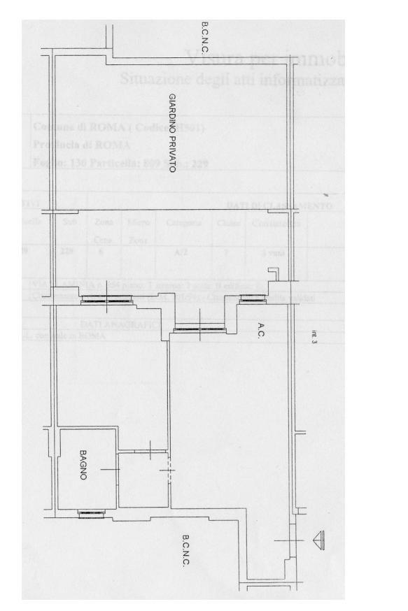
La Reale Casa Group propone in vendita un appartamento situato nel complesso residenziale "PAPILLO" su Via Flaminia, adiacente a Corso Francia. Si trova al piano terra, con esposizione sulla piscina totalmente a SUD e si presenta in ottime condizioni generali. Possibilità box auto di mq 22 circa.
L'appartamento offre:
• Ampio ingresso e soggiorno con angolo cottura
• Camera da letto
• Bagno finestrato con doccia
• Ampio patio vivibile
• Giardino
• Ripostiglio e vani tecnici

Il riscaldamento è centralizzato ma con gestione autonoma. Il complesso include un servizio di portineria una piscina condominiale e un parco giochi attrezzato. Il prezzo richiesto è di €259.000.

L’appartamento è caratterizzato da ampie vetrate (serramenti in legno douglas con vetrocamera) Le rifiniture interne sono di pregio e sono caratterizzate da parquet in rovere, portoni blindati in wengè, porte interne in massello, irrigazione automatico, . L’appartamento è completo di impianto di allarme, videocitofono a colori, condizionatori d'aria a pompa di calore caldo freddo, antenna satellitare, e servizio di video sorveglianza collegato con il portiere. L’impianto termico è centralizzato ma a gestione autonoma, inoltre l'edificio è fornito di pannelli solari e di impianto fotovoltaico.

*NB TUTTE LE INFORMAZIONI IVI CONTENUTE COMPRESE LE METRATURE SONO DA INTENDERSI PURAMENTE A TITOLO INDICATIVO E NON COSTITUISCONO ELEMENTO CONTRATTUALE – TEL. + 39 0668584570

REALE CASA GROUP rappresenta l’esperienza professionale e manageriale di oltre 30 anni d’attività, maturata nei settori dell’intermediazione immobiliare e della gestione dei cantieri. Ci proponiamo alla nostra clientela per l’acquisizione e la vendita di terreni edificabili, di varie tipologie e varie metrature, di appartamenti, di ville, dalle più semplici alle più prestigiose, di locali e di attività commerciali, di proposte alberghiere e abitative. Specializzati nella vendita in blocco o frazionatamente. Interventi di HOME STAGING: l’arte di preparare la casa prima di metterla in vendita - Servizio fotografico professionale.

LEGGI TUTTO

CONDIVIDI SUI SOCIAL

DATI PRINCIPALI

Riferimento
633135
Contratto
Vendita
Tipologia
Appartamento
Superficie
57 mq
Locali
2
Camere da letto
1
Cucina
Angolo cottura
Bagni
1
Piano
Piano terra
Totale piani
6
Box/Posto auto
Singolo

CARATTERISTICHE

Ascensore

COSTI

Prezzo
€ 259.000,00
Spese condominiali
€ 70,00 / mese

EFFICIENZA ENERGETICA

Stato
Abitabile
Anno costruzione
2010
Riscaldamento
Autonomo
Climatizzazione
Si
Classe energetica
A
IPE
175,00 kWh/m²a

A+

175,00 kWh/m²a | Classe energetica A

A

B

C

D

E

F

G

MAPPA

ANNUNCI SIMILI

VENDITA 13
€ 310.000
Appartamento in Vendita a Roma (Roma)
  • Bilocale
  • 49 mq
  • 1 bagno
VENDITA 20
€ 370.000
Appartamento in Vendita a Roma, Zona Fleming
  • Trilocale
  • 110 mq
  • 2 bagni
VENDITA 20
€ 560.000
Appartamento in Vendita a Roma, Zona Fleming
  • Più di 5 locali
  • 155 mq
  • 2 bagni
VENDITA 20
€ 470.000
Appartamento in Vendita a Roma, Zona Fleming
  • Trilocale
  • 102 mq
  • 2 bagni
VENDITA 20
€ 530.000
Appartamento in Vendita a Roma (Roma)
  • Più di 5 locali
  • 150 mq
  • 3 bagni
VENDITA 20
€ 390.000
Appartamento in Vendita a Roma (Roma)
  • Trilocale
  • 85 mq
  • 1 bagno