BORGHESIANA VIA VILLABATE VENDITA

Via Villabate - Roma, Zona Borghesiana
€ 162.000
  • Trilocale
  • 72 mq
  • 1 bagno

Appartamento in Vendita a Roma

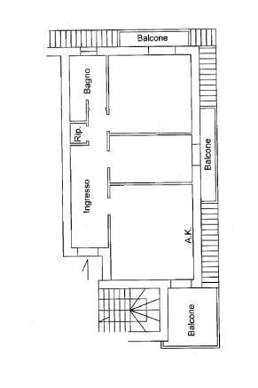
In palazzina dei primi anni ’70 di soli tre piani, in intonaco in buone condizioni, proponiamo la vendita di un trilocale posto al terzo piano completamente arredato.
L’immobile è composto da ampio ingresso, salone con angolo cottura e camino, camera matrimoniale, cameretta, servizio con doccia, ripostiglio, due balconi e un terrazzino. In buone condizioni è dotato di pavimenti in ceramica, finestre in alluminio con tapparelle in PVC, riscaldamento autonomo.
Nelle immediate vicinanze è possibile trovare tutti i servizi di maggiore utilità, quali supermercati, posta, banca, scuole, piscine, e mezzi di trasporto che favoriscono un veloce collegamento con diversi quartieri della città. A circa 1.2 km dalla stazione metro C Grotte Celoni.
Prezzo di vendita € 162.000,00. Classe energetica di appartenenza: G.

LEGGI TUTTO

CONDIVIDI SUI SOCIAL

DATI PRINCIPALI

Riferimento
637733
Contratto
Vendita
Tipologia
Appartamento
Superficie
72 mq
Locali
3
Camere da letto
2
Cucina
Angolo cottura
Bagni
1
Piano
3 °
Totale piani
3

CARATTERISTICHE

Ascensore

COSTI

Prezzo
€ 162.000,00
Spese condominiali
€ 25,00 / mese

EFFICIENZA ENERGETICA

Stato
Abitabile
Anno costruzione
1970
Riscaldamento
Autonomo
Classe energetica
F
IPE
235,58 kWh/m²a

A+

A

B

C

D

E

235,58 kWh/m²a | Classe energetica F

F

G

MAPPA

ANNUNCI SIMILI

VENDITA 20
€ 99.000
Appartamento in Vendita a Roma, Zona Borghesiana
  • Trilocale
  • 93 mq
  • 1 bagno
VENDITA 20
€ 155.000
Appartamento in Vendita a Roma, Zona Borghesiana
  • Trilocale
  • 90 mq
  • 1 bagno