BILOCALE + STUDIO CON TERRAZZO E POSTO AUTO VENDITA

Via Raoul Chiodelli 64 - Roma, Zona Ponte Di Nona
€ 147.000
  • Bilocale
  • 55 mq
  • 1 bagno

Appartamento in Vendita a Roma

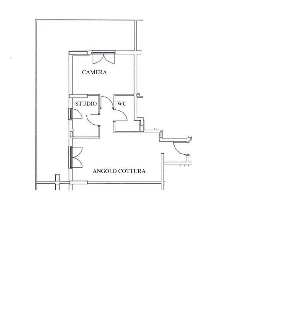
Ponte di Nona- Via Raoul Chiodelli - In complesso residenziale composto da vari edifici con cortile interno, l'appartamento è al 1° piano ed è composto da ingresso, soggiorno con angolo cottura, disimpegno, camera matrimoniale, bagno con vasca e camera/studio; l'ampio terrazzo ad "L" abbraccia l'immobile e affaccia nel cortile interno; completa la proprietà un posto auto coperto sito al piano terra della palazzina. L''immobile è già dotato di arredo cucina e camera; nello studio c'è una scrivania; già presenti 2 condizionatori: uno in camera e uno in salone. Classe G. Libero da subito. Buone le condizioni interne. Predisposizione antifurto. Per info e visite 06.22447315

LEGGI TUTTO

CONDIVIDI SUI SOCIAL

DATI PRINCIPALI

Riferimento
642055
Contratto
Vendita
Tipologia
Appartamento
Superficie
55 mq
Locali
2
Camere da letto
1
Cucina
Angolo cottura
Bagni
1
Piano
1 °
Totale piani
5
Box/Posto auto
Singolo

CARATTERISTICHE

Ascensore

COSTI

Prezzo
€ 147.000,00
Spese condominiali
€ 50,00 / mese

EFFICIENZA ENERGETICA

Stato
Abitabile
Anno costruzione
2006
Riscaldamento
Autonomo
Climatizzazione
Si
Classe energetica
F
IPE
175,00 kWh/m²a

A+

A

B

C

D

E

175,00 kWh/m²a | Classe energetica F

F

G

MAPPA

ANNUNCI SIMILI

VENDITA 20
€ 85.000
Appartamento in Vendita a Roma, Zona Ponte Di Nona
  • Bilocale
  • 65 mq
  • 1 bagno
VENDITA 20
€ 249.000
Appartamento in Vendita a Roma, Zona Ponte Di Nona
  • Trilocale
  • 90 mq
  • 2 bagni
VENDITA 17
€ 229.000
Appartamento in Vendita a Roma, Zona Ponte Di Nona
  • Trilocale
  • 108 mq
  • 2 bagni
VENDITA 20
€ 230.000
Appartamento in Vendita a Roma, Zona Ponte Di Nona
  • Trilocale
  • 101 mq
  • 2 bagni
VENDITA 20
€ 263.000
Appartamento in Vendita a Roma, Zona Ponte Di Nona
  • Trilocale
  • 92 mq
  • 2 bagni