Bilocale Selva Candida con terrazzo recente costruzione VENDITA

Via Scaldasole 18 - Roma, Zona Casalotti
€ 153.000
  • Bilocale
  • 50 mq
  • 1 bagno

Appartamento in Vendita a Roma

Collegati al sito www.immobiliaremarella.it troverai la tua casa
Se stai cercando un bilocale in vendita a Roma con terrazzo vivibile, recente e pronto da abitare, questa soluzione rappresenta un equilibrio perfetto tra comfort, funzionalità e qualità costruttiva.
Immobiliare Marella propone in vendita un appartamento bilocale del 2015, situato in stabile moderno che sarà dotato di ascensore, ideale sia come abitazione principale sia come investimento.
Caratteristiche principali dell’immobile
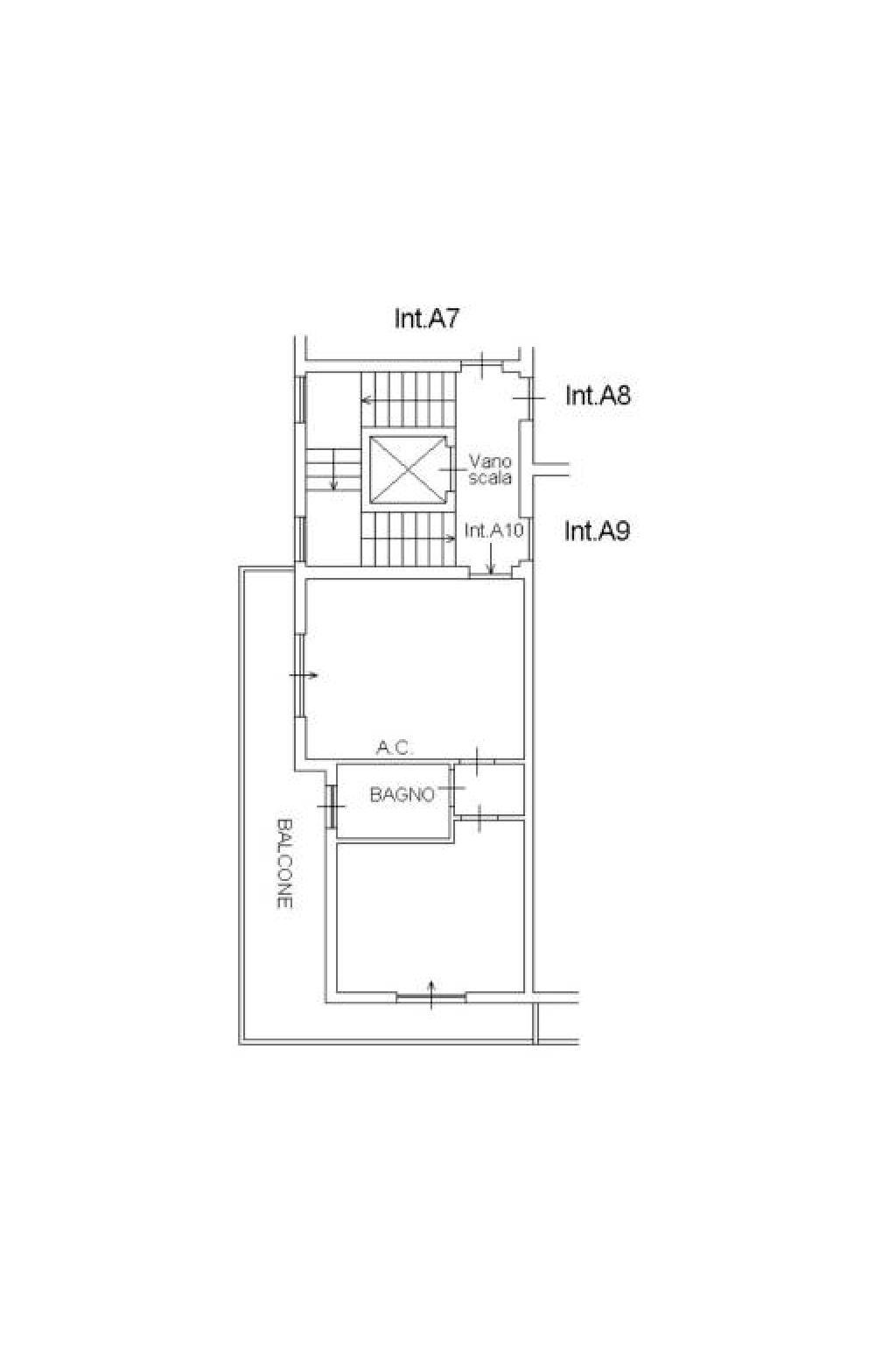
L’appartamento è composto da:
soggiorno con angolo cottura
disimpegno
camera matrimoniale
bagno finestrato
ampio balcone perimetrale vivibile

Il vero valore dell’immobile è rappresentato dallo spazio esterno, ampio e sfruttabile, perfetto per vivere la casa anche all’aperto, con un affaccio aperto e piacevole sul verde.

Dotazioni e comfort

L’immobile si presenta in ottimo stato e dispone di:

classe energetica B
porta blindata
infissi in legno con doppio vetro
grate di sicurezza in ferro
climatizzazione in soggiorno e camera
videocitofono
fibra ottica
armadio a muro

Possibilità di box auto a parte.
Perché scegliere questo bilocale con terrazzo a Roma
Questo appartamento è la soluzione ideale per:chi cerca una casa recente, senza lavori da fare,chi desidera uno sfogo esterno vivibile, sempre più richiesto nel mercato immobiliare,chi vuole acquistare un immobile facilmente rivendibile o locabile nel tempo.
Il Metodo Marella
Nel Metodo Marella ogni immobile viene selezionato e presentato con un obiettivo preciso:
ottenere il miglior risultato possibile, nel minor tempo, con il massimo controllo e serenità per il cliente.
Questo significa valorizzare non solo le caratteristiche tecniche, ma soprattutto ciò che rende una casa davvero vivibile: luce, spazi, funzionalità e qualità costruttiva.

Prezzo € 153.000
Per maggiori informazioni o per prenotare una visita:
Immobiliare Marella
Via di Selva Candida 49 – Roma
Tel. 06 61560000

LEGGI TUTTO

CONDIVIDI SUI SOCIAL

DATI PRINCIPALI

Riferimento
642072
Contratto
Vendita
Tipologia
Appartamento
Superficie
50 mq
Locali
2
Camere da letto
1
Cucina
Angolo cottura
Bagni
1
Piano
1 °
Totale piani
4

CARATTERISTICHE

Ascensore

COSTI

Prezzo
€ 153.000,00
Spese condominiali
€ 50,00 / mese

EFFICIENZA ENERGETICA

Stato
Ristrutturato
Anno costruzione
2015
Riscaldamento
Autonomo
Climatizzazione
Si
Classe energetica
B
IPE
175,00 kWh/m²a

A+

A

175,00 kWh/m²a | Classe energetica B

B

C

D

E

F

G

MAPPA

ANNUNCI SIMILI

VENDITA 20
€ 238.000
Appartamento in Vendita a Roma, Zona Casalotti
  • Trilocale
  • 91 mq
  • 1 bagno
VENDITA 9
€ 240.000
Appartamento in Vendita a Roma, Zona Casalotti
  • Trilocale
  • 100 mq
  • 1 bagno
VENDITA 20
€ 175.000
Appartamento in Vendita a Roma, Zona Casalotti
  • Trilocale
  • 55 mq
  • 1 bagno