• Bilocale
  • 60 mq
  • 1 bagno

Appartamento in Vendita a Roma

LA GIUSTINIANA – VIA Guido Guida

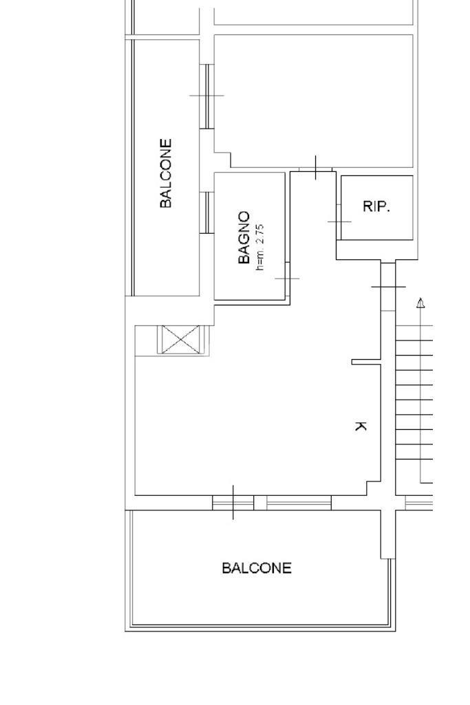
Proponiamo in vendita un appartamento bilocale di circa 55 mq, situato al primo piano di una palazzina in cortina.
L'immobile è composto da un accogliente soggiorno con camino e angolo cottura, con accesso diretto a un ampio terrazzo vivibile di circa 20 mq, ideale per pranzi all’aperto o momenti di relax. La camera da letto matrimoniale affaccia su un secondo spazio esterno: un balcone di circa 15 mq. Completano la proprietà un bagno finestrato con doccia e un comodo ripostiglio nel soggiorno.
L'appartamento si presenta in buono stato e non necessita di interventi urgenti di ristrutturazione. È dotato di grate di sicurezza e condizionatori in tutti gli ambienti. Grazie alla disposizione interna, è possibile ricavare una seconda cameretta, trasformando così l'immobile in un piccolo trilocale.

E’ disponibile un posto auto condominiale.

Attualmente l’immobile è locato con contratto in essere fino al 30/04/2026, con un canone mensile di €500 + spese condominiali.

Ottima la posizione: a circa 450 metri da Via Cassia e dai principali mezzi pubblici, e a circa 1 km dalla stazione ferroviaria La Giustiniana.

Soluzione ideale sia per investimento che per futura abitazione.

Per dettagli aggiuntivi, contattaci su WhatsApp al numero 351/0713036.

Seguici su Facebook: Agenzia Tecnocasa La Giustiniana e iscriviti al nostro canale YouTube 'Agenzia Tecnocasa La Giustiniana' per rimanere sempre aggiornato sulle nostre proposte.
Scopri di più visitando la nostra pagina e seguendoci sui social.

LEGGI TUTTO

CONDIVIDI SUI SOCIAL

DATI PRINCIPALI

Riferimento
631615
Contratto
Vendita
Tipologia
Appartamento
Superficie
60 mq
Locali
2
Camere da letto
1
Cucina
Angolo cottura
Bagni
1
Piano
1 °
Totale piani
3

CARATTERISTICHE

Ascensore

COSTI

Prezzo
€ 175.000,00
Spese condominiali
€ 80,00 / mese

EFFICIENZA ENERGETICA

Stato
Abitabile
Anno costruzione
1980
Riscaldamento
Autonomo
Climatizzazione
Si
Classe energetica
G
IPE
67,00 kWh/m²a

A+

A

B

C

D

E

F

67,00 kWh/m²a | Classe energetica G

G

MAPPA

ANNUNCI SIMILI

VENDITA 20
€ 79.000
Appartamento in Vendita a Roma, Frazione La Giustiniana
  • Bilocale
  • 32 mq
  • 1 bagno
VENDITA 20
€ 259.000
Appartamento in Vendita a Roma, Frazione La Giustiniana
  • Trilocale
  • 116 mq
  • 2 bagni
VENDITA 20
€ 399.000
Appartamento in Vendita a Roma, Frazione La Giustiniana
  • Quadrilocale
  • 140 mq
  • 2 bagni
VENDITA 14
€ 135.000
Appartamento in Vendita a Roma, Frazione La Giustiniana
  • Bilocale
  • 55 mq
  • 1 bagno
VENDITA 19
€ 360.000
Appartamento in Vendita a Roma (Roma)
  • Quadrilocale
  • 120 mq
  • 2 bagni